查看完整案例


收藏

下载
SHINE ORANGE DESIGN
发光的橙子
长长的路我们慢慢地走
深深的话我们浅浅地说
橙熹作品
主案设计 /
徐珊
项目地址 / 宁波
项目面积 /120m²
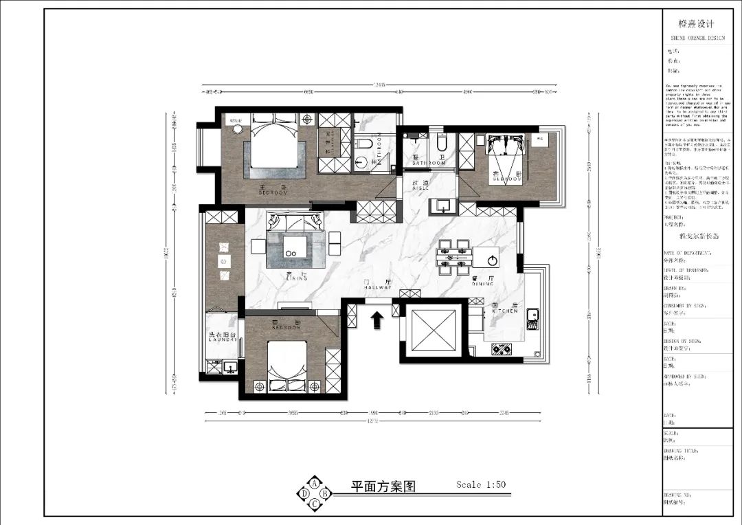
平
面规划
以清净的心看世界
以欢喜的心过生活
以平常的心生情味
以柔软的心除挂碍
<空间形成>
本案业主是90后的业主的婚房,在网站上看到我们分享的案例找到我们,在找到我们之前也比较过很多家公司,在跟设计师沟通后,发现自己对生活的理念和想法跟设计师的想法十分契合,达成了一次十分愉快地设计装修之旅。他们想象中的家,通透,干净简洁。设计师建议他们将自然的光线和空气引入到空间,让空间多于自然形成互动。
一面巨大的落地窗逐渐敞开全景
我们进入到了“隔而不离”的敞朗的客餐厅区域
简洁的白色作底
夹杂着浅淡而温润的木色
梳理出了柔和而婉约的空间气质
脱离于日常的空间
漫步云端或者追寻梦境
没有边界
超脱于家本身的概念
抑或艺术馆
卧
室主色调是灰色
搭配木色
这简直就是绝配
含蓄内敛而且很耐看
有品质的简朴
有节制的丰盛
以时间、空间为纽带
将艺术、生活结合
版權由橙熹設計團隊所獨有,未經允許不得用於商業用途。
橙熹设计 | SHINE ORANGE DESIGN
别墅设计 > 大宅设计 > 私宅设计 > 软装设计 > 商业设计
我们做的不仅是设计 更是一种美好生活方式
/ 为热爱生活的人打造居所 /
▽
客服溪溪
▼
Add:宁波市鄞州区潘火街道清华科创园2号1904室
往 期 精 彩 回 顾
橙熹设计《海鲸》云深时见鹿,海蓝时见鲸,梦醒时见你
《橙熹设计》远方不期而遇的地方
橙熹设计《时光-初见》你是我在人间的第一口糖
END
客服
消息
收藏
下载
最近


























