查看完整案例


收藏

下载
点击上方“蓝字”关注我们。
现代简约风格强调少即是多,舍弃不必要的装饰元素,追求时尚和现代的简约造型、愉悦色彩。与传统风格相比,现代简约用最直白的装饰语言体现空间和家具营造的氛围,进而赋予空间个性和宁静~
设计项目:御园叠墅
设计面积:500㎡
设计团队:上官装饰
设计总监:郗琪
PART.01 户型解析
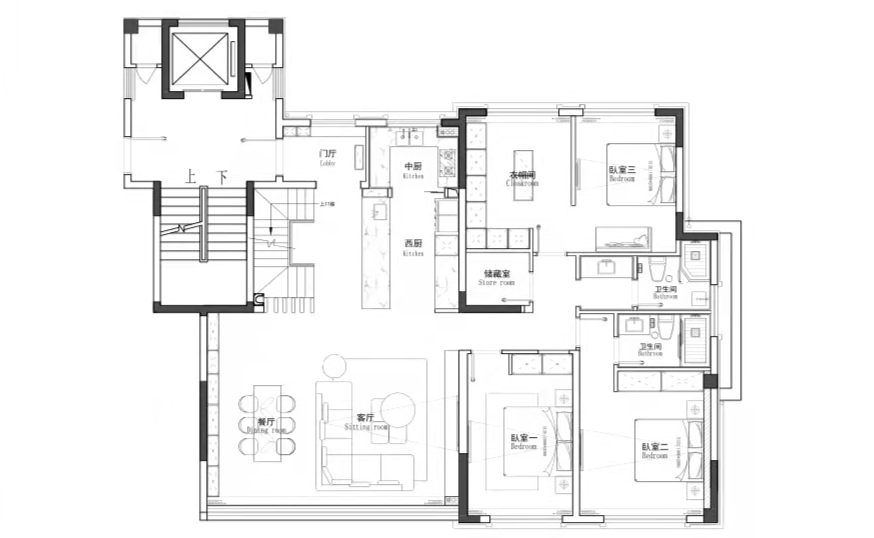
△ 一楼平面设计图
在跟业主的沟通过程中了解到,对于家的设计需求是希望简约、干净,但是色调不要过于沉闷,融入轻快明亮的色彩,打造一个舒适而温馨的住宅空间。
一楼的空间更加多样性,会客、与餐、休息,所以在一楼的规划上,尽量将空间进行合理划分~
△客厅效果图。沙发背景使用了 KD 木饰面和人造壁炉,沙发选用了 L 型沙发,白色与卡其的拼色与背景墙相呼应,再以一些时尚的灯具和饰品做点缀,整体空间既有现代的简约,又是整体空间显得很时尚~
△餐厅效果图
餐厅基于生活的收纳需求,做了嵌入式的墙柜,同时满足业主需求做了带有吧台的餐厅,偶尔有兴致也可以喝喝酒。
△卧室效果图
现代简约风格大多以大理石+木饰面+硬包等硬朗的材料为主,造型虽简约,但却很有质感,越是简约的东西越是经的起时间的考验,过于繁琐的造型看久了总会觉得过于啰嗦,现在都主张轻硬装重软装。
△
二楼平面设计图
二楼的空间相对一楼的比较小,所以在规划设计上进行小而精的设计,一方面也要满足业主会客的需求,所以设计了小的会客空间,因为二楼赠送了阳台,所以在设计上进行改造,将空间更加完美的运用~
△二楼水吧休闲区
水吧休闲区在设计上没有太多的亮点,但是牛油果绿和咖啡色的色彩运用很大胆,还用最近大火的橘白条纹云朵沙发做点缀,整体空间简单的同时又会让人很放松,卸下疲惫,与三两好友喝喝茶,看看电视,晒晒太阳,想想都很惬意。
△
二楼主卧效果图
二楼的主卧和衣帽间做了一步式的设计,主卧墨绿色的床头背景墙加上暖色的床头,沉静的色调下又赋予了一些设计感的格调,衣帽间则是运用到玻璃门衣柜的设计,让空间显得更加通透明亮,在使用功能上,除了储藏服装、品、奢侈品收纳的功能上,也凸显逼格
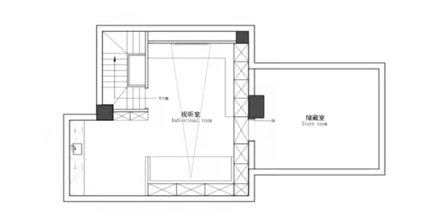
△三楼平面设计图
三楼是阁楼,没有太多花哨的造型,简单、大方,整体基调是现代原木,更多考虑的是采光、收纳,然后就是隔热做好。利用斜屋顶做到不一样的造型,这里可以是给孩子留点小天地,也可以是老公的书房.....
△三楼效果图
好啦,这期的案例分享就到这啦,有其他想看的内容伙伴们后台留言哦
RECOMMEND
▼▼
【上官装饰-睿璞设计】
国宾一号日式禅意风别墅分享
▼▼
【上官装饰-睿璞设计】
“轻奢于形,优雅千里”和平美景别墅案例分享
【上官装饰-睿璞设计】
引你沉沦 90㎡现代轻奢调住宅
▼▼
【上官装饰-睿璞设计】
极简风格带你感受高级舒适惬意的家
谢谢阅读
上官睿璞设计
从事装修行业以来,一直秉着诚稳守信、质量为本的经营理念。
更多作品请关注
公司地址:湖塘花园街新城上街 H2F-13-15。18661243955。扫码关注更多装修工地。
客服
消息
收藏
下载
最近





















