查看完整案例


收藏

下载
南广场·九洲玺
102㎡、101㎡、102㎡、91㎡、80㎡户型解析
归家遇见美好
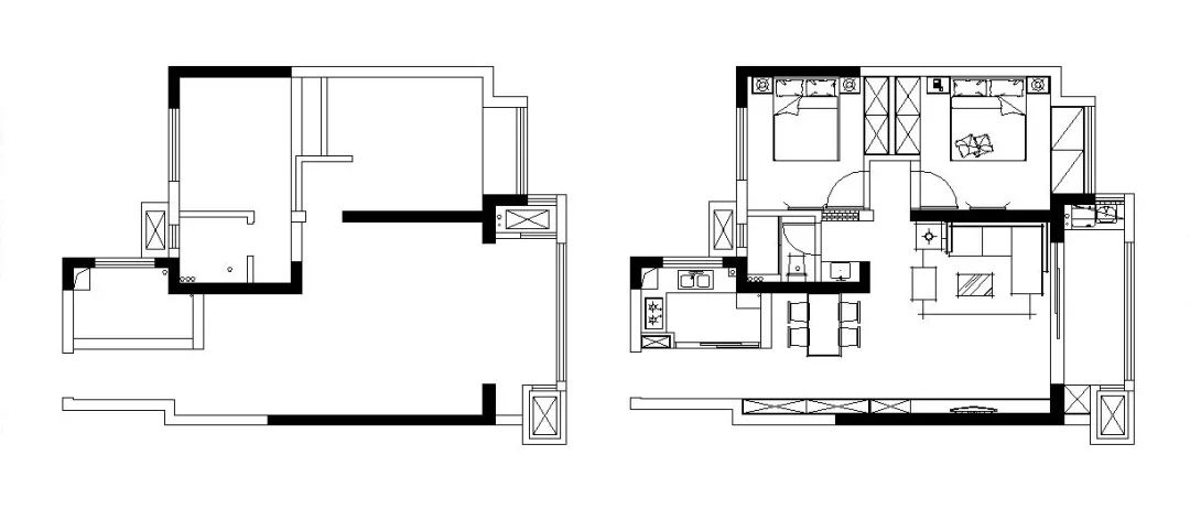
101㎡三室两厅一卫—
关于原始结构
整体空间较为方正,双阳台设置带来极好的采光,且各功能布局合理。
但全屋布局较为紧凑,需要合理的设计。
抓住重点,重塑设计感空间
改造后:
1. 拆除入户多余墙体,做玄关柜,保护隐私的同时,增加了储物空间。
2. 厨房 U 型设计,做玻璃移门,保证了收纳与操作空间。厨房旁与玄关柜一体打造吧台区,重塑设计感,提升了整体的格调。
3. 餐厅沿墙壁打造一整排整柜,更具整体性,可做餐边柜使用,释放公共区域更多收纳压力。
4. 拆除次卧多余墙体,打造小型 L 型衣帽间,满足了更多的收纳需求。设置玻璃移门与阳台相隔,阳台放置洗衣机与台盆,方便日常的洗衣晾晒。
5. 主卧墙体外扩,增大了居住面积,窗边放置书桌,可供日常的办公需求。
效果图设计参考
轻奢
/
与格调生活不期而遇
2021·SUMMER
步入空间,整体通透而明亮,墙面、地面以及家具都大面积的运用了灰白色系,轻奢元素的穿插,丰富了空间的色彩。
女孩房仿若走进童话公主的卧室,似云朵又似温柔的波浪的童梦设计的床沿,围绕小公主展开的童梦空间。
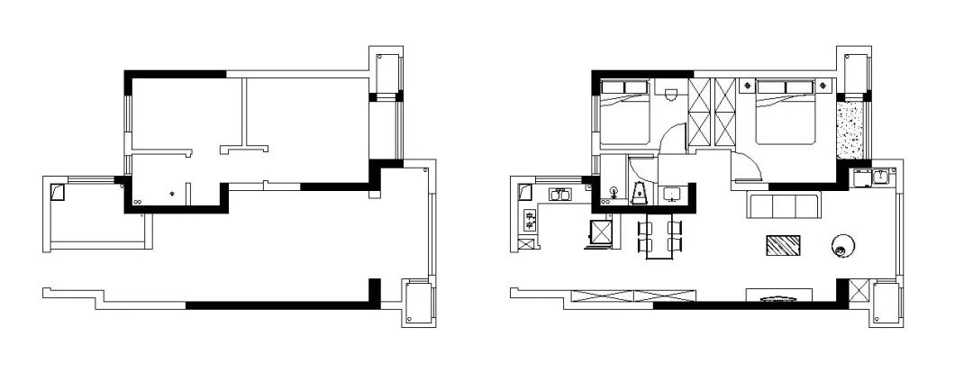
102㎡三室两厅一卫
—
关于原始结构
三房两厅两卫的配置,室内通风理想。大落地窗,明厨明卫,双阳台的设置提高了整体的采光和舒适性。
但卫浴空间较小,面积受阻,相对比较紧凑。
功能设计合理,空间利用率高。
改造后:
1. 入户打造玄关柜,增加了收纳空间,与整体墙壁拉平,塑造整体性。
2. 厨房做 U 型,同时做玻璃移门,冰箱内置,保证了操作空间和收纳空间。
3. 将主卧的飘窗拆除,增大了居住空间,将面积使用率利用到最高。
4. 客房做榻榻米,节省了更多空间的同时,也满足了一定的收纳需求。
效果图设计参考
现代
/
爱在日落黄昏时
2021·SUMMER
白色山茶的纯真无邪,清雅素净,让人心生愉悦,治愈所有的烦恼。搭配鲜活的日落橙,提升整个空间的温度,在一室沉静中直击内心柔软处。
静谧沉稳的自然色调,点缀一抹橙,多与少,轻与重,恰如其分换来片刻宁静,在繁杂都市中获取难得的自享时刻。
100㎡三室两厅一卫
—
关于原始结构
整体户型较为方正,南北通透,三房两厅空间利用率高,南北空气对流非常好,居住舒适。
但主卧空间飘窗影响面积利用率,且两个卫生间都在房间内,厨房空间较小。
改造后:
1. 去掉客厅阳台墙体,尽可能的让公共空间最大化,使客餐厅更加明亮。
2. 厨房 U 型台面,操作台更方便。
3. 改变卫生间进门位置,使淋浴空间更加宽敞舒适。
4. 主卧做套间,打造衣帽间兼书房功能,满足更多储藏和实用功能。
效果图设计参考
入户即明朗,大面积的落地窗,以一室阳光作为迎接。客餐厅一体,延伸空间视觉,形成多元互动的空间结构与动线,在互动功能中体现生活乐趣。客厅摒弃了传统主灯,采用了围绕灯带的设计来营造整体氛围。
主卧的墙面以女主人的喜好为主,浪漫的粉色莫兰迪色系,温柔而浪漫。
次卧延续了整体色调,加入灰色显得更加稳重刚毅,简单布局,硬包背景,整体舒适宁静的睡眠区域。
91㎡两室两厅一卫
—
关于原始结构
整体户型较为方正,南北通透,两房空间利用率高,南北空气对流非常好,居住舒适。但餐厅区域略显局促。
改造后:
1. 从进门开始鞋柜装饰柜串联电视背景,做一个整体,客厅面宽比较大,这样整体性更强,使得餐厅的视觉感更大。
2. 不受墙体影响,厨房根据需求,开放封闭都可以。
3. 卫生间干湿分离,使用起来更加方便。
4. 主卧保留飘窗,做成休息区域非常惬意。
效果图设计参考
客厅以白色为主基调,电视镶嵌在整体柜中,柜子实用又美观,使空间更有整体性,生活用品各有各的归属。
简单餐厅背景,家具的搭配和背景融入,整体性更强。
温润质朴的主卧空间里,饰面板的肌理,金属的光泽,赋予空间更多质感与内容,也让空间有了视觉焦点。静谧而温柔,使整个睡眠区域舒适而整洁。
80㎡两室两厅一卫
—
关于原始结构
整体户型较为方正,南北通透,两房两厅空间利用率高,南北空气对流非常好,居住舒适。餐厅区域较小,确实独立的书房空间。
改造后:
1. 鞋柜空间较小,进门增加储物柜,兼具美观实用性。
2. 餐桌靠墙,墙面做简单造型,视觉营造就餐氛围。
3. 卫生间干湿分离,家人使用更加方便。
4. 次卧增加书写功能,让孩子在卧室可以有相对安静的学习环境。
效果图设计参考
精准推敲比例尺寸,现代风格的设计,墙面造型不经意的装饰,让空间更加简约时尚。
主卧的墙面根据需求增加硬包和墙布的穿插,空间设计感更强。
次卧床和书桌的结合,空间完全不受影响,还可以给孩子一个独立的书写空间,安静而独立。
简单的榻榻米设计和书桌融为一体,合理利用空间的同时,赋予次卧更多的可能性,生活更加轻松灵动。
高灰别墅大宅设计
思于远阔,精于细微
专注别墅大宅设计,专注高品质施工。
0519-6988 9999
怀德路申龙商务广场西座 7 楼
▼喜欢就点赞 |分享朋友圈|关注我们吧
FOLLOW US & SHARE ON MOMENTS
客服
消息
收藏
下载
最近






























