查看完整案例


收藏

下载
ERIC TAI DESIGN AND
RESEARCH OFFICE
戴勇设计研究室
Vol.23
“生活不是要使一切都最大化,而是要回馈某些东西,例如光线,空间,形式,宁静,快乐。
”
--
Glenn Murcutt
项目名称:方直·彩虹公馆
客户名称:方直集团
项目类型:地产 \ 营销中心\软装
项目地址:广东中山
设计时间:2019年7月
完工时间:2019年11月
项目面积:840㎡
室内设计:戴勇设计
陈设设计:戴勇设计
软装执行:戴勇设计
家具提供:星创家具
空间摄影:
形界空间摄影
Natural elements
·
流光溯影,都市自然
方直·彩虹公馆秉承匠心精神,用心营造超越想象的居住空间。通过现代的设计,营造都市轻奢生活家的愿景,在整个社区中呈现摩登的都会感、凝练的现代感、精致的生活品质和多元的轻奢主义。
现代简约的手法,以艺术森林为主题,提炼自然元素,融汇意象之美。达到在点、线、面和体块之间的相互平衡,剔除繁琐,在取舍之间营造自然与人工和谐共生的现代空间。
Starlight shining
·
星光闪耀,自然意境
戴勇设计团队以“星光闪耀”为灵感,将时尚精致的生活品质和“艺术森林社区”主题融入空间。
Elegant space
·
交流洽谈,温暖时光
追求简约的设计,在设计过程中不断摒弃不必要的装饰,让舒适生活需要成为唯一关注点,而不是为了让别人观看而设计。营销中心的家具来自深圳星创家具,高品质的设计师原版家具,给来访者良好的参观及购房体验。
好的空间能够激发人们的情感,使你平静,让你思考。设计行业应担当起传播美的责任,建立当代的、与国际同步的恒久性审美,提升大众的审美品位。
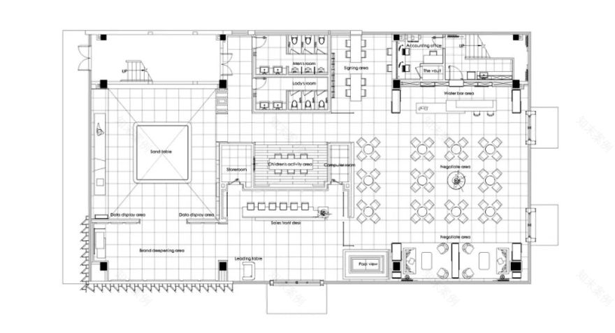
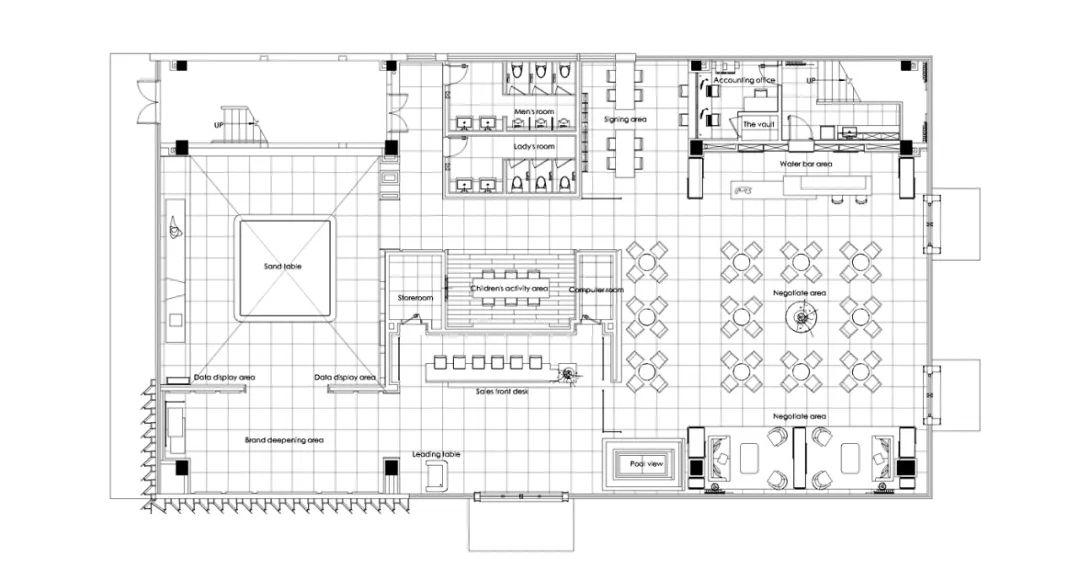
Layout plan
·
平面图
-感谢阅读-
ERIC TAI DESIGN AND
RESEARCH OFFICE
戴勇设计研究室
500+项目设计经验,专业成就作品品质,为客户创造价值。
出版《雅致东方》、《优雅新中式》、《融会》等多本作品集。戴勇先生亦获选为中国十大设计师,入选室内设计奥斯卡英国Andrew Martin安德·马丁奖年鉴全球百名室内设计师,并多次担任清华大学美术学院高研班外聘教师。
办公地址 Add.
地址:深圳市福田区京基滨河时代大厦2701
设计合作 Tel.
0755-82913509
客服
消息
收藏
下载
最近





























