查看完整案例


收藏

下载
普联(TP-LINK)光明科技园三期是SZA至今为止设计建成的最大单体建筑,也是事务所第一个深圳项目,从2014年开始设计并于2019年建成。
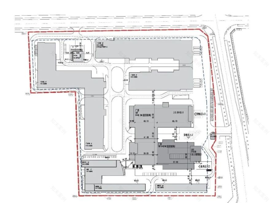
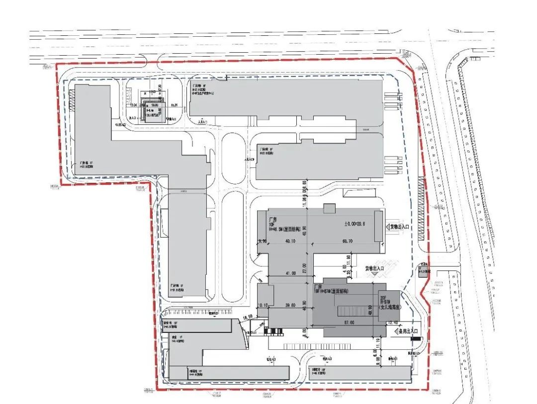
普联(TP-LINK)光明科技园位于深圳市光明区高新技术产业园区,是深圳市总体规划确定的“西部高新组团”组成部分,规划用地面积约8.3万㎡。项目Ⅰ、Ⅱ期为厂房及配套的员工宿舍等,目前已完工并投入使用。现设计地块为园区Ⅲ期,功能为生产车间及研发。地上总建筑面积14.9万㎡。
▼
项目区位
▼
功能体块分析
▼
西北角入口透视
▼
幕墙细节实景
▼幕墙
转角处理
▼西侧沿街实景
▼
西北角实景
▼
西侧立面实景
近
15万
㎡
项目由一座连贯建筑组成,塔楼部分高度
100米,低区高度50米,最大标层面积1.1万
㎡
。建筑平面满足
100米生产线长度要求, 10米柱跨满足
设备操作距离要求。
▼
功能布局分析
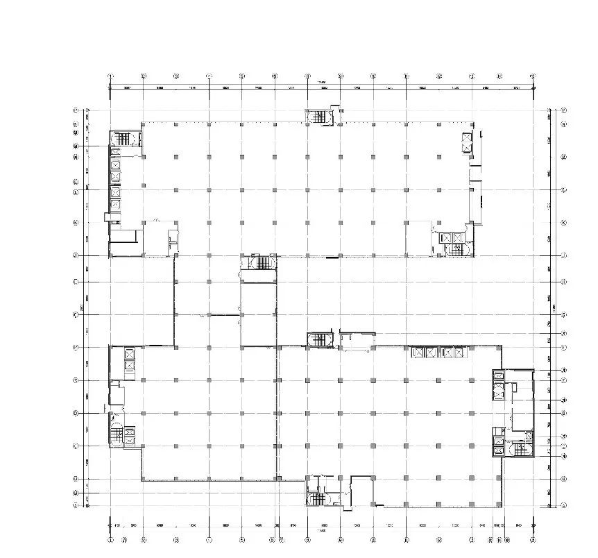
巨大体量的建筑中水平及竖向流线组织至关重要,高区主要交通核布置在东西两侧,同时在南侧及北侧靠外墙部分布置楼梯和设备用房,结构为剪力墙。剪力墙均匀分散,以保证结构上的可实施性,同时将辅助部分布置在四周,保证了内部使用空间的完整及灵活,也为建筑立面提供了更大的可塑性。
▼塔楼
高区中庭实景
▼
烟囱效应剖面分析
高区布置了中庭和可开启的天光,为研发提供充足自然采光的同时,夏季可将天光打开形成强烟囱效应,实现自然通风。
▼幕墙细节实景
▼
内院实景
建筑主体立面大面积的玻璃幕墙为内部生产和研发空间提供充足的日照。近15万㎡的大楼体量放入现有园区,需要立面处理上尽量消减对周围园区及城市空间的压迫感。
▼
陶板纹理图案细节
▼
玻璃幕墙细节
芯筒外置首先将大楼外型打破,并形成石墙面与玻璃幕的虚实对比。由于与周围建筑距离较近,新建筑主要以片段式,尤其是转角处呈现,建筑每个转角处均采用了削减尺度的倒角处理,并布置采光楼梯,即柔化了与城市界面的关系,也为员工提供了舒适的上下班路径。
▼
幕墙细节研究
巨大的体量放置在不大的园区内,需要立面有足够的细节表现力,而项目的建筑外幕墙成本有着较为严格的限制。极限的成本和对立面细节的高要求也推动设计师和顾问对材料和节点做了反复的推敲和验证,3D模型,实体模型和视觉样板都是必不可少的工具。芯筒外挂深灰色和类白色陶板,并用微妙的肌理变化为大面积实墙增加一个视觉层次。
▼
幕墙细节图纸
▼
幕墙细节实景
▼
项目全景视频
项目图纸
总平面图
地下一层平面图
低区平面图
高区平面图
普联光明科技园
建筑设计:北京盛哲建筑设计咨询有限公司
施工图设计:深圳市建筑设计研究总院有限公司
地点:广东省深圳市光明区
占地面积:
82899平方米
建筑面积:
149067
平方米
设计时间:2014-2016
建成时间:2019
项目类型:研发,生产
设计主创:王哲
设计
团队
:
时微, 武润泽, 刘梦辰, 高会来, 李洪波
摄影: 金伟琦
客服
消息
收藏
下载
最近





























