查看完整案例

收藏

下载
点击蓝字关注我们吧~
LIVING SPACE / Jadeite / 锦华装饰·装修实景案例
设计信息
项目信息
设计师综合居者的生活习惯,将空间功能划分得更加鲜明。以方正的户型,优化动静分离的生活路线联通内外。奶油色系作为主色调,低饱和度的家具点缀,简洁自然的色调舒适治愈。
风格 / 现代简约
地址 / 南京 - 绿城云栖玫瑰园
面积 / 128㎡
户型 / 三室两厅
装修模式 / 整装
设计+施工 / 锦华装饰
SUNNY DAY
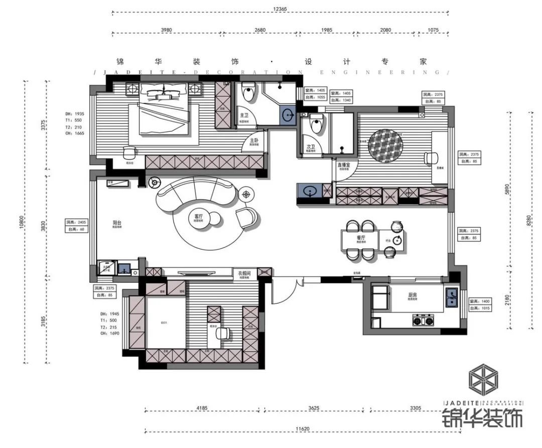
户型设计图
每次修改、碰撞都为接下来顺利合作奠定了基础。WAKE UP IN SUNNY DAY
客厅
客厅的设计使用了大量直线和圆角元素,不同层次叠加表现出了不同体块关系,在恬淡色系的包裹下衍生出强烈的质感与美感。宽阔的落地窗给室内引入充足的自然光线,让室内通透性和明亮度极佳,业主也能够与室外的景色交流,感知四季变化。
落日灯点缀的墙面,将大自然的浪漫诗意与生活融为一体,捕捉日常却又稍纵一逝的美好。
餐厅
LIVING SPACE
/Jadeite/
餐厅背靠白色餐边柜,经典的白色干净利落,柔和颜色的同时也增加了收纳空间。
LIVING SPACE
/Jadeite/
锦华装饰·装修实景案例
餐边柜中间挑色的设计,平衡了白色柜体带来的平淡感,摆上自己最爱的小摆件,让平凡的柜子也更具观赏性。
厨房
空间开阔的厨房,白色门板,提高了厨房的亮度;黑色不锈钢拉手简洁大气,大量柜体满足收纳空间,生活的烟火气由此地向外蔓延。
主卧
木饰面和墙面线条的碰撞,灯槽的光芒柔软了边界,大片留白与空寂延伸出旧日的触感与想象,一切生活印记都因缓慢的节奏而放大充盈。
次卧
简约质感的温柔色调让人沉浸在阳光里,榻榻米增加储物空间,干净的奶白色墙面,木色的开放格和书桌给原本单一的空间增加了层次感,让整个空间更加稳重悠闲。
衣帽间
一屋多用的衣帽间,既可以存放衣物和闲置物品,也能是个小小的放松角落。
本案设计师
魏俊河西旗舰店懂空间,会设计,给人们温馨、舒适的家。
往期推荐
实景案例 | 在每一个清晨日暮,都能与家人一起看山看景怡情养心
实景案例 | 运用色彩和光影,营造温馨舒适、独立个性的家居空间
实景案例 | 200 平米现代简约风装修,隐形门+无主灯设计,整体性好、实用性强!
锦华
客服
消息
收藏
下载
最近




















