查看完整案例

收藏

下载
戳上面的
蓝字
关注我们哦!
写在开头
preface
案例地址|中冶锦绣天玺
案例面积|202㎡
案例户型|三室两厅
案例风格|现代轻奢
案例设计师|叶可善
户型解析
Door model the parsing
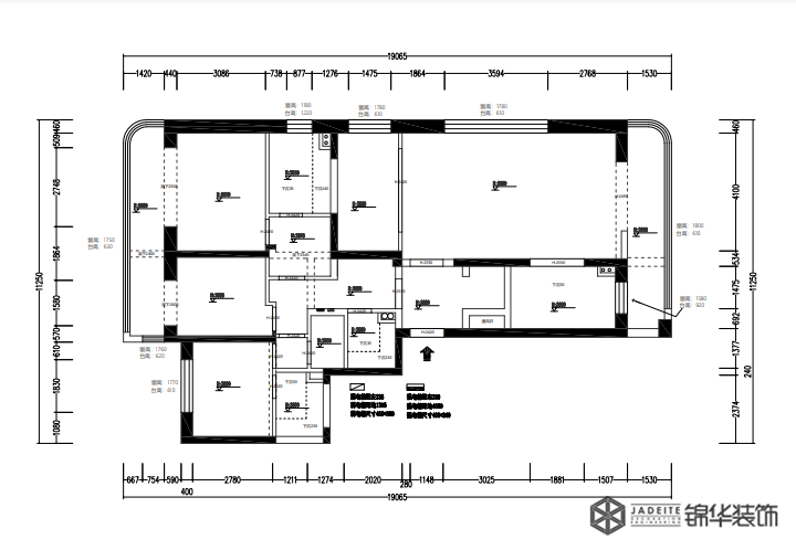
▲原始结构图
优点:
1.江景房景色优美
2.光照好,户型通透
3.阳台大,适宜休闲
缺点:
1.转角太多风水上对人不益
2.房间太小人居住不舒适
3.承重墙太多无法大面积改动
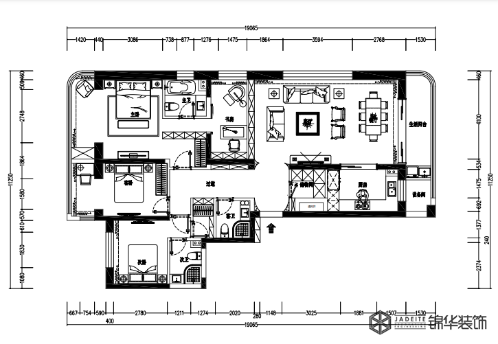
▲平面方案1
▲平面方案2
改造后优点:
1.扩大卧室空间,居住更舒适
2.主卧套房设计居住舒适
3.客厅酒柜区及入户弧形玄关区亮点设计
案例实景
Real scene
初见小区是一种“大隐隐于市 ”的感觉,在闹中取静,想要打造现代轻奢风格。
客厅和餐厅采开放式设计,通过不同色系的视觉效果作为空间区隔的手法。餐厅使用水晶灯,不但有聚焦效果,也透出奢华质感,同时具有功能性和美感呈现。
在设计上,经典与现代的元素被完美地结合起来,用理性的设计手法演绎居住者高品质的生活态度,让家居空间更具表演性。
更多装修问题,请联系锦华装饰!
—
End—
客服
消息
收藏
下载
最近









