查看完整案例

收藏

下载
戳上面的
蓝字
关注我们哦!
金地自在城/三室一厅/110㎡/现代工业风
这是一个110㎡的三室家,只有业主和三只猫咪居住,但原本的空间:
厨房狭小紧凑,
客厅挑高空间浪费;
一楼卫生间很局促,
餐厅紧挨着客厅……
各种因素夹杂在一起,不仅动线不合理,视觉上也混乱,这与业主理想中的:时尚而又宽敞的厨房,大大的吧台,舒适的卧室,独立的书房,放松自在的休闲区域,相差甚远。
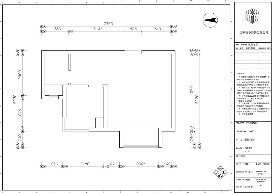
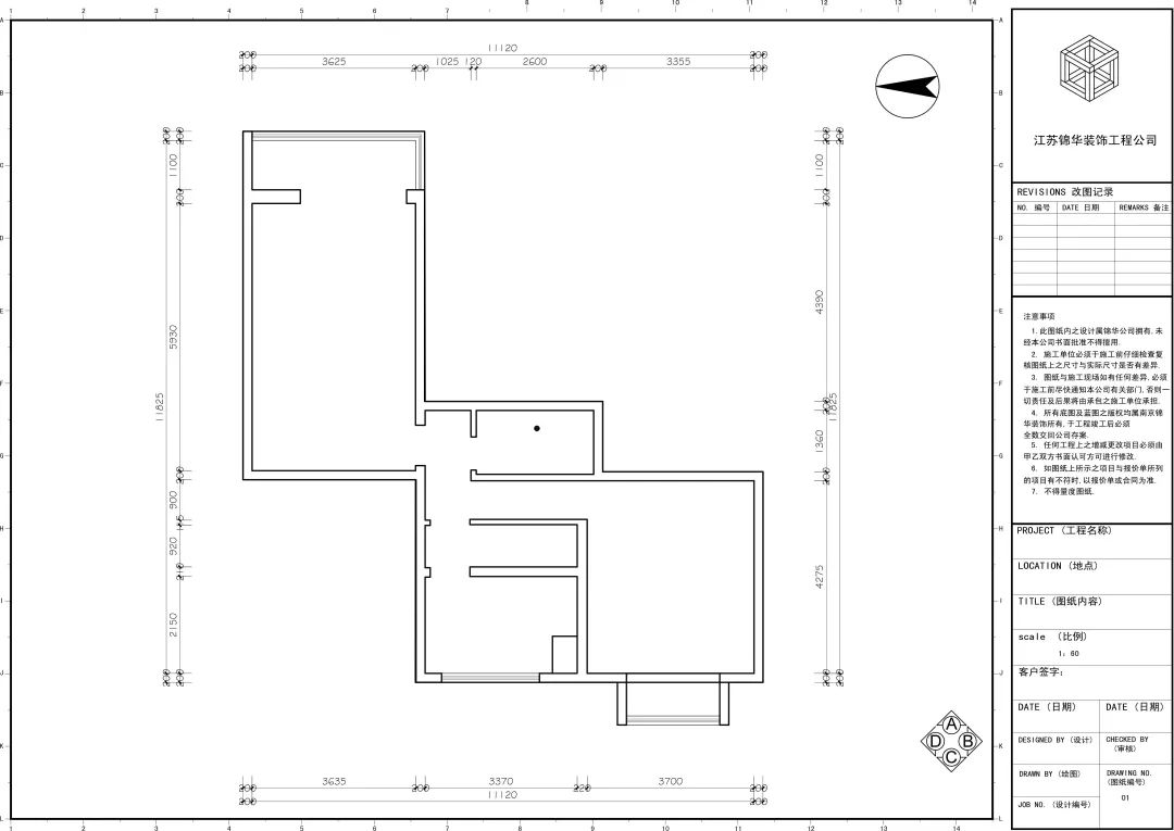
▲一楼、二楼原始结构图!
生活是现实与梦想并存的,所以在本次案例改造中,我们不仅要解决各个空间的使用问题,还要提升以美贯之。
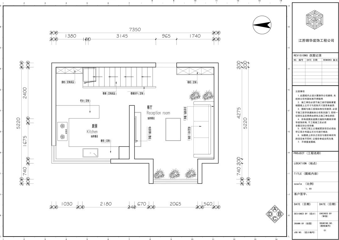
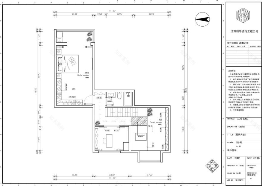
▲一楼、二楼平面图!
▼
将原本厨房扩大,改成敞开式厨房,吧台和橱柜结合在一起,使得空间感大大提升。
原本挑空的客厅,做了局部现浇,二楼做成了休闲区域,休闲区域和二楼过道用了玻璃栈道结合在一起,提升了一楼的空间感,避免压抑,同时也增强了楼上楼下的互动性。
开放式的书房空间,没有多余的装饰物,只是简简单单的桌子、椅子、柜子,给业主留下充分的工作、学习空间。
黑色踏板搭配黑色的扶手组成的楼梯,既连接了楼上楼下,又为空间奠定了复古格调。
工业风的吊灯,长短是可以调节的,每隔一段时间,就做出点变化,已然成为业主日常的小乐趣之一。
客厅电视背景以水泥板整铺满墙,水泥质感明显可见,搭配橙色全皮沙发椅,生出一种矛盾又和谐的美感。而将飘窗改造成休闲阳台并纳入客厅空间后,空间愈发通透明亮。
造型别致的装饰摆件,都是业主喜爱并精心收藏的,十分有趣。
宽敞的卧室空间,以两盏吊灯作为衣帽间与休息区域的空间划分,原木色做旧的衣柜搭配舒适的床品、
黑色的小型冰箱、简单的绿植……既延续了整体设计基调不乏温馨放松的格调。
更多装修问题,请联系锦华装饰!
—
End—
客服
消息
收藏
下载
最近






















