查看完整案例

收藏

下载
戳上面的
蓝字
关注我们哦!
您对现在的住房满意吗?
以下场景能否让您产生共鸣?
“孩子大了,该有个属于自己的房间了,但换房成本太大……”
“当初装修时设计施工一切从简,现在想做些改变,但二次装修又太折腾……”
“我家是精装修,但是风格千篇一律,拆掉重新装修代价太大……”
“家里其它地方都挺好,只想局部做调整,找游击队不放心,找大公司却……”
生活中,诸如此类的问题繁多,一直困扰着无数家庭。锦华装饰想您所想,急您所急,锦华·全能改造家应运而生,小户型全屋焕新,功能间整体升级两大服务全面来临!
▲改造前后效果对比
改造家,重新定义家
锦华·全能改造家依托于锦华装饰,旗下拥有专业的设计师团队及独立的服务系统。
其主要专注于小户型全屋翻新及局部空间整体升级,让小户型也能获得锦华品质与放心的家装服务。
成立至今,改造家已经为众多小户型焕上了新颜,续写了一个一个关于家的故事……
如初——一个人的精彩
一个人住可以玩出什么花样呢?
N女士是我们的老客户,常住加拿大,偶尔回国探亲,想将单室套重新装修,便于回国短住。
N女士多年前为她父母装修房子,全程她参与进来,从设计、选材到施工,我们配合默契,过程顺利。这套套内50㎡的房子,虽然不大,但是N女士的要求却并不简单,她果断的再次找到了我们。
▲ N女士家的原始户型图
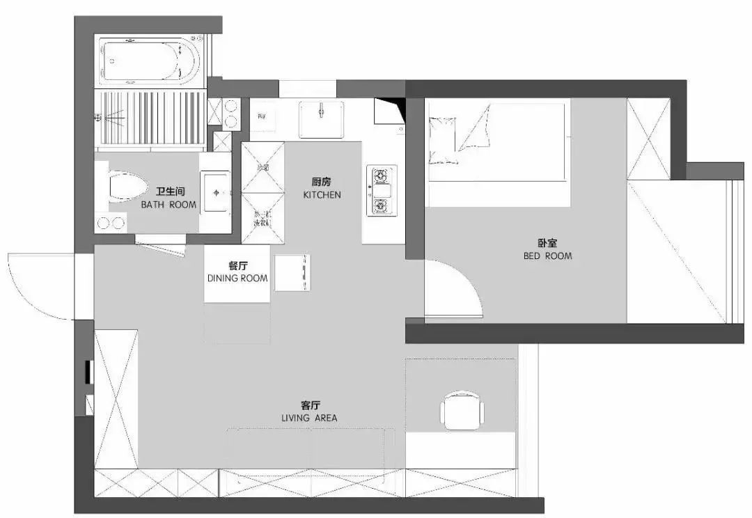
从原始户型图上看,客厅较小,阳台不实用;厨房格局不规整;卫生间较窄,缺少收纳空间;家里有两个孩子,单室套无法满足四口居住。
▲改造后的平面布置
最终,在经过实地勘测与业主沟通后,改造家的设计师交出了一份令业主满意的答卷!
虽是50平的公寓,但该有的功能全部具备,比如大型综合储物柜、全景书房、观景飘窗阅读台、强大功能的厨房……
白色是空间主色调,它具备强大的包容性,不论色彩、材质、风格,“白”都可以和谐地共处。
厨房外围墙体砸掉,开放式厨房增加空间和亮度。
mini款的投影仪隐藏在沙发上方的吊顶内、手动式小床巧妙置身在书柜内、冰箱则完全躲在了高柜中……
客厅与阳台打通,兼具书房与客厅功能,顶面吊柜增加整体收纳。
卫生间墙体重砌,整体削薄增加空间及收纳。
卧室空间选购双层床,使得居住人口增加。
我们能为您做的,远比您想象的多。
设计、选材、施工、工艺、售后……
我们秉承匠心,贯穿始终。
「专业、便捷、省心、放心」,
我们给您的承诺,牢记于心。
4月13日,
1865创意产业园C4栋西2楼,
锦华改造家春季家装节,
一起邀你焕新家!
—
End—
点“阅读全文”
,了解改造家“
春季家装节
”详情!
客服
消息
收藏
下载
最近




















