查看完整案例


收藏

下载
Delicate care of various inward
细腻关照 多样向内
薄小飞
|
采访撰文
私宅平层|项目类型
徐一舒 |设计师
IMOLA 大宅会所|采访地点
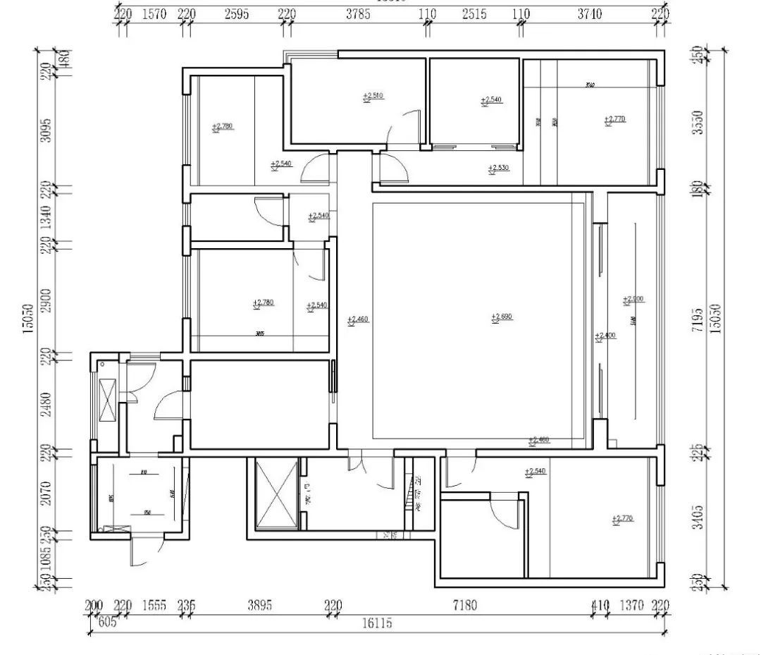
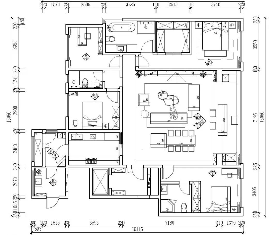
▼平面布局图 FLOOR PLAN
△平面
△原始平面图
布局图
△面布局图
△平面布局图
设计
关键词
Design key words
- 大平层 -
- 精装修改造 -
这是设计师徐一舒 16 年前设计服务过的老客户,再次“设计结缘”是对她的无言认可。接到此次设计任务,随着年岁增长,随着生活累积,业主的许多“角色”发生了变化,对于居住的需求也是设计的重新挖掘。彼此的熟悉和信任是优势,新的突破和平衡是挑战,如何喜悦、如何如愿,如何最合适,不是单一的时尚或者稳重,不是片面的改造和“全新”,是设计的延展和可持续性。
我想,设计是一场“叙述”,居住是一场“事实”,让叙述和事实成为屋主的生活常态。
>
精装改造
-改造前
Renovation of old buildings
精装改造
- 改造后
Renovation of old buildings
01 客厅
Distinct rhythm
细腻关照 节奏分明
时隔 16 年,面对曾经“合作”过的屋主。
After 16 years, he faced the owner of the house he had worked with.
他们当下及未来的生活需求是徐一舒挖掘的重点,于是,从进户开始分类,200 平方米的大平层,电梯独立入户,足够自由,高矮鞋柜、风雨柜分类,是细腻的关照。
打开原始的阳台并入客厅,拆掉精装修的石材铺设电地暖,地面做平结晶拉通,整体的使用和视觉自由度都更大,设备外移,承重的部分阳台垛顺势设计成为多样功能柜,侧面酒柜,整面拉通成为储物柜,解决功能亦让空间节奏分明。
02 餐厅
Eating well is the thought
好好吃饭是心意
好好吃饭背后的心意是只为把更好的给你。
The idea behind eating well is to give you something better.
不可被辜负的用餐时光是家人之间温暖的触达和交互,所以设计师希望餐厅是能够和客厅、茶区以及空间里的功能产生无言互动的。酒柜和艺术陈设赋予浪漫的情绪,阳光正好,即使你们在沙发上聊家常,也很快能被带动“诱惑”。
03 阳台 - 茶区
"I" is your happy notch
“我”是你的幸福切口
阳台,有了新的“身份”。
Balcony, has a new "identity".
作为客厅改造的重点区域,光影的入口,慢生活的切口,不再死板的定义客厅空间的功能区域,改造后打开拉平的阳台,成为居家空间中功能细腻的缩影,一方茶区,就着梦幻帘,煮水升腾,茶香四溢,氤氲出来的都是盈盈笑脸。
04 书房
More relief for you
更多的舒缓留给你
有间书房,最令人心安。
There’s a study, the most reassuring,
考虑到办公延展的功能需求,书房不再是单一的功能,思考、独处、阅读、工作,尽量的留白,让屋主的使用习惯和喜好去填满,人成为主体,放小物品的体量,光影和自然总是能够如书般舒缓你。
05 卧室-女儿房-主卧
Love yourself very much
不必迁就 要很爱自己
△小女儿卧室
△大女儿卧室
“她很迷人,因为她很爱自己”
She’s attractive because she loves herself.
在两个女儿房的设计上,设计师都给予了温暖的关照,亦考虑到了成长的附和。于是,改造掉原始女儿房硬包的背景,用饱和度不高的颜色缓缓的搭配。原创设计的家具和小件都蕴藏着女生的心思,温婉如你。
△主卧
白天迁就生活,夜晚不必.
Accommodate life during the day, not at night.
拆除原始精装修的主卧异形床头背景墙,拉平墙面,雅致的墙面让整体质感显现,保留空间原始的地面材料,让主卧空间更加沉稳安宁,具有设计感的物件浅深互动,大方即可。
微笑是岁月盛开
四季不分
区域不限
开出锦瑟
与你们
温馨一个又一个年轮
ABOUT PROJECT
项目名称 / Name | 融创壹号院
项目类型 / Type | 私宅平层 - 精装修改造
项目位置 / Location | 中国·西安
项目面积 / Area | 200㎡
完工时间 / Time | 2022.
主创设计师 / Design | 徐一舒
项目摄影 / Photo | 杨 磊
设计团队 / Team | 王恩秀、雷倩茹
ABOUT DESIGNER
主案设计师 | 徐一舒
SureDesign Studio 舒尔空间设计主理人 & 设计总监
从业时间:20 年
设计理念:做真实的自己,忠于梦想。
奖项荣誉:
2020 年“她”设计全国优秀设计奖
2019 年 40UNDER40(陕西省)设计杰出青年
2018 年 40 UNDER 40 中国(西安)设计杰出青年
2017 年 红棉室内设计最美欧式奖
2016 年 第 14 届现代装饰国际传媒奖――“年度新锐设计师大奖”
2014 年 广州设计周“再定义?设计精英人物”
2013 年 广州设计周“再定义?设计精英人物”
2013 年 金堂奖设计之星称号
2012 年 西安市住宅装饰行业优秀设计师
2011 年 西安华商报十大明星设计师
2009 年 全国美化家居大奖赛一等奖
2006 年 北京某装饰集团西南大区设计大奖赛二等奖
2005 年 亚泰室内设计大奖赛优秀奖
2004 年 全国美化家居大奖赛二等奖
主要案例:绿地香树花城别墅、振业泊墅别墅、曲江华侨城 108 坊别墅、曲江公馆和园别墅、高山流水别墅、山水草堂兰园别墅、钟楼世纪金花罗杰斯西餐厅、渭南高新区牧云中国餐厅、西安福盛轩足浴连锁店、西华门电信营业厅等
内容不够,扫描进入小程序,深入了解设计师徐一舒,你想知道的,都在这里~关注筑客西安投稿对话框回复“投稿”咨询&找设计师对话框回复“咨询”对话框回复“咨询”
客服
消息
收藏
下载
最近





































