查看完整案例


收藏

下载
SCROLLAMOROUS
书卷多情似故人
薄小飞|采访撰文
教育空间|项目类型
艾莫拉咖啡|采访地点
陈朝顺|设计师
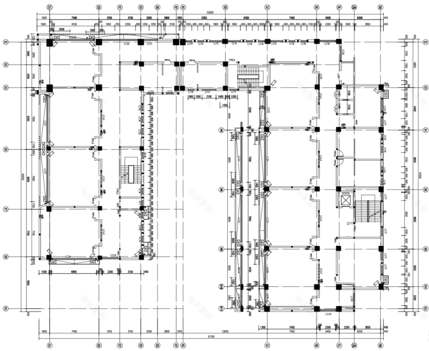
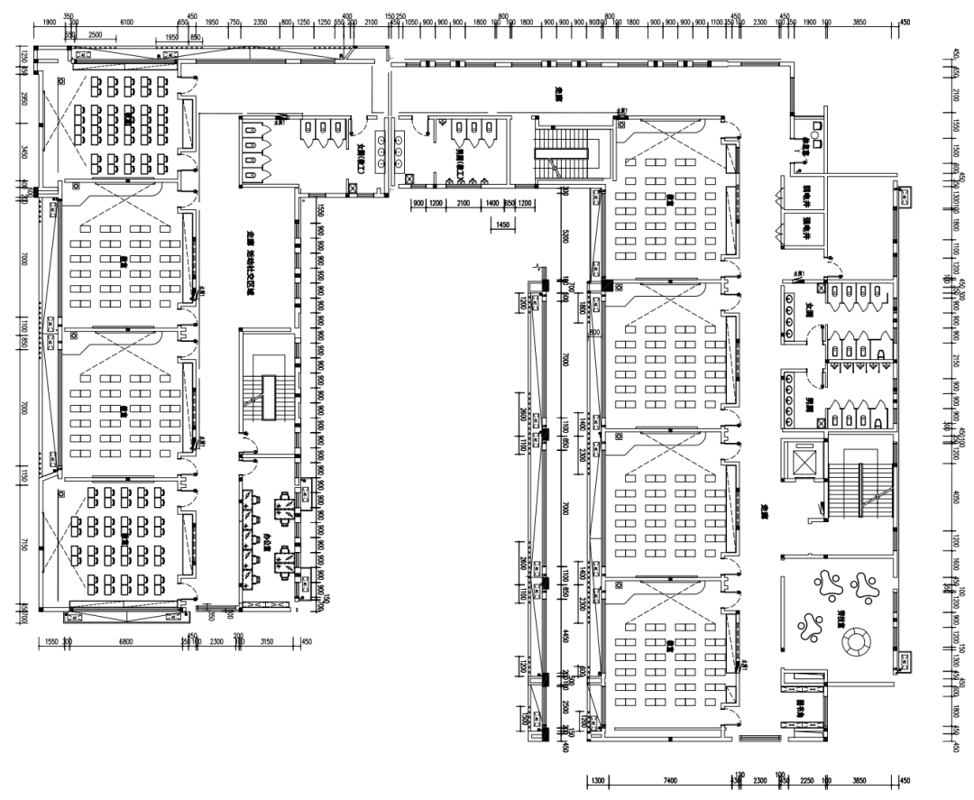
平面布置 FLOOR PLAN
?原始平面图
?平面布局图
五味什字
甘、辛、酸、苦、甜-
是以中药之味道,
典故云:“我国医药自古讲究‘四气五味’,四气即春、夏、秋、冬四气之时,五味指甘心酸辣苦 ’,元代这里因药铺密集,遂以中药五味命名。”
本案,10000 平方米,五味什字小学,
延展地域的历史文化内涵,
以书香致远,五味育人为主题
打造书香文化,
在崭新的建筑中,传承教育和历史内涵。
从学校的整体 VI、导视系统到空间文创,
设计师陈朝顺及其团队做到了真正的“全案设计”,
作为视觉设计出身的他,以另类的设计思路在室内设计中延展,笔尖所触达,皆从心而筑,
平面的视觉力量与空间设计的规划结合,
本案特定的主题和系统性鲜明“长”出。
向上者,行而不辍。为理想,自有光芒。Upward, line and do not quit,for the ideal, its own light。教学区作为主要的设计区域,特有的装置艺术设计点名主题,孩子是祖国未来的花朵,花艺装置打底,翻开的书页、校徽、桥梁、光晕,五方花,是以五味道,亦象征五彩梦想纷呈,名著书籍浮雕带入知识新世界,在浮雕书籍的选择和排列上,设计师也是细节斟酌的,古今书籍的演变,如同行走的历史车轮,蕴藏文化的厚度,从四大名著到现代文学,涵盖一年级到六年级涉及的书籍所学,成为学校环境和精神引导的指向标。
五味、五彩、五育
生活、阅读、梦想
运动场两边的景观坐凳设计,是书香文化理念的延展。
青春、健康、向上,是蓝色跑道的象征含义。
舒缓紧张的情绪,提升运动的注意力。
即使是操场的运动跑道,设计师也在内敛的融入书香院校的主旨。
安稳于日常,清喜于光阴。Safe in daily life,happy in time。我希望对你的关心是润物细无声的,从导视系统展开各个楼层的设计触角,从校徽的 LOGO 色、形、意开始分解,书盒造型巧妙应用、各功能区用不同颜色区分,各个教室的门排都以线装书的设计呈现,方便更换,古韵诗意。
竹简造型实木楼层号,仔细发现,每一片都有一句励志名言,构思细微、古韵诗意。
少年不惧岁月长
彼方尚有荣光在
Youth is not afraid of the years
That side still has its glory
让设计的一笔一画皆含诗意,
不是以热烈绚丽的设计赋予,
而是无言地默默守候,
温暖的木色也代表着雅致的书香,
以纯净的姿态包裹着学习的空间。
腹有诗书气自华
治愈和道尽
With the air of poetry and books
Healing and closure
以唐诗、宋词、元曲、现代主题展开每层的设计主题,
在空间的设计里,
又发挥了一把视觉设计师的多维思维,
所有平面的墙面关系,都被“立体”使用,
增加了空间的互动性和使用率,
不同的主题文化通过墙面的演绎呈现,
传递给孩子们更丰富的知识,
也让校园的温度和质感,舒适包容。
观古知今思进退
读书养志识春秋
Ancient known today
Reading a volunteer
在三楼的休息区,设计了流动博物馆,不定期的更换博物馆的主题展,流动的展柜亦可以多场合的展示、互动,丰富孩子们的知识储备和学习乐趣。
卷多情似故人,晨昏忧乐每相亲。Scroll amorous,the sorrow joy。设计师将墙面和更多的走道空间用到极致,四楼设计微型预览室,犹如一个充满设计感的小型书店,流线温润,欢迎你“徜徉”于此,与丰富的知识世界保持通达,中间嵌入小小的黑板,学以致用是设计细节。
窗外五彩,笔下斑斓,
低头丰富,抬头海阔,
总有一天,
你会盛开。
ABOUT PROJECT
项目名称/ Name | 五味什字小学
项目类型/ Type | 教育空间
项目位置/ Location | 中国·西安
项目面积/ Area | 10000 ㎡
完工时间/ Time | 2022.07
主创设计师/ Design | 陈朝顺
项目摄影/ Photo | 见筑 · 乔治
ABOUT DESIGNER
- 主案设计师
l 陈朝顺
关于 H&D design 好得设计
好得设计于 2011 年在西安创立,十几年沉潜与磨砺,历经传统文化与现代主义设计法则,与中国传统人文精神的回望,追寻经典美学观念,解读平面与空间哲思,重塑环境文化美学。
好得理念从平面美学到空间艺术领域再到建筑环境的内在联系出发,把平面、空间,建筑环境高度的融合在一起,用视觉语言来重新解读。完整清晰的认知设计学脉络与设计践行的高度统一。
好得团队围绕人与环境的关系,艺术与空间的链接。专注于校园文化领域全案设计。团队从业多年还依然保持不断的探索精神。我们倡导包容性与综合性,探索设计的多样性。
关注筑客西安
合作联系
投稿
对话框回复“投稿”
咨询&找设计师
对话框回复“咨询”
客服
消息
收藏
下载
最近






























