查看完整案例


收藏

下载
PERCEPTIONAN ACT OF GRACE
感知一袭纯粹
薄小飞|采访撰文
私宅别墅|项目类型
艾莫拉咖啡|采访地点
杨凯|设计师
平面布置 FLOOR PLAN
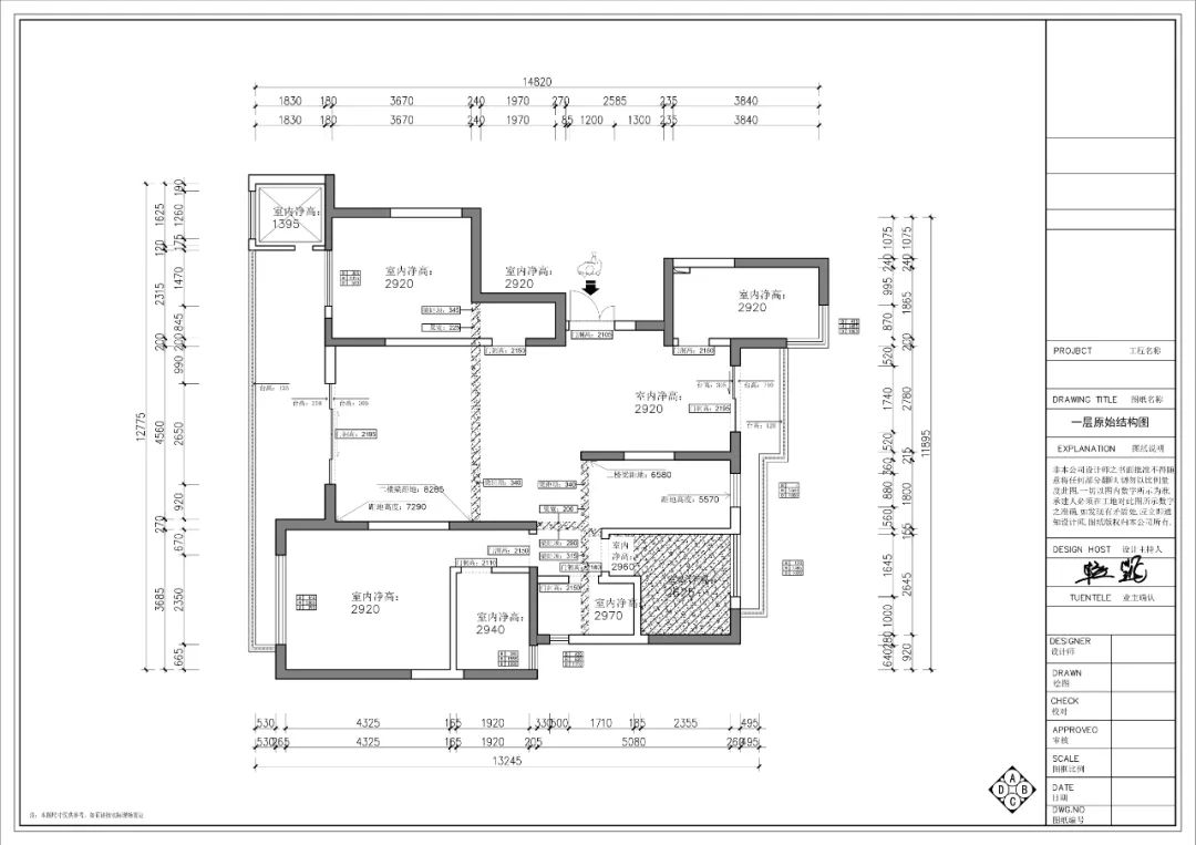
?1F 原始平面图
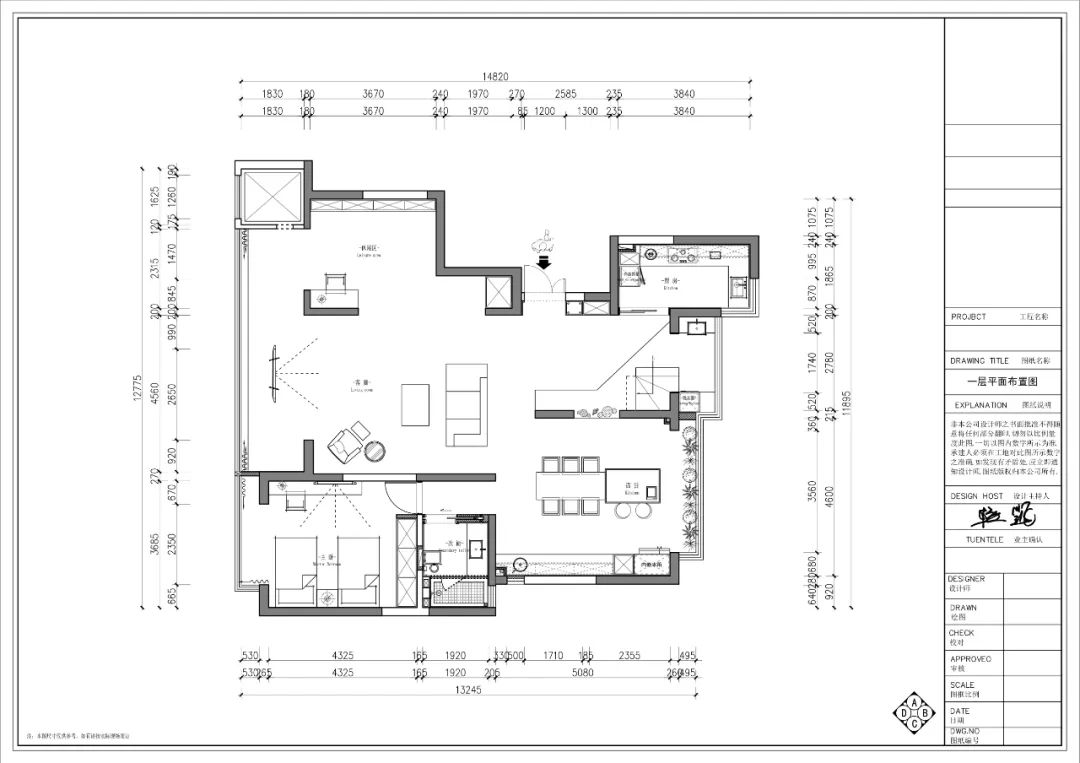
?1F 平面布局图
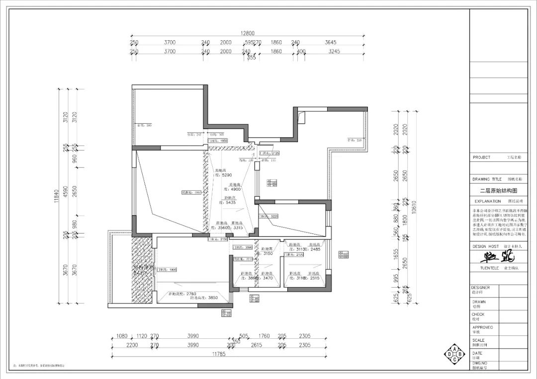
?2F 原始平面图
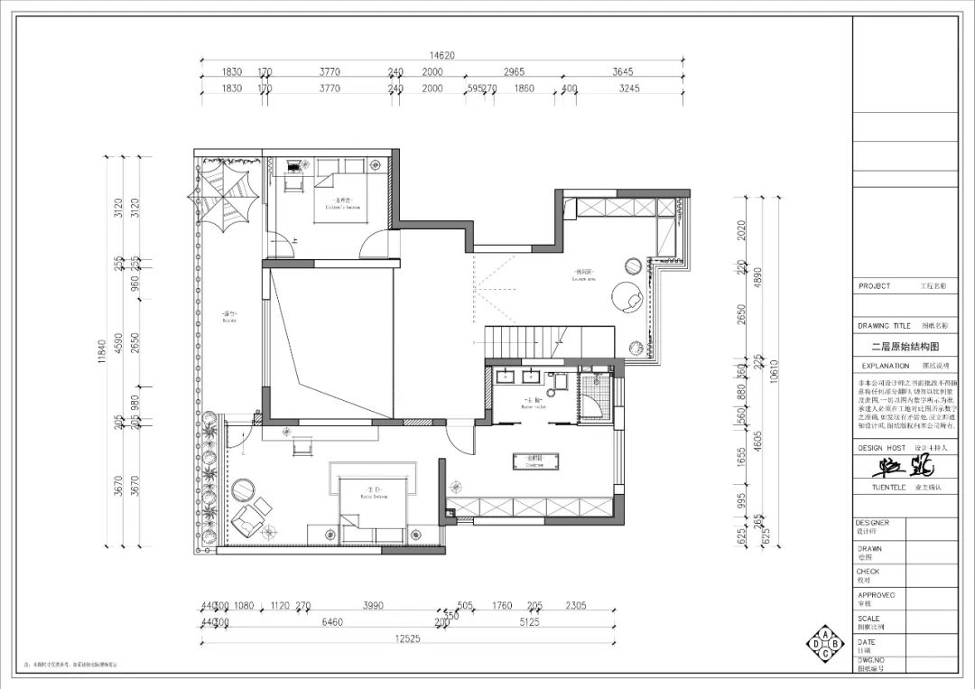
?2F 平面布局图
鸽子脚筒的飞笺
道途的风烟驿站
都是花开可归的思念
也是对美好的眷恋
眷恋的感觉要从家开始,
纯粹、有光、影影绰绰、有音乐、安然、偶尔有点酷,就像本案,290 平方米别墅私宅,
设计师
杨凯
冷静自然的将这些情绪通过设计落地在室内,牵引着户外的生机与室内的眷恋,成为屋主的应许之地。
01感知纯粹
/ Purity of perception
不仅自然可以放空,纯白极简的空间更适合放空,更容易感知更多的纯粹。原始的空间层高是优势,但是细碎的布局将空间变得局促,定好纯白的基调后,开始打开——餐厅、客卫、卧室统统重置,改掉原始楼梯的位置,将更多的空间让给狭小的餐厅,去掉传统的电视墙,备受宠爱的“画镜”让客厅的情景多变,黑色的磁吸轨道灯也发挥着“视觉动线”的双重引导。
干净和信任,是设计转化给空间的“安全感”。
细节的跳跃是平衡空间的跃跃欲试,彩色的麻将沙发在此显得活力俏皮又不失优雅。因为足够的采光,客厅沙发并不是靠墙而立,而是面向南阳台,链接着更多功能区域的实际和视觉的双重互动。楼梯的第一个踏步与北阳台异形连接,既让设计感十足,也发挥了生活阳台的多功能性。打开的客卧半开放式的成为办公书房休闲区,动线有了多样的分叉,又都相互关联。
02生活有味
/Taste of life
白色作为难度极高的搭配色,蕴藏着当代设计所赋予的空间生命力,当然也极其考量设计的调性水准。
餐厨空间作为生活每天的期待,亦是家人居住共聚的核心。原始餐厅的位置窄小“偏远”,经过重新改造后,设计师舍弃客卫,打开餐厅,增加中岛,中西厨一体,与整体的空间设计迅速相融,生活的质感在此刻被颠覆。
谁说老人不能又酷又精致,考虑到行动的便捷和安全,一楼的卧室区域设计了双床父母房,极简线条的白色储物柜和黑色的床品。是关怀,也是同频。03 心头喜爱/One’s favorite
进可文艺,退可居家,
因为拥有充盈的采光,因此,
设计也考虑更多的使用功能,
让二楼变为更多变的功能区,
将露台搭建进来,设计一个换季衣帽间,
关联投影设备,亦是儿童游乐区域,
就着原顶的坡顶进行吊顶,
经过设计的自然,是专属的心意。
温暖独有的卧室,是设计师应许屋主的心头喜爱,作为“续航储备”每天能量的地方,舒适和调性都要被考虑,莳花弄草也不是必须,但是摇曳的自然就在白纱后,设计师在室内的细节上用尽心思,墙面的黑色异性图案与斜顶呼应,亚克力蓝色的梳妆凳凸显调性,舒适度和多样性不是堆积,而是自然而然。
04关怀在侧
/Care on the side
浅浅的欢喜,淡淡的释怀,儿童房和主卧都放置二层,也是成长在侧的陪伴,设计轻轻一笔,白色和婴儿蓝柔柔碰撞,学习功能也被充分考虑。
生活的浪漫并不是只有玫瑰和蛋糕,设计从内核的细致关怀来表达空间赋予生活的浪漫,卫浴间作为更加贴切的使用空间,独立又亲密的使用感是互不干扰的尊重,黑色勾勒,不为悦人,只为悦己。
待你如初
疼你入骨
无丝竹之乱耳
无案牍之劳形
暮色来了带着炊烟
我们都要打扮得像陶渊明的诗
ABOUT PRO
JECT
项目名称/Name | 梧桐苑
项目类型/Type | 私宅别墅
项目位置/Location | 中国·西安
项目面积/Area | 290㎡
完工时间/Time | 2022.9
主创设计师/Design | 杨凯
设计团队/Team| 壮壮、王裕鹏
项目摄影/Photo | Leo
ABOUT DESIGNER
- 主案设计师
l 杨凯
- K&Z SPACE DESIGN STUDIO 创始人&设计总监
长按扫
关注筑客西安
合作联系
投稿
对话框回复“投稿”
咨询&找设计师
对话框回复“咨询“
客服
消息
收藏
下载
最近








































