查看完整案例


收藏

下载
Let happiness take off
让快乐起飞
撰文 | 小蕊
设计师 | 宿允爽&朱雅倩
我认为终极的奢侈
是看不见的东西
比如,爱与自由
/ 01
款款切换·Payment switching
设计以旁观者的角度与思维代入,空间亦是看客,见证且记录着这满室生机。
本案 140 平方米平层户型,80 后父母事业如日中天,5 岁小男孩亦正值入学的年龄。买下此套学区房,成就和和美美的温馨小日子。
入户玄关巧妙去掉狭小衣帽间“成全”开阔大横厅,空间的打开将风水气运款款请进室内,非凡的气质环绕拥抱接纳归家的我们。
空间的藏与露呼应着人与空间的情感。
进入门厅后的以小见大,给了感官“最意外”的惊喜。
以流动的弧形带来无边界的自由感,削弱界限拉近设计与生活间的距离。
Rugiano 沙发成为客厅焦点。它以柔软温暖的外形,简练明快的线条展现内敛优雅风。搭配圆盘叠加切割设计感 Divo 边几,有品位追求的高级感,是为热爱生活的人量身定制。
宿允爽说:我们想给你的奢侈感,是每一个与众不同的寻常时光。空间与自由皆属于你,随时“搭建场景”自由切换居家模式。不设限才是对自由与空间最好的尊重。随意搭配便可“切换”不同的居家模式。日复一日的日子每天都会有新的快乐。
/ 02
生活情调·
Sentiment of life
生活的丰盈,依次写在了一镜到底的空间动线上。设计不止是增设了一方岛台,更期待着这儿成为家庭成员感情升温的“聚集地”。将艺术感始终贯穿,品质、功能、温度融于此间。自然的肌理与纯粹的颜色唤醒生活情调,任时间发酵,去催化人与空间的共情生长。
对品质生活的雕琢藏于家中的每一处细节。
将厨房功能系统更细致的分区,收纳区、烹饪区、操作区分离。
看似毫不费力的干净皆是设计对生活更深刻的体验。
- 隐之加隐的木质格栅跳转至下一空间
元素的延续让空间与情感浑然一体
还原最初的休憩睡眠功能
VIKTOR 这款柔软的仙女床足矣
光自由流通 好梦 渐入佳境
- 以功能巧妙代替装饰化
预留的次卧选取连屏床代替床头硬包
一抹竹月色造就舒适浪漫的居住氛围
竹林月色沁润身心,借着你的心头乘进一片浪漫
要星光、要月亮,也要你们在身旁。
被安稳的爱着,快乐到起飞。
ABOUT PROJECT
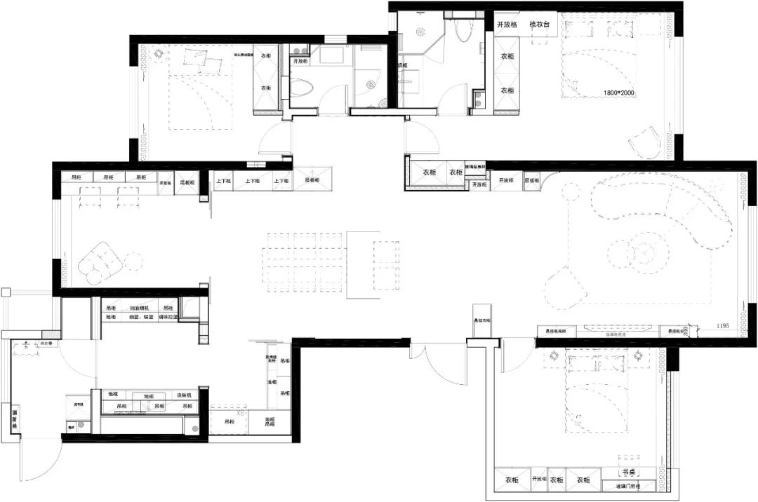
▼平面布置
?原始平面图
平面布局图
▼关于项目:
项目名称/ Name | 香榭御澄
项目类型/ Type | 住宅空间
项目位置/Location | 中国·西安
项目面积/Area | 140㎡
完工时间/ Time | 2022.7
主创设计师/Design | 宿允爽&朱雅倩
设计公司 / Company | 云喜空间设计
摄影师/Photographer丨刘南南
ABOUT DESIGNER
宿允爽
云喜设计事务所-创始人/设计总监
从事设计十八年
云喜设计&温室软装的创始人&设计总监
国家建设计部注册认证设计师
毕业于清华大学美术学院环境空间艺术设计
▼所获荣誉:
中国建筑装饰协会 商业空间银奖
获得“金蝴蝶奖” 平层/公寓类作品 银蝴蝶
40 UNDER 40 中国(中国)设计杰出青年
中国(西安)十大居住空间设计师 金住奖
中国建筑装饰设计奖
别墅空间方案类铜奖
第八届中国国际空间设计大赛
筑装饰设计奖荣获办公空间类优秀奖
奖荣获商业/金融/售楼处空间类优秀奖
40 UNDER 40 中国(陕西)设计杰出青年
《中大 TONI&GUY》作品 在第二届西安建筑装饰设计筑装饰设计奖荣获办公空间类优秀奖
《北京尚公(西安)律师事务所》作品 在第二届西安建筑装饰 设计奖荣获办公空间类优秀奖
快乐家居特邀软装设计师
西安建筑装饰设计奖形象大使
获得筑巢设计金奖
国际空间设计大奖 艾特奖
最佳别墅豪宅设计入围奖
受邀参加法国家居展 德国家具展 意大利米兰展 美国展
▼相关作品链接:
筑客新案丨宿允爽×云喜设计 / “未時”遇见 不止是家
宿允爽新作丨德系精密日系匠心,这个家无法“再升级”
宿允爽新作丨优化异形空间 用方圆“扭转”布局
关注筑客西安
合作联系
投稿
对话框回复“投稿”
咨询&找设计师
对话框回复“咨询”
客服
消息
收藏
下载
最近


































