查看完整案例


收藏

下载
BUILD YOUR HEART
打造好自己的内心
薄小飞
采访撰文
私宅别墅|项目类型
李斌|设计师
艾莫拉咖啡|采访地点
平面布置 FLOOR PLAN
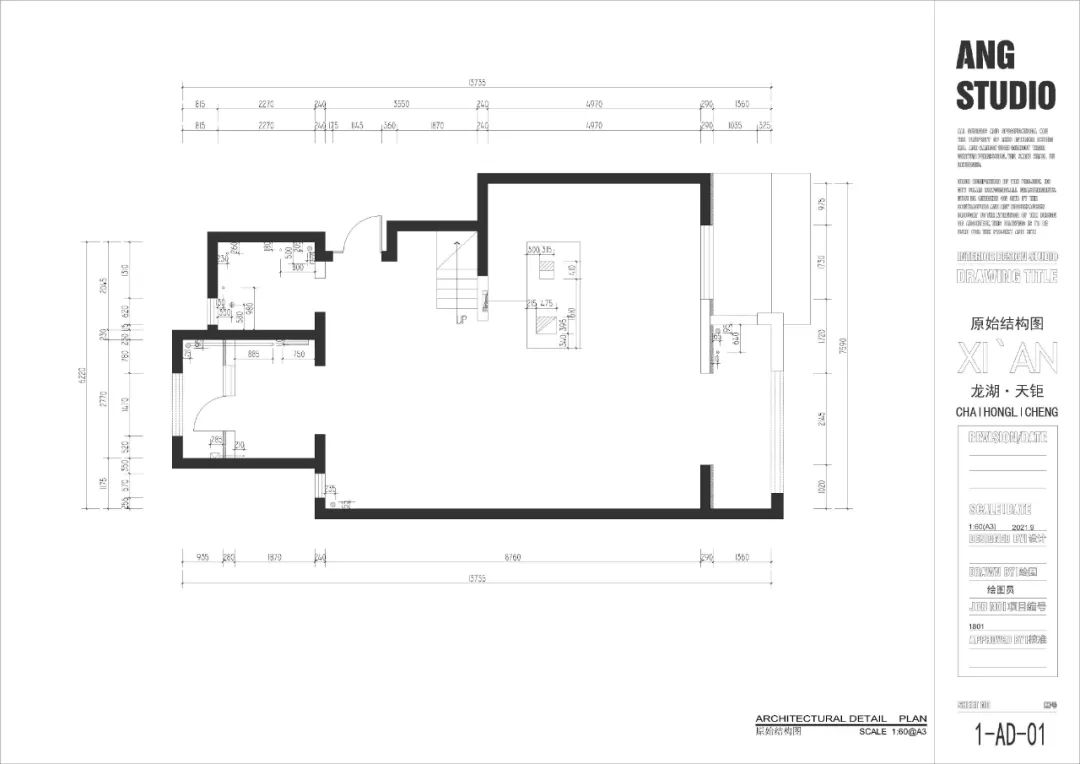
?一层原始平面图
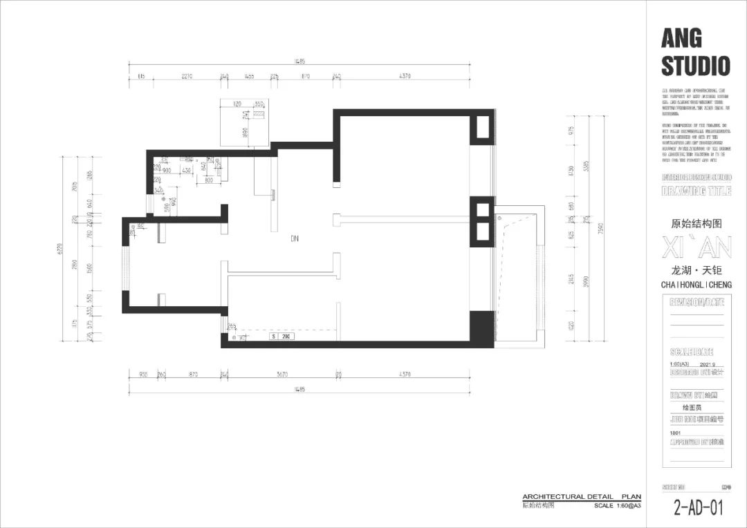
? 二层原始平面图
一层平面布局图
二层平面布局图
每个人总有一段时光
碰到谁都滚烫
但那时候的他们并不知道
不是别人有多热烈
而是自己正在燃烧
设计收集热情转化成为沉淀
以爱生活的姿态回馈岁月中热情的自己
本案,180 平方米叠拼
设计师和业主是亲密无间的朋友
是拥有共同爱好的骑友
工作中亦交集甚密
这不仅仅是空间的设计
亦是对挚友未来生活的“设计画像”
INCLUDE
包罗 · 有度
设计坦诚回应空间特有需求
多场景使用直观“表述”
原始空间单层布局都比较细碎,
结合屋主的使用范畴,满足会客、待友、聚餐、派对等多样功能,
将一层空间全部打开,
规划成为纯粹综合公共空间,入户的楼梯改为储藏间,打开次卧,并入会客厅,顺势中岛,开放厨房,游回动线,
拉长空间的使用尺度,
空间的纵深变得开阔,
设计纵向的单跑楼梯,
嵌入更多的储纳功能,立面的节奏开始分明有趣。
AMUSING
举炊·有致
建筑也好,家具也好
总喜欢那些“摸起来”舒服的
从细节的凸显上延展出住宅拥有好的“触感”
生活方式的品质是从量身定制感受,设计尽可能的模拟屋主更多的居家方式,莫顿家居定制的 90 公分中岛,特殊的尺寸,在空间中是一种新的聚合尝试,慵倚而立,轻伏而搭、斜靠交谈,收获了意外的舒适度。
METICULOUS
矜细· 从容
再重新问一次“居住”这个行为的意义,不是以“正式”自居,而是以细节的仪式感去感染,你自不必说,我便被深深吸引。
四两拨千斤的设计概念
从破立开始
不仅仅是被打开的丰富生活,而是紧贴于屋主的生活深度,做了极为细致的考量,被打开的厨房一览无余整个会客空间,光影的仪式感和材料的细节加入“诉说”动静相宜间,在空间里的每个人,都不被忽略,都发生关联。
每一缕阳光都有欢乐
每一个角落都有禅悦
所有的好,都不如刚刚好,
去客厅模块化,会客厅融入了客厅功能,拐角的两面安全性被放大,能舒适的窝着聊天就是沙发区最合适的位置。
SETTLED
卧宁·人安
设计营造空间和人的“磁场”,互相吸引彼此影响。虽然细节落在了使用节奏上,但是设计师也不忘玩一把“建筑思维”。克制的尺度和线条几何相间,内建筑的缩影,诉说上下空间的分区,节奏轻盈,深浅不同,致敬光影。
居住有能量场。设计收集和赋予。二层的空间作为屋主夫妇的私属领域,设计师也设计了闭环的生活动线,四分离的卫浴间,盥洗台和水吧功能兼顾,洗衣房和卫浴间相间,设计在细致地关照着生活步骤,洗澡前随手脱下的衣服洗衣房“顺手接收”,功能的连续一气呵成,规划一方空间用作禅修室,尊重屋主的自我保持。
建筑都还没变,来往的车流好像也没变,但是吹来的晚风,似乎雀跃,感受晚风的我好像也不一样了,晚风中的世界好像也变温柔了。
ABOUT PROJECT
△空间布局及爆炸解析图
项目名称:龙湖天钜
项目类型:私宅叠拼
项目位置:中国·西安
项目面积:180㎡
完工时间:2022.05
主创设计师:李斌
设计团队:王渊博、李珊
项目摄影:见筑·任东
主要材料:莫顿家居、北欧风情、圣桦林地板
ABOUT DESIGNER
主案设计师 | 李 斌
ANGSTUDIO 联合创始人&设计总监
关注筑客西安
投稿
对话框回复“投稿”
咨询&找设计师
对话框回复“咨询”
对话框回复“咨询“
客服
消息
收藏
下载
最近




































