查看完整案例


收藏

下载
TAKE CARE OF
EACH OTHER
几何起形 关照彼此
薄小飞
|
采访撰文
办公空间
|项目类型
ANGSTUDIO|采访地点
张钦保
|设计师
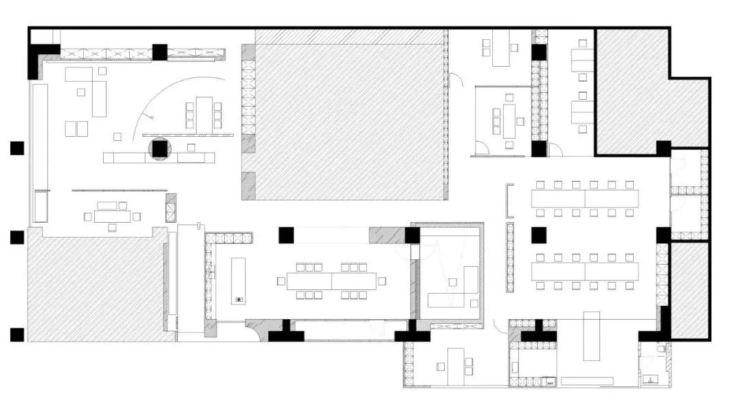
平面布置 FLOOR PLAN
?平面布局图
生活让我们照见自我,工作让我们赋能自信,每个都是使用者的“姻缘地”,亦是设计者的“创作地”;
本案,800㎡,设计师为设计师做的办公空间,张钦保说:“为热爱设计的伙伴做个办公室”,是一种惺惺相惜的认可,亦是一种彼此互动的探索。
在这里,设计师希望,使用者不仅仅是设计师,更是最自己。
展开克制 自由切换
ANGSTUDIO.
工作之于生活的关系,是严谨和自由的切换,而对于设计师的办公空间使用,要加入许多激活的艺术感,类美术馆的艺术情绪、展现设计的职业环境,进入空间的感触,都要充分考虑。设计笔触以极简的线条感展开,建筑的思维去设计内在空间的整体,即使本案处于商业卖场的一角,我们也希望进入空间后是找到自我。
克制是空间设计的核心词,设计师从入口处以克制的设计心态,慢慢的将每个小空间从大场合中剥离,“引诱”出每一个即将步入的小世界,不断转化心境,制造思考。
长条的岛台以自由多变的使用功能去展示,沙感的岩板碰撞华丽的大理石,用材质本身的张力去实现空间的低调质感。
不固化的场所,包容和多元化的接纳、相处,映着图·麦设计事务所的企业内涵。
弧形好线条的软硬碰撞,岩板的硬朗时尚和布艺复古色的软配碰撞,软硬的设计克制,让空间张弛有度。
培育梦想 开放共享
ANGSTUDIO.
生活需要仪式感,办公空间亦是如此。舒适有仪式感的办公空间让工作变享受。作为设计美好人居空间的业务输出,本案既要满足设计师们的使用品质,更是对外的一种传达输出。因此,延续空间的线条设计笔触,冷静的克制中亦缓缓输入氛围。酒柜在氤氲的灯光中气质迷离,茶台多功能的使用让时间放慢。即使是工作,我们亦希望以享受的姿态去投入,不是吗?人与空间 同频共振 ANGSTUDIO.
光影的衔接是空间的界限,让办公也有“工作方式”,多功能的转换和情境的浮现,都是经过步步推敲。在空间自然展示产品,墙面和体块成为产品的承载“展示柜”,空间留给使用者,人与物,人与空间之间产生同频共振。
设计师张钦保希望,通过最不同的几何块体堆叠与错落,碰撞出更多的空间关系,在几何的延展“夹”出许多有趣空间点,不同的几何造型以许多小建筑的模块排列,同时又解决各种关系中的承重专业,“长焦”的空间视角中,线条的关系远近疏密,看似硬朗的材质,被这些关系朦胧化,低调的柔软。
办公空间亦承载培育梦想,以开放式的共享,又以最简单的几何线条交织和分离作为无形的空间“结界”。空间拥有较好的层高优势,被设计引入,柔软了硬朗,温润了时光。无限延展的设计手法,就像不被设限的未来。作为办公使用,设计的影射被细致表达。
为你浪费的时间比其他时间都好,都更像时间。
ABOUT PROJECT
项目名称 / Name | 图·麦空间美学设计事务所
项目类型 / Type | 办公空间
项目位置 / Location | 中国· 西安
项目面积 / Area | 800 ㎡
完工时间 / Time | 2022.01
主创设计师 / Design | 张钦保
文案撰写 / Writing | 薄小飞
设计团队 / Team | 邢晨
软装设计 / Sofe | 孙小雅
项目摄影 / Photo | 谭啸(十摄影工作室 )
ABOUT DESIGNER
- 张钦保-
ANGSTUDIO 联合创始人&设计总监
- 孙小雅
- 软装设计
关注筑客西安
投稿
对话框回复“投稿”
咨询&找设计师
对话框回复“咨询”
客服
消息
收藏
下载
最近




































