查看完整案例


收藏

下载
BLEND
ENTERPRISE
CONNOTATION
糅合企业内涵
薄小飞 | 采访撰文
办公空间 | 项目类型
棕榈泉·大彩设计 | 采访地点
面积 | 1800 平方米
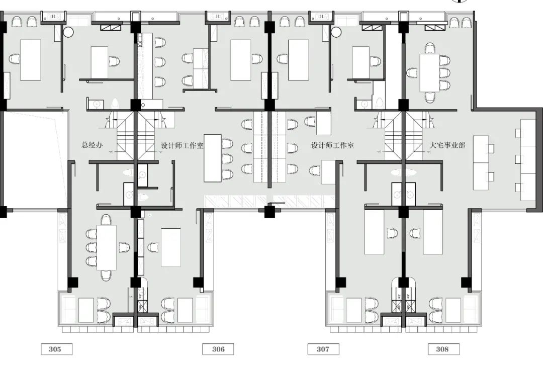
作为兼顾商务功能的办公空间,如何精准的、综合的结合企业自有的文化特色及不同的部门团队使用气质,是本案的设计特色,位于曲江·棕榈泉,面积 1800 平方米,原始的建筑空间为别墅住宅,大彩设计将 6 套别墅兼并打通,区域功能分工后进行新老设计的融合,改造、搭建、拆除、工艺、材质、功能、触感、气质都被考虑和分解。
入 口
DA CAI
索 引
优选一个主入口,办公空间的设计从整体环境开始,细节 VI 标识的传递和企业文化的传达,都自此开始。
大彩设计经营的业务范畴,精品酒店和民宿设计施工作为其中主力业务之一,因此,主入口,精品酒店和民宿设计中他们常用的混凝土浇筑元素作为缩影,精光不锈钢发光字和水泥的材质的粗细对比,大彩企业 27 年的谦和容纳时尚,在此展现,以照壁墙的作用方式展开应用。
诠 释
DA CAI
内 涵
步入空间其中,保留原始空间的客厅空间下沉,用作洽谈区,钢化玻璃的扶手,结合地面的灰色艺术砖,钢板收口延续大彩工艺,让空间的商务感正式感和设计的对外输出同时体现,对应室内的 LOGO 墙|专注决定品质细节成就精品,用空间的设计去阐释企业文化的 slogan;一层作为软装部的主要工区,功能以办公和部分选材、材料作为展示,连着户外的庭院,让多彩温暖的软装和自然最近,柔化空间中的硬朗商务;在原始的挑空部门延展向外再做了部分的搭建,既扩张了二层的使用面积,又保证整体空间的采光和通透,纯白色的极简,让空间轻盈年轻化,亦给未来的办公展示设置留白,艺 术 DA CAI 点 睛。
虚实各半的扶手工艺,8 公分的木板漆白,钢板封边,时尚的轻薄感带你走进二层空间。
办公空间的工区,亦需要能够让工作的心,安稳地、丰富地、融洽地发挥,作为设计创意的办公场所,艺术氛围自是不可或缺。
艺术家、工艺美术大师、大彩设计的创始人傅强老师的画作和艺术作品适合的渗入到空间的各个区域,原创的铁艺作品、油画作品、纸版画作品,都成为空间的艺术点睛之处。
二层作为设计总监和设计助理的办公室及工区,办公功能更加集中,包罗万象,对应不同的设计总监的设计个性,亦展现大彩设计的多样和全面,时尚的、素雅的、民俗的、传统的、现代的、多样却有序的“设计排列”,光影律动,繁忙但自得。
借几盏人间落霞,收成一束,藏进庭院花草间。
庭院作为无形的“结界”,亦是 6 个打通空间内外的衔接点,让所有的庭院连接起来,可以让工作中的繁忙得到短暂舒适的休憩,亦是另一种空间通道,红砖勾缝、白墙立体,自然生长。
大 宅
DA CAI
穿越而过,这里是大彩大宅设计的办公空间,作为大彩设计最新鲜的团队之一,办公空间亦跟随业务输出范畴随行,以大宅私墅的样板为情境展示。
原始的下沉空间填平,以横厅的方式将整体的一层空间进行功能设计,餐厨空间、会客空间等展示,也可随时都转化为不同的客户洽谈区。
大彩的专属球磨红砖工艺在此空间展示,结合宽缝工艺,多种艺术的排列铺贴,工艺和材质的变幻,让朴实和现代经过设计的演变,被艺术特色的呈现,既装饰了空间,又输出了企业的工艺亮点。
传 承
DA CAI
展 现
企业的发展和保留,都要在办公空间中诉说,
行至深入另一个连贯空间,这里代表了大彩老一辈设计前辈的沉淀和稳妥,更多的传承和后盾,阅读区学习区、会议室、工程办公区域、财务办公区、企业历史荣誉墙等,
用公区的功能去循序渐进的影响每一个空间里的人;
石材和钢板的工艺结合作为本空间的工艺输出元素之一,被充分应用,傅老师的画作和铁艺又为此空间的气质另行创作,企业自有的个性虽展示不同却气质核心一致。
我们手持设计之笔,
希望,
送给每一个,
夜幕里的你,
一个灯火可亲温暖的家。
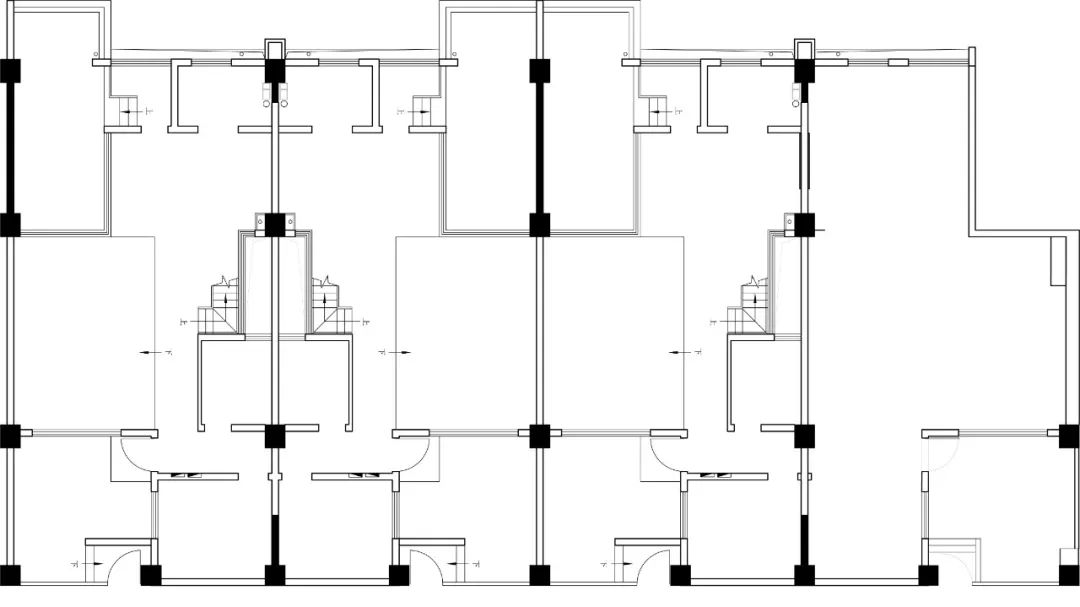
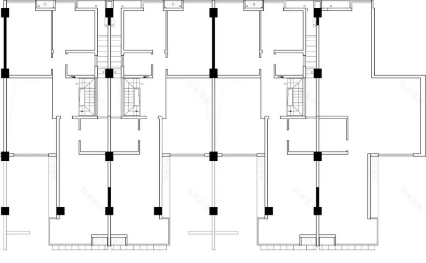
平面布置 FLOOR PLAN
?1 原始平面图
?1 平面布局图
?2 原始平面图
?2 平面布局图
?3 原始平面图
?3 平面布局图
?4 原始平面图
?4 平面布局图
ABOUT PROJECT
项目名称 / Name | 大彩设计
项目类型 / Type | 办公空间
项目位置 / Location | 中国· 西安
项目面积 / Area | 1800 ㎡
设计主创 / Creator | 傅强
设计规划统筹 / Plan sa a whole | 解辉
参与设计 / Participation | 郭天喜
参与设计 / Participation | 赵珊
参与设计 / Participation | 高凯
参与设计 / Participation | 马涛
参与设计 / Participation | 柳文婷
参与设计 / Participation | 张硕
项目摄影 / Photo | 杨磊
关于大彩:
大者,远大,高远无止境之谓;彩者,出彩,多彩无极限之意。经过 27 年的踏实践行,西安大彩设计工程有限公司已经成为室内建筑设计、施工行业的翘楚。
1995 年,西安大彩设计工程有限责任公司创立之初,聚集了一批来自清华美术学院、西安美术学院、天津美术学院等诸多国内知名美术院校毕业的青年俊才。傅强先生、余平先生等这些后来在设计领域耳熟能详的名字,是大彩元老级的奠基者,他们把自己对美、对生活、对健康、对环境的审美灌注于自己的设计理念和设计态度之中:秉持健康、生态、环保的设计理念,追求人与人之间,人与环境之间,大环境和小氛围之间的关系与和谐,二十七年来秉持初心,致力于“构筑品质生活空间”。
关注筑客西安
合作联系
投稿
对话框回复“投稿”
咨询&找设计师
对话框回复“咨询“
客服
消息
收藏
下载
最近













































