查看完整案例


收藏

下载
WE LIVE HERE
HAPPILY EVER AFTER
自此醉心生活于此处
— —We are happy to get together
薄小飞|采访撰文
私宅别墅|项目类型
锦业时代|采访地点
唐 盈|设计师
居住要以持续愉快的住下去为设计主旨,包容持续住在这个建筑里的人,居住的人数和生活方式如何自由自在,是设计师唐盈设计和改造的行为意义;
本案,350 平方米,私宅别墅,设计也是有软硬度的,在空间里软硬适中的去模拟居住情境,渐渐地让这里变成生活成长的“硬盘”,不断储存,不断丰满,不断充盈。
欢聚
TUOZHEDESIGN
触感
欢聚是有触感的,
触及到内心的许多眷恋。
一层的空间被设计师以“聚”为核心展开功能设计,配合外部的建筑关系,别墅的欧式元素外立面,被隐身浅尝辄止的在门厅表达,入户的偏欧式的拼花门厅与之呼应,原始的子母门被双开门替代,增加了进门的空间储纳,整洁有效保证了质感和仪式感,同时将原本间断的电视墙和门厅串联,让整体空间统一流畅,大面积的墙面留白,预留未来生活记录空间;原始的两个小窗户让空间采光微弱,干脆拆掉重组扩大成为一面大大的采光窗,丰盈的采光大把的泄入屋内,欢聚总是和阳光很要好。
餐厨
TUOZHEDESIGN
生趣
我相信,设计师唐盈对空间是有潜在的设计愿望的,即使厨房是一个制作场所,但是餐厨总是互动中最生趣的地方,原始的空间厨房窄小,空间细碎,将中厨北移,设计增加了西厨空间,取消传统厨房的双推门,成为双向推拉,没有爆炒项目时完全打开,中西餐厨一体化,空间的使用方式发生了质的变化,客厅和餐厅原始的错层,两阶台阶让其层次错落,文艺满满的墨绿色圆桌,围合圆满,亦艺术有生机。格外 TUOZHEDESIGN 发挥
?楼梯改造 SU 动画
我们天生亲近自然,原始的楼梯仅是基础的功能,充分发挥才是设计的格外发挥,犹如空间中的意外之喜。西移的楼梯成为一个小小的室内“建筑体”,一部分做了景观花台,让上下行走自然中,错层之处做了储物间使用。扶手木工师傅现场手工打磨弧度,上漆,切弧造型,增加踏步数量和宽度等增强安全性能,一抹色彩打破上下贯穿的空荡感。
预留
TUOZHEDESIGN
专属
屋主的专属睡眠生活区规划在二楼空间,原始的空间分隔比较细碎,主卧并没有独立的衣帽间空间,将卫浴间南移,砸掉原本的阳台隔墙,搭建露台,同时将阳台全部收进主卧空间,光也大大方方的进来,风也摇摇摆摆地吹入,定制的衣帽间不浪费任何一丝空间,完整的主卧套房功能顺畅呈现。
一楼规划搭建的设备空间,成为二楼扩大的地面空间,紧邻女儿房,成为二层的景观台,亦预留了未来家庭成员的卧室,关照和预留都被充分考虑。
居住
TUOZHEDESIGN
关怀
作为原始大开敞的负一层空间,
设计师做了
休闲区的大结合设计,
休闲娱乐一体化,健身悠闲都兼具,
考虑到观影区域的时长,
因此很细腻的在负一层增加水路,
设计安置一个卫生间,
充分考虑居住关怀。
云拼欲下星斗动,轻风拂面,自此醉心生活于此处。
ABOUT PROJECT
项目名称 / Name | 蔷薇溪谷
项目类型 / Type | 私宅·别墅
项目位置 / Location | 中国·西安
项目面积 / Area | 350㎡
完工时间 / Time | 2021.12
主创设计师 / Design | 唐盈
设计团队 / Team | 车勇、侯鹏
深化团队 / Deepen | 车勇、侯鹏
项目摄影 / Photo | 任东
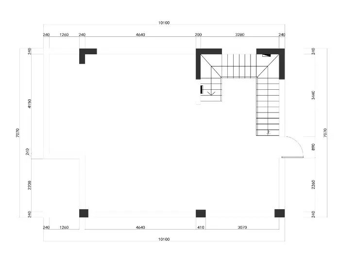
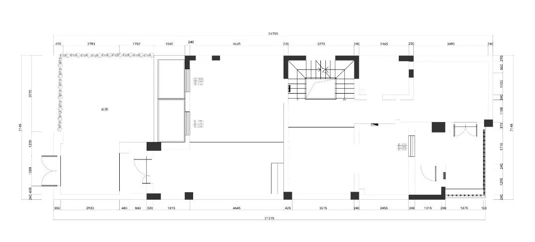
平面布置 FLOOR PLAN
?-1 层原始平面图
?-1 层平面布局图
?1 层原始平面图
?1 层平面布局图
?2 层原始平面图
?2 层平面布局图
ABOUT DESIGNER
- 主案设计师
l 唐盈
- 印迹空间设计创始人&设计总监
关注筑客西安
合作联系
投稿
对话框回复“投稿”
咨询&找设计师
对话框回复“咨询“
客服
消息
收藏
下载
最近



































