查看完整案例


收藏

下载
LETTHESMILE TAKE OFFNATURALLY
让微笑自然起飞
— —You are happy so i am happy
采访撰文丨薄小飞
项目类型 |口腔医院
采访地点| 龙湖盛景
设计师 |张语炜
治愈——
在这里不仅仅是动词,
设计师张语炜希望在医疗空间的设计表达中,
治愈是多变词性,
引申出甜美的微笑牙齿,
多滋的美食味觉,
亲和的医患关系等。
本案,1000 平方米,口腔医院,
作为设计表达空间对患者的关照,
在兼具专业的同时“柔化”多种关系。
01 有机结合 ORGANICBOND
作为医疗细分类——口腔医院的设计,设计师着手去传统化,通过设计消弭掉紧张感、机械冰冷感,将设计的温暖关怀和功能技术感“有机结合”;预约就诊台给予更多的舒适化,大面积的空间留白,就诊动线不被刻板局限,遵循人性化、功能化、生态感的互动,享受外部环境和内部环境的互通,利用空间的自有条件,做合理的功能区规划,以友好的设计管理弱化紧张感,输出业态,展现态度。
用设计的轻盈笔触去弱化医疗的冰冷印象。除却公共的接待和等候区域,原始的一层空间被设计师规划了 4 个分诊室。半弧的热弯玻璃设计感和商务感兼具,与室外自然有了链接。设计表达的“包裹感”将分诊看牙的紧张害怕分解,温暖的木色吊柜和工作台平衡器械冷冰感,铸模的功能和无菌的标准都满足,设计的关怀在细节上贯穿。
不仅仅要消除患者的就医恐惧感,亦要提高医护人员的幸福感,作为公共的共享空间,设计师考虑到了所有空间里的“人”,小有心机的设计了很多视觉点,光影的律动,让空间通透,开合的律动,让空间无缝,使用的律动,让空间亲和。
02轻松行走
EASY TO WALK
两跑楼梯是过渡空间亦是链接空间,设计师要融合医疗空间的专业要求,亦要体现引导患者的就诊动线。防火墙被巧妙设计,一侧连接企业荣誉墙,向上贯通上下空间,设计的阵列通透方洞中夹入防火玻璃,光影从一层穿入负一层,光影随着一天的时间“行走”;另一侧晶莹通透的玻璃砖让空间轻松有层次,艺术氛围感被轻轻安放。
专业的各个诊室,设计师根据不同功能类型,因地制宜地做了最合适的规划。比如没有采光的空间顺势成为拍片室,采光微弱的地方安置药房,方便储存,一些死角被充分利用作为消毒使用。在保证专业功能的同时,设计师尽量让室内外互动,让等候的患者家属和患者能够去除烦躁,让医患关系变得亲和温暖。
03亦有期待
LOOKING FORWARDTO
无论如何,我们都该享受阳光和自然,即使是去就医。设计师在二楼的接待等候区,设计了内庭院。以庭院为中心,散发对周边空间和人的关照,减轻等待的焦虑感,充满趣味感的小景怡人。空间上下的互动,周遭的包容,让严肃的就医心境变得平缓和偶有期待。
04 贯穿关爱
THROUGH LOVE
设计规划预留了专门的“儿牙”诊室,儿牙对着中庭,采光舒适。对于小朋友的细心呵护,设计师希望缓缓融入,让空间色彩的饱和度低一点,保护视力,消隐烦躁。温暖文艺融合有趣的卡通形象,从墙面、顶面甚至延展到了医疗器械上,尽量让整体不突兀。从空间的童趣表现和设计上延展儿牙诊室,在能够转移小朋友就医注意力的同时,亦能够挑动他们的好奇心分散不快。
我有一个愿望,
粲然一笑时,
开心满天飞的关不住。
ABOUT PROJECT
项目名称 / Name | 联合佳医·口腔医院
项目类型 / Type | 医疗空间
项目位置 / Location | 中国·西安皇城坊
项目面积 / Area | 1000 ㎡
完工时间 / Time | 2021.10
主创设计师 / Design | 张语炜
医疗设备顾问 / Counselor | 段晖
项目摄影 / Photo | 刘南南
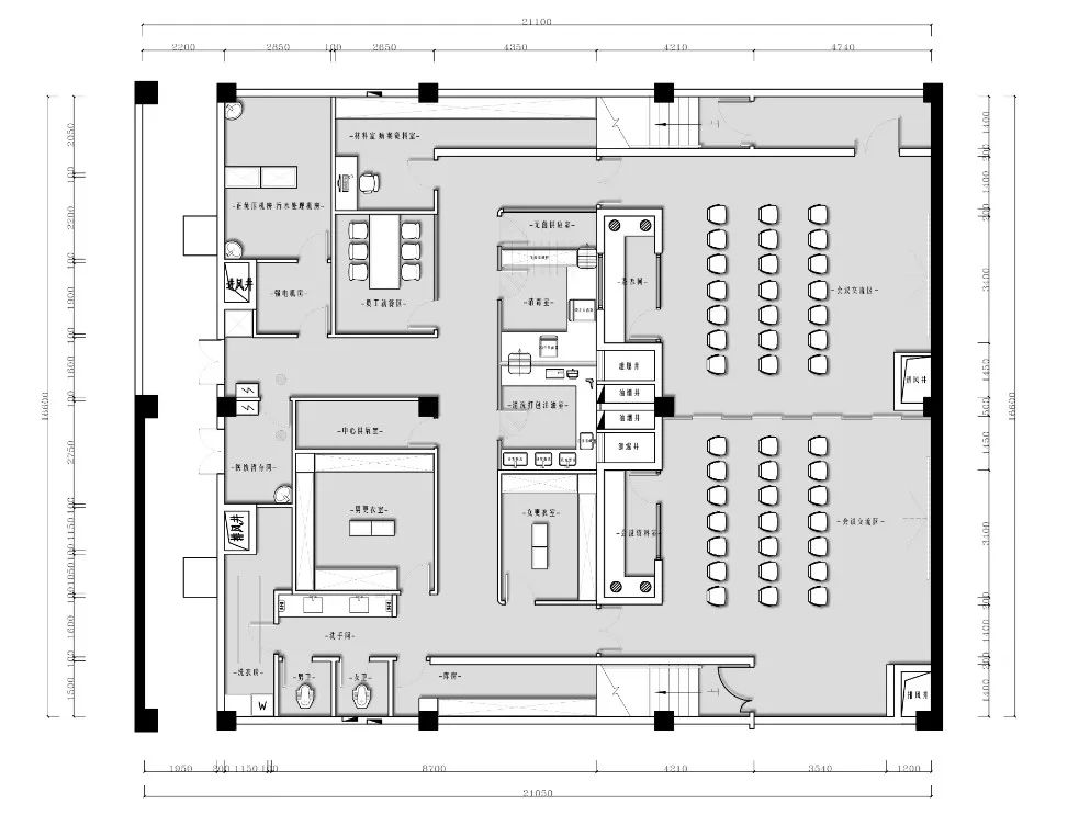
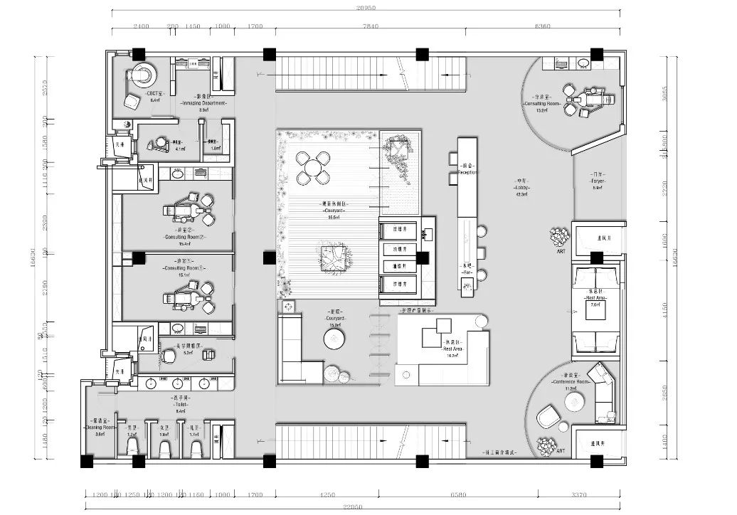
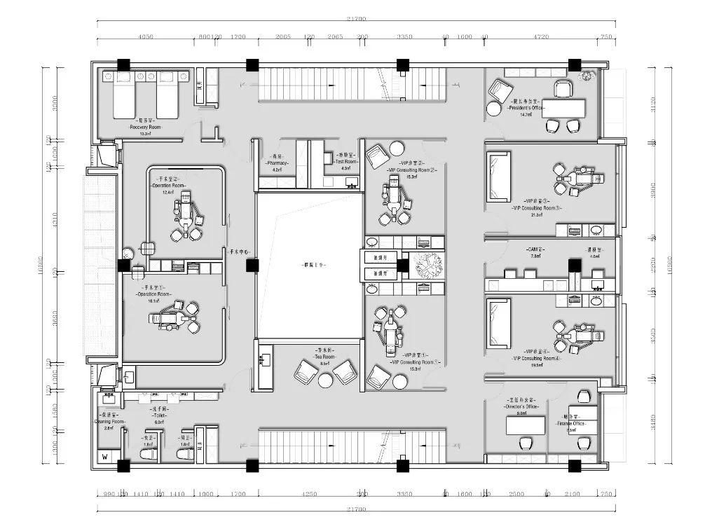
平面布置 FLOOR PLAN
?-1 层平面布局图
?1 层平面布局图
?2 层平面布局图
ABOUT DESIGNER
- 主案设计师
l 张语炜
- 本来空间设计创始人&设计总监
其他作品相关链接:
筑客首发 | 张语炜 / 华夏城投 让办公空间有机“自适应”
张语炜新作 | 生活点滴温暖,内心五彩斑斓!
筑客首发 | 张语炜 ×龙湖·原著/细节的仪式感 让空间“自我进化”
张语炜简介:
2001-2005 年 西安美术学院
2014-2018 年 进修于米兰理工大学 人居环境硕士研习营
2018-2019 年进修于清华大学美术学院空间环境艺术设计高级研修班
获得荣誉:
2006 年中国建筑装饰协会注册高级设计师
2010 年西安设计师俱乐部会员
2012 年行业客户满意率最高十大设计师
2015 年荣获筑巢家装类优秀设计作品奖
2017 年荣获第七届筑巢奖·公共空间设计金奖
2017 年荣获意大利.米兰三年展作品参展邀请
2019 年荣获金堂奖.中国室内设计年度评选休闲娱乐空间设计优秀作品奖
2020 年荣获华鼎奖“2019-2020 年度中国建筑装饰行业最具影响力设计师(别墅豪宅空间)
2021 年荣获第十届筑巢奖·大户型空间金奖
关注筑客西安
合作联系
投稿
对话框回复“投稿”
咨询&找设计师
对话框回复“咨询”
客服
消息
收藏
下载
最近






























