查看完整案例


收藏

下载
MAKE YOUPROSPEROUS FOREVER
许你一世繁华
如星如月皎洁
撰文丨薄小飞
项目类型 | 商业空间
设计师 | 李秦龙
采访地点 | IMOLA 大宅会所
花开清明,
春过半,
梦短情长,
莫空负。
我深深以为,
想见面时,就见面,
有喜欢的人,就明白对他说喜欢,
花开了,就庆祝,
遇到爱的人,就好好爱个够,
有高兴的事与人分享,
就好好与人分享,
幸福的时候,
好好拥抱幸福;
本案,500㎡,位于永宁门王府井百货。
集展厅&秀场于一体的私人高端定制婚纱店,
设计师团队希望在琦奥婚纱店里,
少即是多的设计笔触诉说最有力的空间话语,
线条凝练和留白,
给予这个特殊的空间——
“私人定制婚纱店”,
高贵圣洁的空间情绪
我想,
无论多绚丽丰富的色彩,
都无法比拟婚纱的幸福“色彩”,
纯白的婚纱配以纯白的空间,
每件婚纱都有 TA 的主人,
“千姿百媚”的等待着,
设计师希望将每件原创设计的婚纱都充分展示,
期翼遇到最适合的主人,
设计打造简约时尚的空间感受,
从婚纱展示区开始,
黑色收边,
镜面不锈钢与空间造型结合,
方中有序,
圆中寓满,
被婚纱包围在中间的展示台,
不锈钢镜面与试衣镜巧妙设计,
全方位有了映照功能,
发挥功能的同时,
亦能全面的观察展示整个婚纱试穿的过程及效果。
每件婚纱都承载着每一个女孩的梦想,而在 CIAO 婚纱店,每件婚纱都是独一无二的存在。因此,设计师在展示区的设计上细节细腻,让每件婚纱都以舒展的姿态,在纯白的空间里,大板的鱼肚白瓷砖纹理与不锈钢的肌理互为空间“皮肤”,创造预约的高级感。
在空间的灯光设计上,设计师及其团队做了细致的测试,用最合适灯光方案,结合展示区的设计造型,营造独特的试衣感受。
这里,是幸福的起点,见证每个最美的新娘。独一无二的展示,简单精致的定制展示柜,不同的器皿,黑色的流线,让空间感受更具艺术感。
这里,总有一款让你动心的心仪款,徐徐展开甜蜜的动力。
有他的陪伴,最美的样子都给他看。
设计师考虑到每位陪同的客人,在大厅的区域,墙面空间用作婚纱展示,中空空间设计规划成为休闲区,功能不同,但设计绝对追求浑然一体,去除一切繁杂装饰。
位于永宁门这样拥有历史情绪的地方,设计师亦希望被沿街而过的人一眼驻足,因此定制的 LOGO 和空间不锈钢融合,既输出展示了品牌,亦让休闲区域有了穿透开阔性。
终于,定制的婚纱美丽绽放。这不是一般的流水线的婚纱照,专属的影棚区位给每一位定制的客人做定制的是拍摄。除却满足影棚的物理条件外,设计师在有限的空间内做了多种功能设计,满足各种不同的拍摄背景更替。纯白无暇中,才能创造更多丰富。
绵绵情意,圣洁渲染。经过婚纱挑试,由此进入专属的个人区域,即使穿行廊间,尊享、独享、欣赏。设计师李秦龙希望通过非黑即白的空间色调,去让空间给予客户更多的想象。通道以 VIP 的方式开启,黑色色调与婚纱的整体展示区成为区分“结界”,黑白互映中,有神秘、有期待。镜面增加空间的张力扩张视角,打造曲径通幽的静谧时尚,亦步亦趋的欣赏最美的她。今夕何夕,见此邂逅!- ABOUT PROJECT -
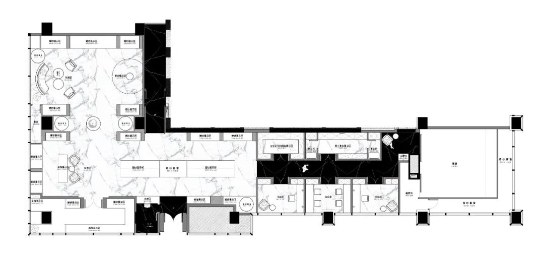
平面布局图▼
PROJECT INTRODUCTION:
项目名称/ Name | CIAO 婚纱定制
项目类型/ Type | 商业空间
项目位置/Location | 中国·西安·王府井百货
项目面积/Area | 500㎡
主要色调 / Hue | 黑色&白色
设计单位/Unit| LOONG STUDIO
主案设计 /Design| 李秦龙
设计团队/ Soft outfit | 侯威、谭亚东、易路、戴阎呈
项目摄影 / Shoot | 见筑空间摄影-任东
- ABOUT DESIGNER-
— 李秦龙 —
LOONG STUDIO 创始人/设计总监
李秦龙
专业:空间规划 艺术设计
学历:
意大利米兰理工大学-空间规划设计硕士
意大利米兰布雷拉美术-学院艺术设计 设计硕士
现任:LOONG STUDIO 创始人/设计总监
荣誉:
2019 / 金堂奖年度杰出零售空间设计(2019 中国设计年度)
2018 / 第八届商业空间筑巢奖(提名奖)
2017 / 40 UNDER 40 中国设计杰出青年(2017-2018 年度榜)
关注筑客西安
合作联系
投稿
对话框回复“投稿”
咨询&找设计师
对话框回复“咨询”
客服
消息
收藏
下载
最近




















