查看完整案例


收藏

下载
SWNSE OF SPATIAL RITUAL
场域 仪式感
撰文丨薄小飞
项目类型 | 私宅别墅
设计师 | 杨勃
采访地点 | 龙湖星悦荟
生活需要仪式感,空间需要场域感,于是,当流畅的场域邂逅细分的仪式感,生活便起了化学反应。
本案,为两户联排别墅合并打通,合并后总面积为 860㎡,合并后中间四个柱子成为空间很大的限制,设计师杨勃开始了设计的“消隐”,结合屋主的居住习惯和空间承载需求,将空间动线做了全部的重置,用精确的图纸、精准的落地,精心的设计,展开了一场“极简”的空间展示,这两个原本无关的建筑和空间,通过设计粘合,成为一个屋顶下的整个居所,这个住宅便有了——思想,合理性、机能性、便利性、舒适性……
-1 层 "愉悦" 身心
Relax the body
收纳+功能
我想生活应该拥有“游戏心”,
让更多的东西归置规整,
让更多的功能都能显现,
作为本案的-1 层空间而言,
连接着地库的入户门,
更多的时候,也充当着屋主入户的“第一关”。
设计师将保姆间、司机休息室、储物间、收藏室,
这些迎合满足屋主生活配套的空间都安置于此。
剩下的开放空间用作健身房和影音室,
因为配套的功能空间都是“静止”空间,
因此相对很安静。
基于-1 层的采光和结构,
影音室安置于此,
水泥质感结合艺术涂料,
宽敞恣意的空间中,
RocheBobois 模块组合沙发让空间高级又趣味,
不锈钢镜面将结构柱包裹隐藏,
转劣为优,成为健身房的映照,
健身房的空间镜面结合极简的白色设计,
放松阔然。
1 层 "生活"仪式感
Senseof ritual of life
客|餐|厨+茶|书|阳台
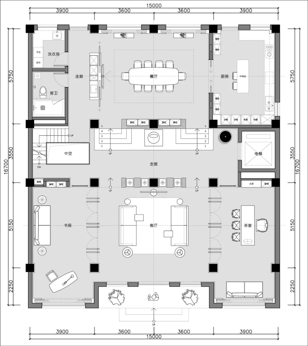
合并打通后的两套联排建筑,存在结构上的限制——中间四个大柱子。于是,设计师结合建筑设计院,将卡在入户门的柱子去掉,再用碳纤维加固,将中间的空间打开,开始做平面的布局。回型动线环环相套,如何消隐掉横在全屋中间的几个大柱子,是设计的关键点之一。于是,客餐厅分区开始,既然不能拆掉,就用它。设计师将其中一个柱子等距两边复制,中间用透光的丝质玻璃装置,形成客厅的沙发背景墙,有着轻奢极简的设计流线,预留着空间双动线,亦借位错落所有的视觉点。
廊间将餐厨与客厅休闲区分割又连接,设计师结合屋主的喜好,将餐厨空间做了错层的设计,将餐厅区域的柱子延展成为墙面,廊间动线半通透的区域安置了佛堂,引导屋主的生活习惯,每天从虔诚开始;五阶楼梯踏步,亦隐藏设计小心思,与墙面相接,渐行变短,仿佛与墙面自然成长出来的台阶,拾阶而上,来到餐厨区域,浅白色的餐厅整体色调中,为了保证空间层高的舒适性,设计师并未吊平顶,而是将结构梁用镜面不锈钢进行了包裹,FLUA 的极具设计感的灯具在此相得益彰。
一楼的生活区域以双动线展开,回型流通,设计师杨勃希望通过设计空间功能区域,更好的处理空间的大关系。转回客厅区域,紧邻相左的是现代感十足的茶室,素雅中干净整洁,让材料更加的统一,全屋的环球石材,大面积的无缝相接,输入清雅。
客厅相左的区位中,设计了书房空间,与客厅茶室整体的地面墙面保持统一。深色的纱帘结合书房的沉稳,将屋主收藏的古香古色的家具填入此空间,主人的习性和新生活在碰撞中融合。
原始建筑的中空采光景德区域,设计师将其作为一楼的休闲区域,开一扇足够高的窗,与庭院相对,让自然入内,四季流转中,感受万物可爱。
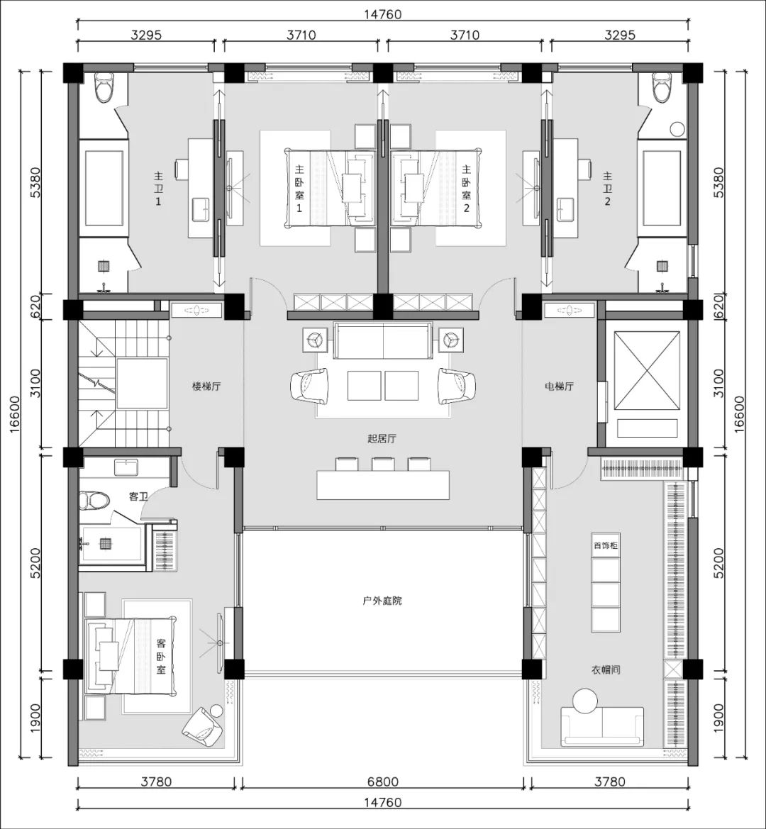
2 层 "私享" 起居
Enioyprivate life
配套+私密
二层的空间都给予了屋主的起居使用,并不是全新就是设计,如何将屋主的收藏融入也很关键,屋主收藏的一套红木卧室家具成为主卧室的“主体”,双主卧、双主卫、起居厅、衣帽间、客卧以“总统套”的方式,进行了整个起居室的动线和功能设计划分。
3 层 "消隐" 细节
Blanking details
藏起来
建筑的坡屋顶,成为三层空间的结构呈现,保持坡屋顶的结构形态,开始展开设计。女儿房被安放在三层空间,更多的共享空间被用作起居厅、书房等休闲使用。全屋的很多设备被隐藏在此层空间,设计师做了很巧妙的设计布置,将楼梯拉平,隐藏中央空调。请仔细看书柜的板面,做成了同等材质的出风排风口,将风机盘管都甩进隐藏。设计的细节在于细致的落地,就犹如本案。
不仅仅是生活的享乐,更是设计的实践。我们都选择变得更幸福!ABOUT PROJECT
?-1 层平面布置
?1 层平面布置
?2 层平面布置
? 3 层平面布置
项目名称/ Name | M 宅-素以为绚
项目类型/ Type | 私宅别墅
项目位置/Location | 中国·西安
项目面积/Area | 860㎡
完工时间/ Time | 2021.03
主创设计师/Design | 杨勃
摄影师 / Photo| 见筑空间摄影-任东
软装品牌 | Minotti RocheBobois NATUZZI Kvadrat Technogym FLUA Artemide Dornbracht VilleroyBoch Versace nobilia ASKO Miele LUTRON
材料品牌 | ULTRA 环球石材 KAWAJUN VIMAR LAMP JOJO ARTE Jacuzzi
ABOUT DESIGNER
主持设计 杨勃
白贲空间设计创始人 / 设计总监
关注筑客西安
合作联系
投稿
对话框回复“投稿”
咨询&找设计师
对话框回复“咨询”
客服
消息
收藏
下载
最近






































