查看完整案例


收藏

下载
山水润灵秀·刀笔刻春秋
WALK IN THE NATURAL BIRTH
闲适 自然新生
撰文丨薄小飞
项目类型 | 售楼中心
设计单位 | 上原米修设计
空间 | Spacecenter | 告白
作为重庆最文化的地区,众多名校栖息于此构成大学城板块,文化气韵的脉络生生,历史文艺在传承中新生,大学城板块+西永微电原板块,共同构成了西永组团式的发展,展示了巴蜀地区的历史悠扬,古今延展在这里异彩纷呈,西永作为重庆各大板块的宜居之最,本案就位于此处区域核心地段。
如何将本土文化在空间中表达?展现生态、自然、文化、闲适,设计师将几何元素玩转,刻字文化的展现,大面积木格组成的造型,木块堆砌的柜子,以及许多壁龛造型的斜切面,用设计致敬传统工艺,留住美工刀的痕迹。让空间的立体感和层次节奏感,包裹着、带动着文艺光影的律动,自然和自由,让空间情景有了无限可能。
纯净和绿意最能代表自然,而几何的线条感在其中延伸。从细微处着手,售楼中心的路径接待中,接待区“打头阵”,不用大体块占据视线,黑白折射中,光影与生机迎接步入其中的每个人。
沙盘 · 呈未来
沙盘区作为售楼中心的主要功能区域,这里展现着许多未来业主的环境布局。高挑的层高让设计有了更好的发挥,但同时也对设计层次的展现有了要求。如何在硬朗的沙盘展示区注入情绪?是本区域的设计重点。新东方的儒雅和韵味融合点光源,拟星河,拟行星,星光与宇宙苍穹让空间边沿无限延展。密集的木格栅搭着障子纸般的质感,序列之美中,书香雅致的气韵萦绕梁间。静下心来,慢慢看一看近在眼前的未来。
童趣·心柔软
从沙盘区到儿童区,空间元素上一脉延展,自然生态的原木被格子呈现,区域有了转化,设计的形态产生的情绪也有了变化。在这里,木格更像是魔方,许多的造型壁龛被鼠尾草绿占据,空间灵动可爱了起来,小兔晃着耳朵和可爱的桌凳互动。
设计师在儿童区和洽谈区之间设计了中空的隔断,贴心的交互功能让硬朗的售楼中心变得柔软。
交谈·密无间
从空间的“窥视“开始,
在洽谈区设计师更加明显的注重序列之美,
将文化内涵根植于此,
用空间氛围去调动和影响区域人和物。
现代东方的贵隐之美从空间的每个“毛孔”外泄,
嫩叶翘枝头,
光影中生命力涌动,
空间的几何造型更像是一种链接的介质,
让你能坐下来,
慢慢倾听,
慢慢诉说,
心无旁骛的去沟通交流,
平衡与内敛,
尊重与尊贵,
当下即安。
VIP· 新尊享
、
这里更像是家的专属空间,你自己的那个空间,在这里你可以说内心最私密的话,亦可以感受置业于此想拥有的生活方式。
如果生活有荒凉,
经过这里,
略去荒凉,
丰盈一如眼前。
- ABOUT PROJECT -
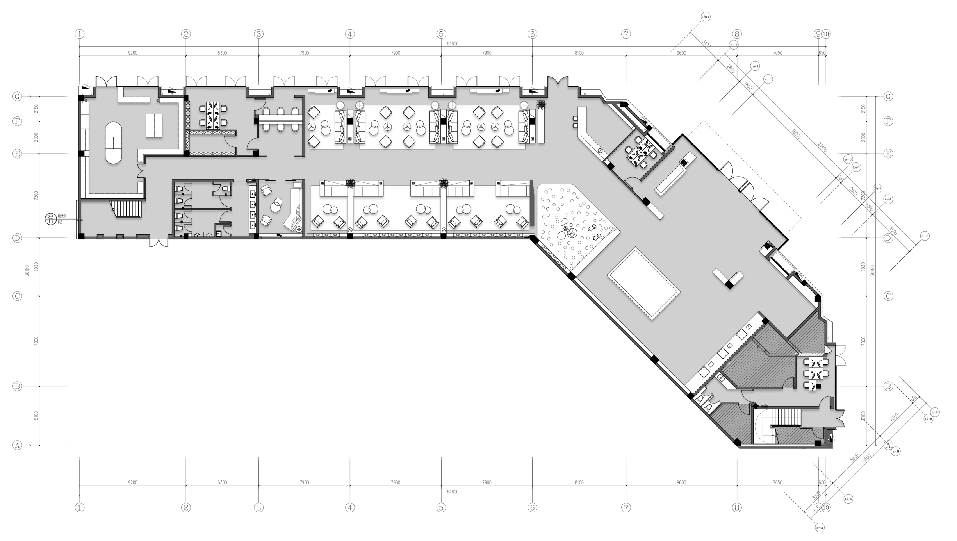
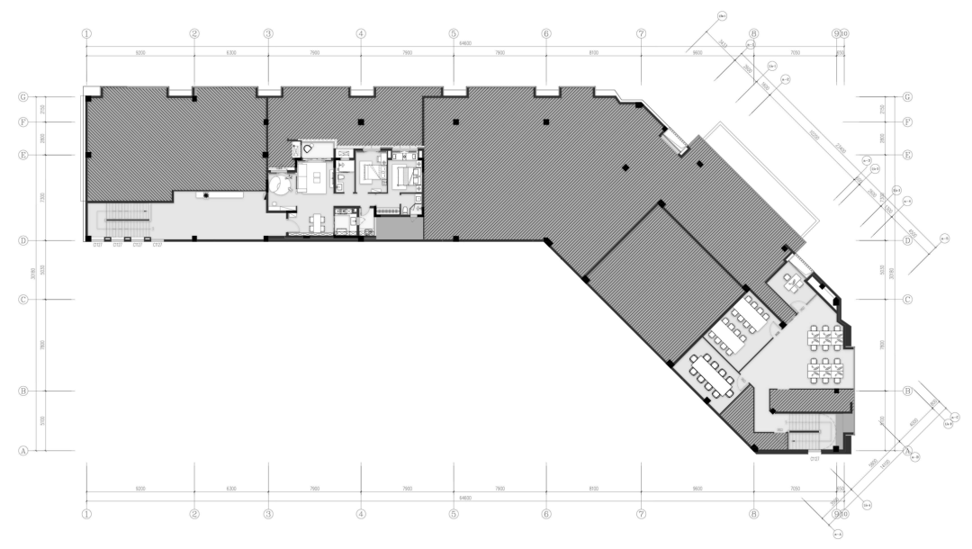
- 平面布局图 -
一层平面布局图
二层平面布局图
PROJECT INTRODUCTION:
项目名称/ Name | 重庆·融创云鼎城售楼中心
项目类型/ Type | 售楼中心
项目位置/Location | 中国·重庆永西
项目面积/Area |1195㎡
完工时间/ Time | 2020.12
设计公司/ Comoany | 上原米修设计
设计团队 /Design team |
- 李芳/ 李佳泰 / 黎晓 / 向可令 / 谭娇 /
叶正强 / 付仁杰 -
项目摄影 / Shoot | 见筑空间摄影-任东
- ABOUT DESIGNN-
李芳
上原米修空间设计创始人
重庆上原米修设计
自 2012 年成立,创立了以“上原米修”为品牌的主力文化输出。重庆公司总部配置超 130 人的设计团队及 2000 平米的办公场所,并在成都、深圳等地设立公司。
上原米修设计秉承“以客户为中心”的经营理念,致力于从事地产类示范区、公区、办公、精装房、商业综合体、软装定制等多种项目的设计服务,受到客户一致好评,并与国内多家优秀地产商达成了战略合作关系。
上原米修设计坚持从使用者感受和体验出发,以符合当下时代进程的设计视野,将创意和可行性相结合,对人文、环境、地理、历史等因素进行挖掘和提炼,力求实现并超越客户的期望价值,从而实现功能与美学相结合并兼具商业价值的设计产品。
关注筑客西安
合作联系
投稿
对话框回复“投稿”
咨询&找设计师
对话框回复“咨询”
客服
消息
收藏
下载
最近

























