查看完整案例


收藏

下载
叠墅·偌大惊喜 Big surprise
Double romance
of a gentle gentleman
窈窕绅士的双倍浪漫
撰文丨小伍
项目类型| 私宅·叠墅
设计师 |程奕达
「这是一个叠墅大变身的惊喜空间,将原建 170 平方米巧妙改造搭建成 260 平方米,空间的增加满足屋主的功能诉求,融合窈窕女主与绅士男主的气质,春风化雨绕指柔,让一家四口享受“双倍”浪漫生活。」
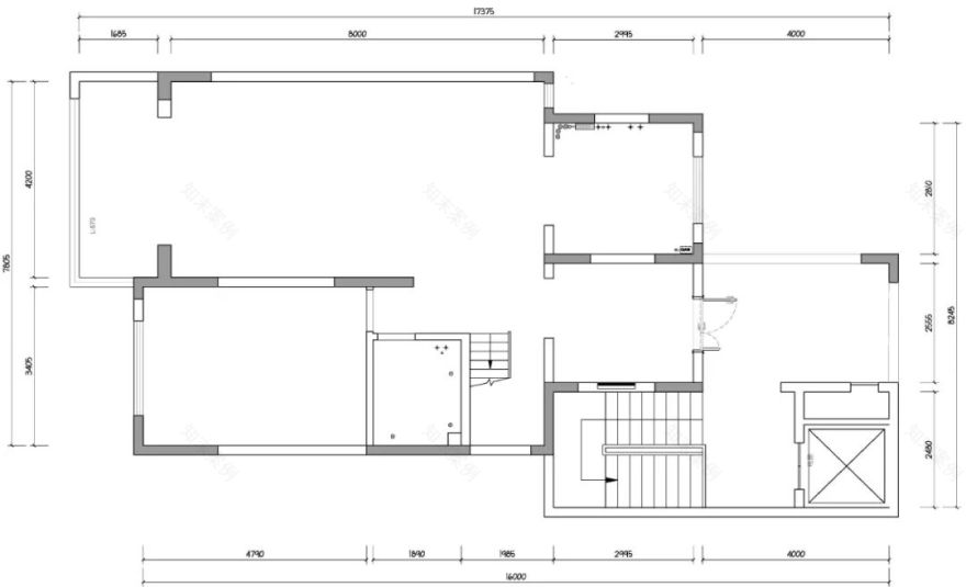
▼一层原始平面
—First floor original plane
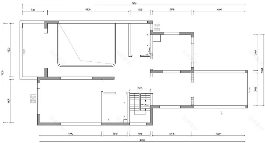
▼一层平面布局图
—First floor layout
1
气质 X 绕指柔
Temperament x gentle lingering
将入户门外移,原本的室外花园变成入户花园,造一个屏风照壁,鱼儿畅游与花草相映成趣,整理心情去见挚爱之人。印下指纹,隐形电动双推门开启,归家的仪式从小小的细节彰显,玄关柜称心如意的打整好居家装扮,抬眼,一家四口的动漫画像会心一笑,卸下疲惫,迎接“家”的主场。
砸掉二楼的过道平台,让电视背景墙一通到顶,一层挑空疏朗有序。高低错落的圆几,轻薄纤细的家具,细线条的木饰面与窄边框的挂画,细节至上的点滴,使得视觉纵深感延展,空间层次与张力十足。舒适的色阶柔缓过渡,白鹿越过层层山峦而来,带来祥瑞与福泽。
为规避卫生间无阻拦的视线,将垭口墙体增长,让空间形成中轴对称,功能上在此处加设一组酒柜,与餐厅形成联动与互补。阳台打开,为客厅提供更大的场域,将儿童阅读手工休闲区布置于此,阳光洒满屋,儿子与小女儿沉浸在自己的欢乐世界里,微笑,是我在见到你后,幸福的发酵。
通顶的柜体将冰箱完美隐藏,厨房里的烟火气也可以被设计的整洁又便捷。U 字型的动线,让烹饪得心应手,制作美食也需要一个可心的环境。三餐四季,美食与你,皆不辜负。
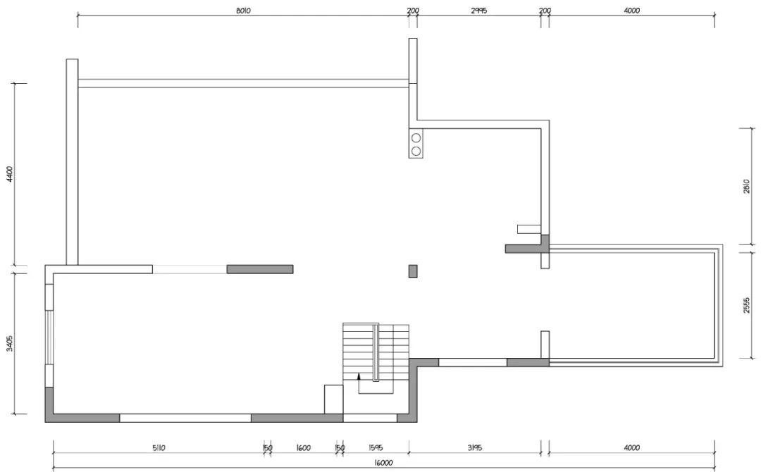
▼二层原始平面—Original plane of the second floor
▼二层平面布局图
—Second floor layout
2
串联 X 小世界
Series X Small World
封闭二楼平台过道,为一楼挑空节省空间。
规划动线,建 65 厘米小楼梯,通往这个练琴的小世界。
通透的玻璃沿着楼梯而来,
虚实之间隔而未隔,
我能听见你悠扬的琴声绕我心,
你能看见我鼓励的眼神满是欢喜,
爱意,在眼里藏不住。
关注空间的情绪,将材质、色彩、光源巧妙地融合,满吊顶点光源纯色调,营造一种安静、舒适、惬意的空间居住氛围。床头的兰花花开的绚烂,你说,这是一个生机勃勃的暮春。
舍弃卫生间为小女儿打造衣帽间,女主爆棚的少女心都呈现在这间软萌的公主房内。蕾丝蓬蓬帷幔垂落包裹住一颗纯净的心,我要做你床头的小熊,为你打败梦里的恶龙。
将阳台填补为男孩房卧室空间,弥补其面积狭小的不足。
运用灵活的推拉门将书房与卧室分隔,夜晚的甜梦有围合的安全感。
墙头挂画与背景造型呼应,被动的设计巧妙包裹隐藏下水管道。
星空顶氤氲一室静美,山河星月作贺礼伴你成长。
为“成全”家人的独立小空间与小世界,将主卧套间卫生间规划成共用卫生间,改变卫生间开门方向,将各个功能区妥帖安放,实现双面盆与干湿分离的诉求。1.2 米大板纵向铺垫空间拔高,淋浴间回型槽使下水更快且清理便捷,深色系瓷砖营造空间安静的氛围,于细节处,照见设计的力量。
▼三层原始平面—Original plane of the third floor
▼三层平面布局图
—Third floor layout plan
三层巧妙搭建将男主的爱好放置于此,
风雅茶事映着中国风的韵味,
这一隅中式的浓情化作绕指柔,
春风化雨,共伴一生。
———————
PROJECT INTRODUCTION:
项目名称/ Name | 中海悦墅
项目类型/ Type | 私宅·叠墅
项目位置/Location | 中国·西安
项目面积/Area | 260 ㎡
完工时间/ Time | 2020.08
主持设计师 /Design | 程奕达
项目摄影 / Shoot | 张晓明
- ABOUT DESIGNN-
全案设计- 程奕达
关注筑客西安
合作联系
投稿
对话框回复“投稿”
咨询&找设计师
对话框回复“咨询“
客服
消息
收藏
下载
最近




































