查看完整案例


收藏

下载
BALANCEDNATURALTRANSITION
平衡 自然过渡
撰文丨薄小飞
项目类型 | 办公空间
设计师 | 徐一舒
采访地点 | IMOLA 大宅会所
设计 |Design the story|背景
空间的本质是什么?我认为是身处其中的长期的、短暂的人们。对于需要工作的所有人而言,拥有良好的办公环境,绝对和其他的重要附属幸福指数同等重要。
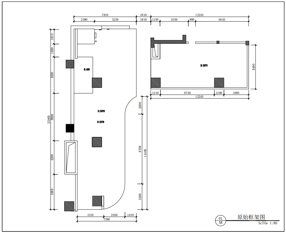
本案位于曲江居然之家商场内,空间功能定位为设计公司办公空间,作为商场内区别于其他品牌品类的存在,并行于品牌店面边侧,把角的位置、刀把状原始结构,空间存在缺陷。
设计师如何化繁为简,让定位办公和商业洽谈功能并重的空间得以实现?如何扭转劣势,让复杂错综的空间关系变得一目了然,平等相处?
步入其中,放下戒备,彼此拥有舒适的安全距离和视觉焦点,错落有致中建立平衡关系。借势颠覆·尊贵相迎
虽然原始的空间地面高低不齐,很难整端的规划,与其纠结统一平整,不如因地制宜的“借势”。设计师徐一舒很好的把控住了需要创造的空间层次关系,从入口开始,就打破常规,右边形象 LOGO 墙 120 度展开,迎八方来客,左边墙面开槽,切断窄长墙面视觉,空间不再被“焖住”,视觉有了全方位的着落点,亦有了设计美感。突出 45 公分的三阶台阶,连通至前台,台阶氛围灯与顶面线性灯带呼应,营造被尊贵迎接的感受。保持审美· 温柔情绪
行到前台处,步入空间中。
原本的狭长刀把型的空间是最不被看好的,设计师又展开了神奇的设计“借势”,扬长避短,白色扩展空间视觉感受,细节的设计美感都蕴藏了设计情绪。
KAWS 娃娃既是装置,亦象征着本案的办公空间设计定位,紧随时尚,保持艺术。黑白相对的几何壁灯,增添回味。
倚着前台口的柱子隐藏,设计出精致的小玄关兼具双面柜,对外面发挥装饰柜功能,对内承载 VIP 客储物柜功能。
我们透过“柜间”,从前台到室内,让彼此从陌生到熟悉。
介质空间· 互通有无
因为原始地面高低不齐+设备隐藏,除了设计师办公空间以外,其余空间整体抬高拉平,在同层空间里重新建立关系。黑色窄条收边的极简玻璃扶手,依着两阶台阶,上至客户处,下行工作中。
设计惊喜·包裹温柔
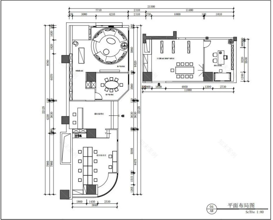
本案的营运主体为设计装饰公司,因此空间氛围设计师工位区域以及客户接待洽谈区域。设计师以刀把户型的拐角处为基点将空间一分为二,转身便是设计惊喜。整体抬升的客户接待、洽谈区域深入浅出,空间掏圆,将接待区下嵌,转劣为优,顶面的圆形线性灯相应互动,被包裹的温柔让人放下戒备。原本的跨柱间包平成为墙面,设计出多功能展架空间,一部分作为书架功能使用,一部分作为企业展示墙,储存和展示企业更多的资料。空间被充分利用,重现关怀。
灰白色的水泥自流平材质使得空间干净高级,这是完全不同于以往的洽谈空间。艺术装置画与空间长在一起,吸收了空间的商业硬朗和距离感。灰色的纱帘商务中透着柔软,极度舒适中透着商务的干练,空间也有了“微笑”面庞。功能传达·共赴曙光
设计师办公区域,半私密半通透,满足 10-11 个工位的使用功能。被“设计相对”降低的空间,我们传达将客户放在更高的位置。办公空间简洁明了,侧面的柱子亦被做平使用,与吧台的柜子背靠背,在办公区域设计出储物和打印机等办公使用空间。延展深入,便是总经理办公室&会议室,柱子到设备井之间的地方做成灯箱,定期更换最新内容,与客户接待区呼应展示,传达品牌更多的情绪和故事。
弧形钢化热弯玻璃,让紧邻商场通道的墙面视觉更流畅,设计师在此做了景观设计,体现生态家居倡导生态自然,造景自然入室。
在光明的景色中,迎接每一个不期而遇的生活方式。
- ABOUT PROJECT -
- 原始平面图
- 平面布局图
PROJECT INTRODUCTION:
项目名称/ Name |居然装饰·曲江设计中心
项目类型/ Type | 办公空间
项目位置/Location | 中国·西安·曲江
项目面积/Area | 190㎡
完工时间/ Time | 2020.12
主案设计/Design | 徐一舒
设计公司/ Comoany | 铂雅装饰&一舒空间设计
项目摄影 / Shoot | 杨磊
- ABOUT DESIGNN-
徐一舒
铂雅装饰&一舒空间设计 联合创始人/设计总监
从业时间:17 年
设计理念:做真实的自己,忠于梦想。
奖项荣誉:
2020 年“她”设计全国优秀设计奖
2019 年 40UNDER40(陕西省)设计杰出青年
2018 年 40 UNDER 40 中国(西安)设计杰出青年
2017 年 红棉室内设计最美欧式奖
2016 年 第 14 届现代装饰国际传媒奖――“年度新锐设计师大奖”
2014 年 广州设计周“再定义?设计精英人物”
2013 年 广州设计周“再定义?设计精英人物”
2013 年 金堂奖设计之星称号
2012 年 西安市住宅装饰行业优秀设计师
2011 年 西安华商报十大明星设计师
2009 年 全国美化家居大奖赛一等奖
2006 年 北京某装饰集团西南大区设计大奖赛二等奖
2005 年 亚泰室内设计大奖赛优秀奖
2004 年 全国美化家居大奖赛二等奖
主要案例:绿地香树花城别墅、振业泊墅别墅、曲江华侨城 108 坊别墅、曲江公馆和园别墅、高山流水别墅、山水草堂兰园别墅、钟楼世纪金花罗杰斯西餐厅、渭南高新区牧云中国餐厅、西安福盛轩足浴连锁店、西华门电信营业厅等
内容不够,扫描进入小程序,深入了解设计师徐一舒,你想知道的,都在这里~关注筑客西安合作联系投稿对话框回复“投稿”咨询&找设计师对话框回复“咨询”
客服
消息
收藏
下载
最近
























