查看完整案例


收藏

下载
雅致装庭宇·潇洒冠其中
BE GENTLE WITH SPACE
交互 温柔进化
撰文丨薄小飞
项目类型 | 私宅·底跃
设计师 | 张语炜
采访地点 | 大宅会所
空间| Spaceevolution | 进化
我想成为一个温柔的人,深深了解那种被温柔相待的感觉。我深深以为,想见面时就见面,花开了,就庆祝,遇到欢喜,就好好爱个够。那么从这个空间开始,我认为这是让生活常保新奇的方法。
本案,西安龙湖·原著,前后庭院相间中是本案的空间主体造型——底跃户型。原始负一层拥有 4.8 米的挑高,一层空间亦被分割的很细碎,作为三口之家的第一居所,如何各自分明又惬意互动,设计师张语炜将空间重置,挑空“邀请”阳光入室,夹层收纳欢愉,生活场景温暖轮转,休闲区域承载欢颜笑语,每个功能区间细节的仪式感,让整个空间随着岁月年轮不断“自我进化”。
01“All of this space is where we are.”
我们如影随形
原始的一层空间,被切割得比较细碎,看似功能间的数量上有优势,实则鸡肋空间不少,尤其是纯西向的卧室更是采光极少。于是,设计师将一层平面重置并扩张,原来并排的三个小卧室,去掉中间卧室,两边卧室向其进深,剩余部分摇身成为衣帽间。作为纵向贯穿空间的纽带——楼梯间,被扩大加载,空间通透舒适。将客餐厅尽量打开,楼梯装置小景,设计手法延展电视墙,与对应的沙发背景墙取其并序。弧度的饰面板在氛围灯的互动下,将原本因为挑空像塞入洞中的沙发托举出来,空间的欢愉互动是设计给予的情绪,让每个点位都有了着落。原始的室外露台被设计师抬手收进室内,安排与庭院互动的推拉门于此,或恰随雨声心动,或看她田园杂兴,或看辛巴随心欢。
02“We have a lot to say every day.”每天都有说不完的话。
设计师将一层空间从地面取材上一分为二,因为考虑到屋主养狗【辛巴】,因此客厅部分选用质感温馨的意大利 IMOLA 木纹砖,餐厨空间选用好打理的 IMOLA 的仿石纹砖,增加空间艺术情绪和调性质感。注重空间设计的取齐,入户门外移与餐厅&阳台外墙取齐,多出门厅空间与厨房取齐,“抢出了”足够的鞋柜空间,砸掉的原始餐厨间的隔墙后,下翻梁做了弱化处理,与空间并序融合,设计师的小心思不止于此,内嵌黑色的线性灯亦为空间做了分割引导,以 24 帧播放生活,导演许多如诗日常。
03Have you we are the closest.”有你就亲密无间。
拾阶而上,从负一层缓缓而至一层空间。楼梯既是空间的纵贯线,亦是上下链接的介质空间,设计师将氛围和舒适度调和到刚刚好,弱化上下的繁琐,也成为空间的设计亮点之一,传递着,引导着,纽结着。
04“It is a joy to have friends coming from afar.”
有朋自远方来
从负一层车库入户开始,开启本案的设计探索之路。原始的 4.8 米的负一层空间,向下深挖 20 公分,设计师尽量将空间里大多窗户大小保持一致,窗户都调皮地探出头,吸引和借来了许多阳光。用超高的拱形门互动且透视空间,将承重墙的四角充分利用,三个面弧的“窃窃私语”,柔软了整个空间,让负一层的“交通要塞”拥有仪式感。作为车库的门厅而入,承载了许多待客功能,屋主广结好友、酷爱球赛,朋友聚会是日常的热闹所在。夹层区域抵消了不少层高,设计师却机灵地在此安置酒窖,让空间毫无违和感。
弧形柔软了空间的硬朗,
与一层相同,地面材料亦做了空间切割,
生活明朗,万物可爱,
走心才是最好的仪式感。
“I am close to the wide world.”
离世界很近
设计师推陈出新打破常规,让书房和画室兼容又独立,在此处设计单跑悬空楼梯,既不占据空间,又可以与四周通透交互,电动老虎窗、遮光帘、玻璃膜,让私密和开放随时切换。即使再高的书架,都让屋主与书只有便捷的距离,许多心爱的藏品,随时都能近距离抚摸。
06“The innocence of a maiden.”送你一颗少女心
夹层给到女儿专属的空间,
豆沙粉萦绕少女情绪,
飘窗外延,借来更多采光入室。
因为夹层层高较低,
设计师做了许多的细节变幻。
卫浴部分墙面选用规格较大的砖,
让空间显得饱满宽敞。
盥洗间,因为设计有镜子来拉伸空间,
因此又选用小规格砖来点缀精致。
07“Let’s write ten lines of a good life“
书写如诗生活
所以,
若有重要的人,
就好好的和 TA 们共食、共生,团圆在一起
一起写出生活的十行好诗。
- ABOUT PROJECT -
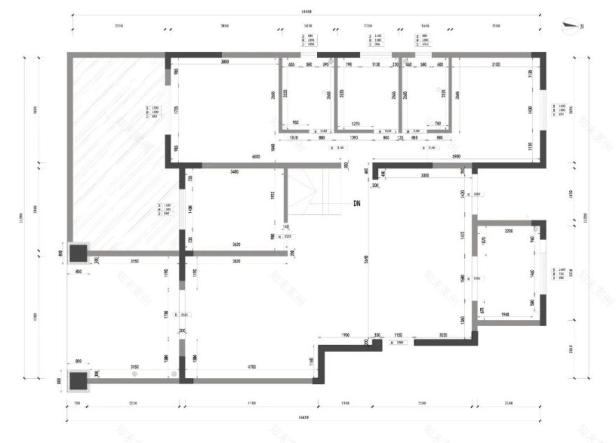
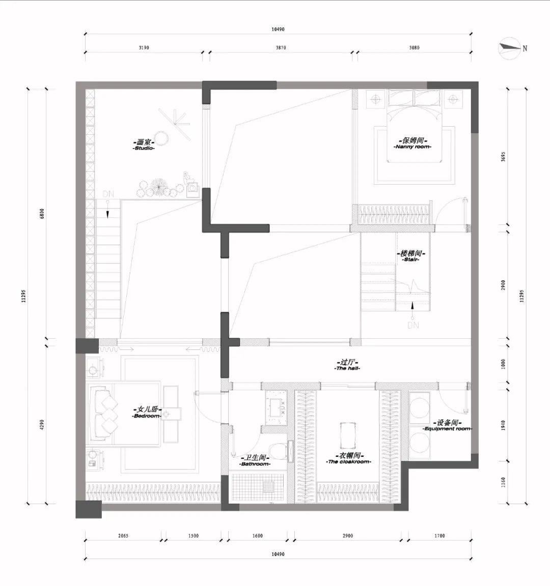
▼- 平面布局图 -
▲一层原始平面
▲一层平面布局图
▲夹层平面布局图
▲负一层原始平面图
▲ 负一层平面布局图
———————
PROJECT INTRODUCTION:
项目名称/ Name | 龙湖·原著-悄然
项目类型/ Type | 私宅·底跃
项目位置/Location | 中国·西安
项目面积/Area | 280 ㎡
完工时间/ Time | 2020.10
主持设计师 /Design | 张语炜
项目摄影 / Shoot | 见筑空间摄影-任东
全案品牌 / 意大利 IMOLA 陶瓷、Moroso 家具等
- ABOUT DESIGNN-
全案设计- 张语炜
其他作品相关链接:
- 筑客首发 | 张语炜 / 华夏城投 让办公空间有机“自适应”
- 张语炜新作 | 生活点滴温暖,内心五彩斑斓!
个人简介:
2001-2005 年 西安美术学院
2014-2018 年 进修于米兰理工大学 人居环境硕士研习营
2018-2019 年进修于清华大学美术学院空间环境艺术设计高级研修班
获得荣誉:
2006 年西安大明宫建材家具网十大优秀设计师
2006 年中国建筑装饰协会注册高级设计师
2010 年西安设计师俱乐部会员
2012 年行业客户满意率最高十大设计师
2015 年荣获筑巢家装类优秀设计作品奖
2017 年荣获筑巢奖公共空间设计金奖
2019 年荣获金堂奖中国室内设计年度评选休闲娱乐空间设计优秀作品奖
2020 年荣获华鼎奖“2019-2020 年度中国建筑装饰行业最具影响力设计师(别墅豪宅空间类)
关注筑客西安
合作联系
投稿
对话框回复“投稿”
咨询&找设计师
对话框回复“咨询”
客服
消息
收藏
下载
最近








































