查看完整案例


收藏

下载
文 | 薄小飞
栏目类型 | 实景案例 / 商业空间
采访地点 | 曲江大宅会所
本案,550平方米
位于朝阳门外益田假日广场商住两用的综合体中
将三套分别一百多平方米的空间打通合并
空间业态承载-医美
这是介于美容院和医院之间的业态
对于空间的设备布置
功能布局
顾客感触
设计师希望能够很好的把握空间的“暗示度”
于是
“放弃”实际空间
给空间赋予共鸣的的故事性
去装饰性的设计
用更多的设计线条串联空间层次
延展代入空间的动线秩序
————————
- TO MEET
-
Beautifue self
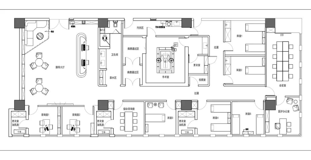
- ▼ 平面布置图 -
- COMPLETENESS -
设计师余力:“甲方希望能够把空间的层高加高,原始的层高条件很差,几乎2米3左右,但因为处于商住综合体中,没有太多的方式去将实际的层高拉高,还要解决很多结构梁,于是,通过镜面不锈钢的虚拟空间设计,去实现空间的设计呈现”。
这是一个升级美丽的功能空间,
很多人都希望在这里补缺自己形象上或多或少的不完美,
设计师在前厅空间里设计了很多半圆的不锈钢装置,
通过镜面不锈钢的倒影效果,
呈现“整圆”视觉,
寄予每个人通过专业的“美丽升级”,
从半圆到圆满。
前台以独特曲线截面为设计灵感延展,
原创的设计通过塑膜倒模后再打磨,
塑造独特的存在,
寓意每个从这里走出去的顾客,
都拥有自己最独特的收获。
- FINE WORK -
本案的设计中墙面做了很多的设计变化,
复杂的工艺对标暗示医美的精工,
空间运用了大量的线性灯与镜面呼应,
自然色的光带来空间的肃静感,
也让空间有了灯光矩阵的层次感,
洽谈区的墙面不同造型的线性灯排列,
希望激起空间“涟漪”,
自带灯光的柜子和置物架发挥了装饰和展示医美产品的功能。
- TRUST -
医美区别于美容院,
更趋近于不同项目类型的专科医院,
设计师希望空间时尚中能够足够的体现“冷静”专业,
让步入空间的“患者”都能够获取专业信赖。
所以设计师在前厅的进入空间夹角切出一块区域,
加入木纹的元素,线性灯几何折射,
希望空间产生变化,
让咨询洽谈时能够缓解紧张,舒缓情绪。
- ENTER INTO -
原始空间走廊有非常多的结构梁,
设计师将空间劣势扭转,
通过大量的线性灯和设计线条,
“隐”去结构梁,
墙面的设计工艺再次暗示医美的精工技术,
原本非常狭长的走廊成为了空间的亮点,
低调的科技感中引导空间动线,
去邂逅最美的自己。
这是更趋向于医院的性质空间,
所以医生办公室简洁去杂,
借助隐藏空间的梁顺势成就了空间的顶面层次。
手术室
手术室是本案设计和专业医疗设备间的一次合作
设计师余力:
“ 本案的设计更是拓展自己更多认知的过程,医疗空间的标准化、专业化要求、医院的新风体系要求、手术室、除菌室都是有着医疗标准要求,并且专业监管部门的审核,尤其是手术室的无影灯、设备布置都是另一个专业领域。”
这是设计的另样融合,
亦是领域认知的一次拓展。
培训室
- MEWLY BORN -
医美的前沿技术源自韩国和欧美,
所以新技术不断学习,
专业技术的不断交流是必须,
设计师规划出可以用作会议室的培训室,
曲线的柔性灯带是隐藏了原始空间里的梁,
自然产生了顶面的曲面层次。
本案是空间的转换和延展,
设计师将原本最大的空间劣势-梁&层高,
转换成了更多设计思路的启发点,
设计师遇见了新的设计业态中的专业需求,
将许多“虚拟”空间扎实的根植于真实触觉,
将本案的品牌和性质深层次“暗示”。
预见自己多美丽,
顿觉如梦如幻。
————————
PROJECT INTRODUCTION:
项目名称 / Name |
悦轻灵医学美容
项目类型 / Type | 医美·商业空间
项目位置 / Location | 中国·西安
项目面积 / Area | 550 ㎡
完工时间 / Time | 2020. 11
设计单位 / Unit | 力创设计
主持设计师 / Design | 余力
设计团队 / Soft outfit | 张敏、袁野
摄影 / Shoot | 见筑空间:任东
ABOUT DESIGNER
|| 主创设计师:余力 ||
-力创设计工作室-
|| 设计团队:张敏、袁野 ||
- 案例 | Case -
花千树别墅区独栋、雁鸣墅语独栋、绿地世纪城、海珀香庭、兰亭坊、 蔷薇溪谷、融侨城、丹轩梓园、唐延九珺鸿基紫韵、天鹅堡、御宾府、湖城大境 、高科朗山 、
莱安逸辉、龙湖源著、华著中城、紫汀苑、万达天樾、海德堡、蓝光-公园华府、曲池东岸、绿地城、中海悦墅、陕建翠园锦绣 ;
- 理念 | Idea-
设计理念:
设计源于生活,取之于生活
设计心语:从“物的堆积”中解放出来,在各种物体之间寻求统一整体之美
-资质| Qualification-
国家注册设计师,中国建筑装饰协会会员
力创设计工作室 创始人/创意总监
-荣誉 | Award-
2006年度荣获陕西十佳优秀设计师
2007年度西安楼市杂志推荐优秀设计师
2008年度“西安室内装饰设计优秀作品评选活动”中获得铜奖
2009年度入选陕西“风尚设计师”
2010年度亚太室内设计双年大奖赛优秀作品奖
2011年1月西安市家庭装饰协会评为“2010年年度西安市家庭装饰行业优秀设计师”
2012年度环保设计大赛中荣获一等奖,2012年度个人作品多次刊登于“西安房周刊”家装版块,2012年度亚太酒店设计大赛荣获亚太室内设计十大风云人物奖
2013年度在“美涂士漆杯”全国室内环保设计精英赛中荣获入围30强奖,
2013年度获筑巢奖优秀作品奖
2014年度中国室内设计居然杯室内设计优秀奖
2014年度罗马利奥环保设计大赛西安十大设计作品奖
2015年度荣获亚太室内设计双年大奖赛优秀作品奖,2015年度获筑巢奖优秀作品奖,
2016年度中国室内设计周设计优秀奖 2016年度成立力创设计工作室
2017年度中国设计杰出青年奖
2017年度荣获第四届“锋尚杯”新中式设计大赛最佳方案设计奖
2018年度入选陕西省室内装饰协会第六届理事会常务理事
2018年度个人作品在第二届西安建筑装饰设计奖荣获别墅空间优秀奖
2019年度个人作品获得“Idea-Tops艾特提名奖”
2020年获得金堂奖陕西地区优秀住宅公寓空间设计奖
关注筑客西安
合作联系
投稿
对话框回复“投稿”
咨询&找设计师
对话框回复“咨询“
客服
消息
收藏
下载
最近





















