查看完整案例


收藏

下载
文 | 小伍
栏目类型 | 实景案例/老宅改造
采访地点 | 筑客网
·
这是
一个老宅改造的项目
十年里角角落落的熟悉,却在改造后惊叹它还能这样!
顶跃变成三层
,170㎡扩建到330
㎡
,
改变的不光是房屋结构和空间,亦是一家人生活的模样!
从家访者,到顾问,到设计师,
朱伟用心诠释了一个设计工作者的价值与意义!
十年的家 /
Ten years of home
原项目视频
▽
·
情感的归宿
生活了十年的家,从新婚的两人到如今的四口,
这里承载了太多情感,却也逐渐容纳不了太多需求。
原本计划换新的房子,可终究割舍不下多年邻里和熟稔的圈子。
频繁“家访的顾问”
Frequent "home visiting consultants"
·
去倾听、去观察、去设想
本案设计师朱伟接手这个案子时,
业主便是在买房与改造这两个选项中犹豫不决。
而他,只是定时的去业主家里喝茶聊天、观察思考。
女主人大学传媒系教师,男主人经营公司,
夫妻俩喜欢看书且注重孩子的教育与兴趣培养,
一对可爱的姐妹花正在学习喜欢的钢琴且活泼好动,
家里并不小但却拥挤各自干扰,
重视陪伴却没有一家人温馨相处的场域。
几个月的“家访”与“顾问”,
呈现在图纸上时,业主惊艳了!
不可思议的改造 /
Incredible transformation
原一层平面
▽
原:
①
大大的长条餐让客餐厅略显拥挤,对坐宽宽的距离家人疏离又客气。
②
放在角落的钢琴,演奏却也打扰老人观影的享受。
③
老式卫生间布局让这对姐妹花晨起洗漱时光十分不美好。
④
洗衣阳台的介入,让两姐妹的卧室狭小逼仄。
⑤
老旧狭窄的木质楼梯,跑起来咯吱作响。
改造后一层平面
▽
改:
①
舍弃餐厅,将其功能纳入中西厨内的导台,温馨又聚气。
②
让钢琴成为客厅主角,陪伴与欣赏调节客厅氛围。
③
双面盆卫生间布局有效解决洗漱问题。
④
重新规划洗衣阳台区域,放大卧室空间。
⑤
加宽楼梯踏步,改用石材,高级又安全。
改造后一层实景
▽
·
围合的“
阅读室
”
疏朗的挑空下这里是安详的“阅读室”,
可随意摆放的沙发位和信手拈来的书籍,
一人的独处或全家的聚集,
光影做客或是点灯初上,
这里都弥漫着智慧与和谐的氛围。
·
聚焦的“
演奏厅
”
大胆割舍餐厅区域放大家庭互动空间,
做减法后的惊喜改变源自于这个独一的客厅。
孩子们的每一次演奏都有观众欣赏与聆听,
视觉的焦点与温情的陪伴,
这里是爱滋生与升温的地方。
·
无限可能的“
欢乐地
”
优化结构后将餐厅纳入中西厨功能区内,
下沉式排烟集成灶全然保障此空间的舒爽,
导台式的餐桌畅想塑造生活无限可能。
煮咖啡烘培甜点的等候,
伴着暖暖的阳光,甜蜜在发酵。
·
两小无猜的“
秘密园
”
两个小姐妹的卧室私密空间,
做未来预设性设计规划,可同住亦可独居。
现今的上下铺是姐妹情谊的介质,
没有视线阻隔的书架与安然的小飘窗,
是亲密无间畅想未来的秘密花园。
从170㎡增至330㎡
From 170 square meters to 330 square meters
原二层平面
▽
原:
①卧室正对着卫生间,开窗后的浑浊空气不堪忍受
。
②
衣帽间过道面积浪费,书房逼仄,满足不了两人同时共用。
③
老式卫生间布局不合理,无法共同使用。
④
简易阳光房,隔热不好,娱乐设施单一,玩耍时间受限。
⑤露台面积大量浪费。
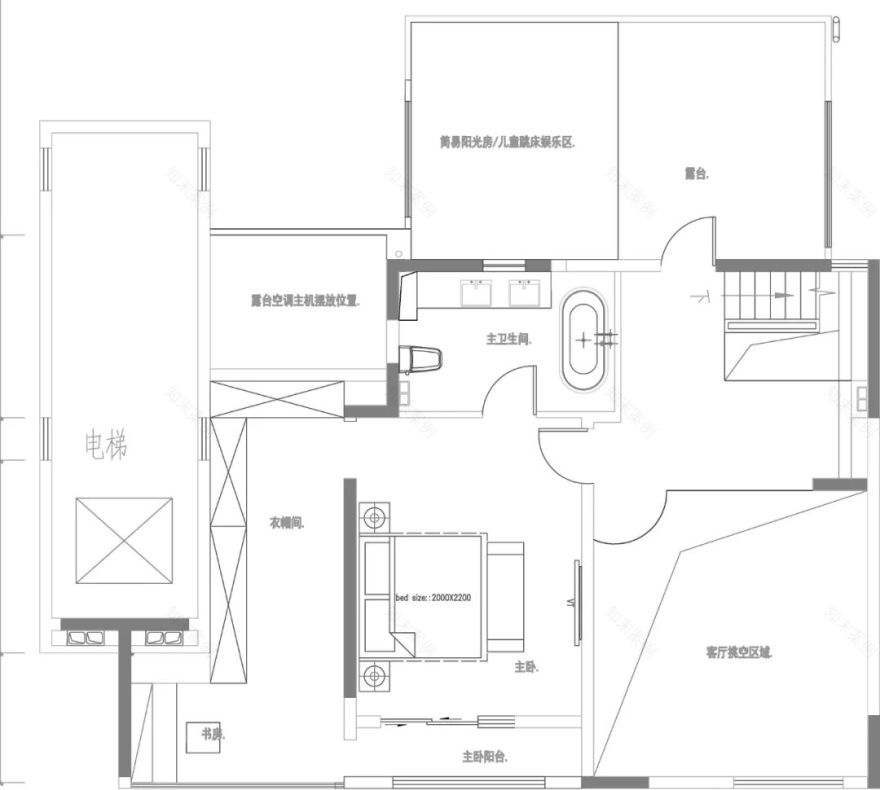
改造后二层平面
▽
改
:
①将原本空调主机阳台搭建,扩充出卫生间,实现干湿分离,改善卫生间正对卧室的尴尬。②舍弃衣帽间里的书房,规划成阳光沐浴房。③将简易儿童娱乐房改造成洗衣房和书房以及生活休闲阳台。④将原本卫生间移出主卧,扩大卧室面积,增设步入式衣帽间。
改造后二层实景
▽
·
纽带空间的小心思
用石材改善原本咯吱作响的木质老楼梯,
将25公分的踏面加宽至27公分更安全美观。
利用结构做出储物柜体,
让角角落落随手都有可翻阅的书籍。
玻璃砖影影绰绰的脚步,
妙趣横生与一楼形成视觉关联与互动。
·
轻纱曼舞的浪漫
改造后的主卧功能舒适动线合理,
让阳光自然进入室内明媚整个四季,
微风轻拂纱幔放慢时光的脚步,
情绪舒缓于一瞬间,
关起门这一方天地任由思绪飞扬。
·
日光之恋的安然
舍弃衣帽间里的书房,规划成阳光沐浴房。
宽边百叶窗的下调倾斜角度旋转变换,
窗外的繁华大千与肆意的阳光洒落,
封闭的柜体藏着有趣的书籍,
安静的力量与喧嚣在对抗,
泡澡成为另一种隐私又愉悦的享受。
·
镜子里的互动
将原本空调主机阳台搭建,扩充出卫生间,
实现干湿分离,改善卫生间正对卧室的尴尬。
双面盆背对背的设计,
让洗漱时光多了镜里对视的灵犀,
情感的仪式感邂逅满满幸福。
·
等候间歇的序曲
将简易儿童娱乐房改造成洗衣房和书房以及生活休闲阳台,
集合一家人的洗衣需求,特设双洗衣机和烘干机,
增设水吧台与净水设备,
便利洗衣等候时间的茶歇及阳台花草的打理。
家务时光的间隙,亦有小调作伴。
增建三层 趣味无穷
Add three more floors for fun
三层平面
▽
建:
①利用斜屋顶,错位搭建出夹层,增设影音室
。
②
增加极大的储物空间。
增建三层实景
▽
·
屋顶的“水帘洞”
利用斜屋顶,错位搭建出夹层,
增设影音室和孩子娱乐区。
这里便成为一家人的“宝地”,
顶级音响投影设备,
让女业主学生的视频作业有了更好的展示舞台,
柔软的地毯绵软的沙发,
一家人观影的美好画面定格。
新家,便是全新的样子与欢喜的生活!
ABOUT PROJECT
项目名称
| MY小姐的宅
项目地点
| 陕西省西安市
改造前面积
| 170㎡
改造后面积
| 330㎡
主创设计
|
朱伟
设计团队
| 王泽新,王婷,薛康
完工时间
| 2020年10月
项目摄影
| 张晓明
ABOUT DESIGNER
设计师
朱伟
关注筑客西安
合作联系
投稿
对话框回复“投稿”
咨询&找设计师
对话框回复“咨询”
客服
消息
收藏
下载
最近








































