查看完整案例


收藏

下载
HOME PARTY
英译-家庭派对
欧美甚为流行的轰趴文化
一种鲜活的娱乐文化
X-BOX /KTV/台球/桌游/
创意立意 |
Creative conception :
设计创意源自游戏
《纪念碑谷》
,文艺亦清新,撞色的毫无违和感,一切都恰到好处,放松参与,放肆想象,治愈的色系和空间构成,也成为本案的色彩元素。
本案
文化内核源头自埃舍尔的《上升与下降》《凸与凹》《画廊》
演变,再到
马格里特的《戴黑帽的男人》
超现实梦幻主义,在梦境中寻自己的想要答案,
轰趴的意义不仅是聚,
而是给空间里的人放松情绪&情感交流,
每一个都能找到自己的一方空间成为整个轰趴的主角,
释放兴趣,共性和个性融合,
穿梭其中,才是热气腾腾的人生
。
马卡龙的色系为空间增添了文艺韵律,
设计师将空间的功能承载做了关系安排,
层次分明,让热闹的轰趴主题空间闹中有序,
生日会、同学会、闺蜜趴,
可盐可甜,可A可萌。
设计师顾维文&柳文婷:
看似色彩斑斓的轰趴空间,其实就是粉、蓝、黄等色彩的渐变色在空间里变幻;我们希望这里可以激活每个进入空间里的人无穷尽的想象点,可以暂时远离工作中的繁琐和高压。
廊间设计梦幻科技,
这是一个“穿越之门”,与灯光互动,
走过每一个门廊,
寻找最轻松的 “踏 频”。
模拟空间里的人物状态,
设计规划空间里人物的互动情景,
设计师将尖锐的棱角设计都隐藏,
都是圆润柔和的线条和小清新的色彩,
散开在这个空间里的渲染到每一个人,
K一首动人心弦,看一部烧脑美剧,浪一把大屏王者荣耀。
源于西欧的台球运动是高雅的室内运动,
设计师们将轰趴FOX100party中的台球间,
都做了主题延伸设计,
空间动线上与周边都发生关系。
每个女孩心中都住着一位公主,
在FOX100 party里,你可以成为自己的公主,
设计师将豆粉色作为空间的主色调,
梦幻无敌的粉色纱幔缠绕着粉色的台球案,
城堡的元素在空间里散落开,
在笑颜欢语中邂逅所有的温情和善意。
延续空间的设计立意创意点,
几何的设计元素在空间里显现融合,
工业风的吊顶用颜色划分不同的主题,
几何的网状金属吊顶造型与灯点互映。
烟灰蓝高级感满满,
台球案子也随着变幻蓝色,
空间也有了“性别”特征。
没有高饱和度的色彩,
看色斑斓的空间,
设计师都遵循三色原则,
这里是超酷的游戏主题趴房,
在梦幻中体验极速。
桌游趴房,
色彩将空间都进行了明显的划分,
于是
空间尽量的打开,
不做过多的隔断设计,
而是
通过色彩视觉去引导你的兴趣,
让置身其中的人自然打开,
从跃跃欲试到爱不释手。
波点邂逅辛普森一家
空间便自带丰富的故事。
邂逅一场五彩斑斓,
让每一次的狂欢或相聚,
都有独特的色彩记忆,
流动和浮现年华满满。
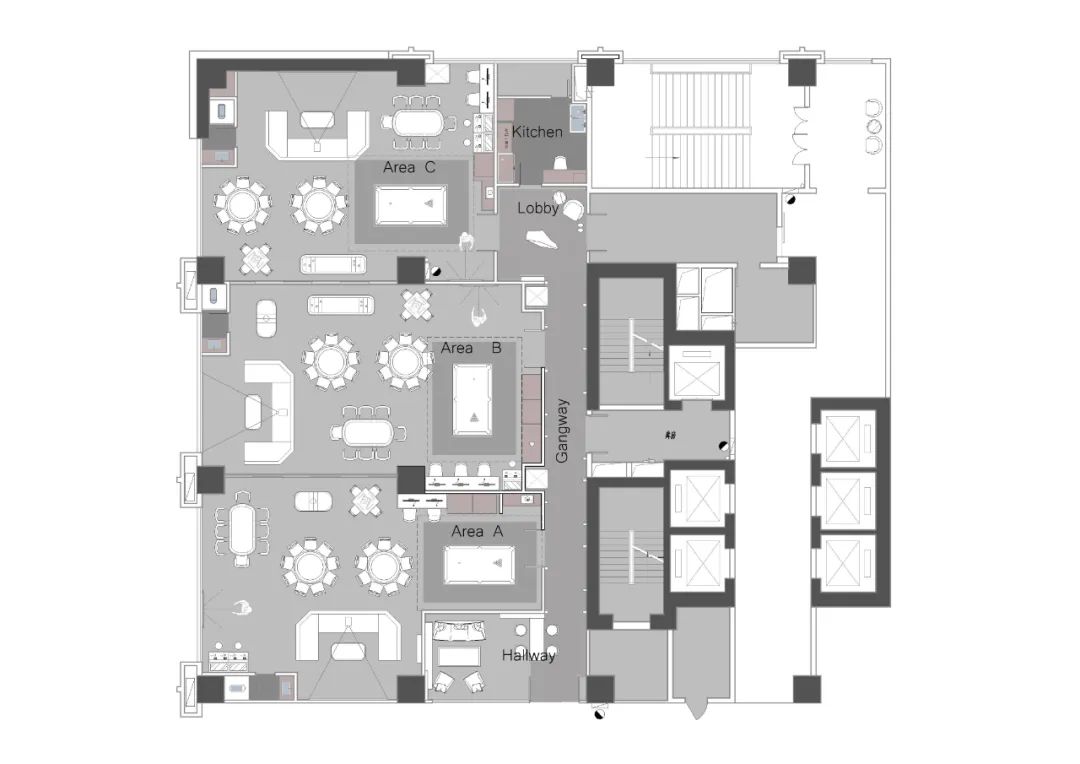
▼平面布置图 | Floor plan
项目名称
/ Name | FOX 100 party
项目类型
/ Type | 商业空间
项目位置
/ Location | 中国·西安·大话南门
项目面积
/ Area | 800㎡
完工时间
/ Time | 2020.7
主创设计师 / Design | 顾维文
软装设计/ Soft outfit | 柳文婷
写在最后:
纪念碑谷讲述的是小公主艾达因为好奇而盗走了王国的神圣几何,这一看似无害的行为却使得整个王国的人全部灭亡。明白了自己错误的公主开始了一段归还神圣几何的旅途,请求宽恕和原谅。不过为时已晚,国土中民众的亡灵已经化为乌鸦人,在王国内四处徘徊,被束缚着,无法离开这片土地,最后小公主用自己的行动和努力去挽救这个国家的故事”
这是一个救赎的故事,
朽骨暗夜候多时。
而今前人的辉煌,
只化为纪念碑座。
成也是它,
败也是它。
但纪念碑将于此山谷中永垂不朽。
关于设计师
大彩·大宅设计中心
GWT设计团队
主案设计师:顾维文简介【男】从业14年
威尼斯美术院设计系研修生
清华大学美术学院研修生
陕西师范大学环艺系本科毕业
国家注册高级设计师职称
CIDA高级室内设计师职称
软装设计师:柳文婷简介【女】从业14年
中国建筑装饰协会会员
国家注册高级软配装饰设计师
国际空间设计大奖“Idea-Tops艾特奖”西安赛区评委会运营理事
新加坡室内设计协会西北地区运营理事
关注筑客西安
合作联系
投稿
对话框回复“投稿”
咨询&找设计师
对话框回复“咨询”
客服
消息
收藏
下载
最近


































