查看完整案例


收藏

下载
装庭宇,
细香明艳尽天与,
办公,
亦是梦想进行的天地,
这里,
许多屋主的居家生活思路在此衍生着,
摒弃了一切复杂、炫技、花哨、繁冗的装饰铺陈,
目光聚焦在空间本身,
本案
金辉环球中心,
写字楼中的“独自世界”,
任他尘世多喧嚣,
浮云不惊任自在。
半开放式的极简空间,
展现出品味高级,
整面的玻璃材质设计,
将空间划分成了不同的功能区域,
亦让空间的视觉感开阔一体,
设计师解构、重组、打破固有的空间属性。
私密&开放
块区&整体
———— /
初始 · 打开希望
/ ————
HOPE
作为前台接待区域,
无客之余,
此区域也作为办公而用,
停留与流动,
设计师通过不同的使用途径来表达这一概念,
用建筑的空间来表达时间;
灰色渐变的地毯,
和空间的主色调配合,
视觉上前厅开阔豁然,
让等待亦变得安然有序。
———— /
引导 · 空间情绪
/ ————
EMOTION
作为空间里的首个接待区域,
设计师在大面积的灰中做了巧妙的调和,
空间软装的设计亦是费了心思,
用建筑空间来表达时间的当下和时效,
设计师希望,
所有饰物的关系贯穿引导着空间情绪,
白色、灰色、蓝色,
墙面的画饰柔和了空间,
自然成为这部分区域空间的亮点,
成功引导着空间的状态。
黑色线条成为空间的分割线,
“裁切”着空间,
让每个情绪流入到属于TA的气场中,
在这里,
设计师通过探讨关于生活的无限可能性,
来虚拟——实现别人的生活空间,
线条的流畅,
使思维无限延展。
黑白灰是整个设计的主色调,
雅致中冷静,
因为空间的使用者是兼具创意&技术,
需要深度的思考空间,
因此冷静的色调搭配,
步入空间,
极致的细节带来真实的高级感。
集中&专注
屏蔽&交流
———— /
成长 · 遇见良多
/ ————
GROW UP
会议空间&方案汇报空间
双重功能空间的转化提高空间利用率;
极致简约的背后,
是对空间细节的尽善追求,
顶面线灯的设计感,
材料形态的构成,
让这个空间拥有了科技感,
会议承载了头脑风暴,
守住边界,天马行空,
设计需要那一道光。
———— /
悦动 · 完美方案
/ ————
ELANTRA
克制的色彩,
纯净的色彩,
黑色依旧只是勾勒,
大面积的灰色序然有质感,
墙面的壁灯像一个插入空间的几何音符,
悦动着空间的“内心世界”。
作为设计师们的主要工作空间,
被分割成了三个小的功能区域,
并没有实质性的材质或者建筑分割,
这便是设计,
虽然是一贯到底的空间,
置身其中,
却能清楚的了解这是三个功能区,
设计师采用的大面积玻璃材料,
让空间大块整体的呈现,
空间舒适流畅。
———— /
休憩 · 思绪家常
/ ————
REST
休憩&交谈
共生形态的设计,
你的春风得意,
你的奇思妙想,
在这属于工作区域的设计里。
把握住功能流线,
秩序清明,空间高冷,
尽可能的开放,
让各个部门之间高效互动,合理共享。
———— /
徜徉 · 心神物外
/ ————
STROLL
爱生活才能有爱的设计,
空间中的承重柱刚好被巧妙利用,
柱和窗之间,
设计师安放了茶室,
灵动多元,趣味多变,
透过幕墙,目光悠远,
茶鼎熟,
酒卮扬,
晴窗细乳戏分茶,
心神物外徐徐纷。
———— / 温暖 ·
小世界
/ ————
WARMTH
好的空间可以让“思维散步”,
设计师将冷静和遐思都赋予这个空间,
让空间尽量在设计笔触下无限延展,
看似冷,实则暖,
每一个小物件,
都悄悄的在TA的小天地里驰骋,
装着万千小世界,
让许多的惊喜都变得温文尔雅。
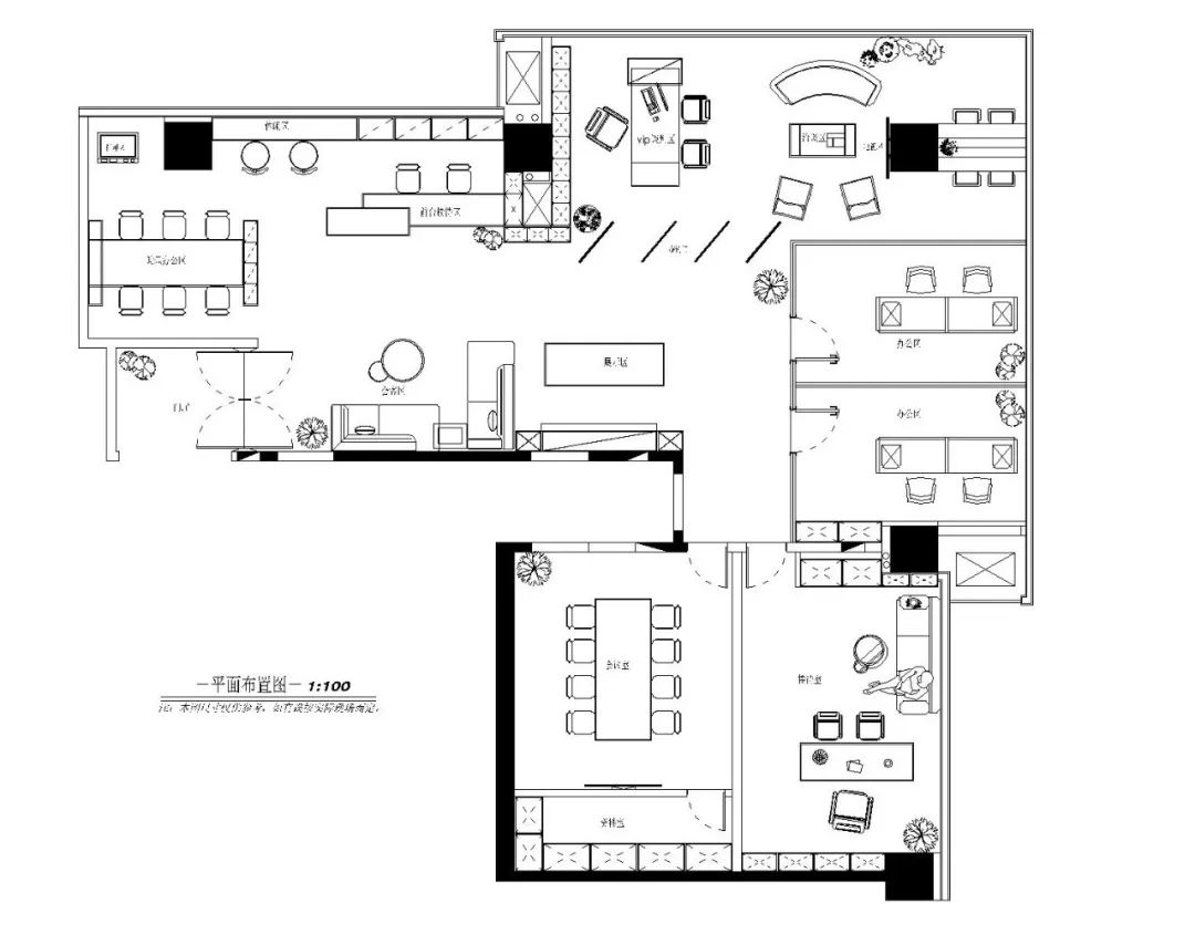
▼平面布置图/Floor plan
项目名称:初始
项目面积:350 ㎡
空间类型:办公空间
主创设计
:孙萌
、韩政辉、王登
软装设计:孙瑞茹 孙瑞浠
设计单位:景宸空间设计有限公司
施工团队:景宸空间设计有限公司
摄影:张炜
本案设计师
关注筑客西安
合作联系
投稿
对话框回复“投稿”
咨询&找设计师
对话框回复“咨询”
客服
消息
收藏
下载
最近



































