查看完整案例


收藏

下载
荣 · 宴
荣宴 · 国宴光
中式月洞作为玄关,
遮挡却更具探索欲,
不设散座与卡座,
五分之二面积做陈设。
六个包间只接受预定,
国宴标准分子料理,
吃的是一份匠心与独特,
享的是一份雅致与尊荣。
收敛 · 中国红
中式月洞作为玄关,
遮挡却更具探索欲,
向内别有洞天之感。
壁龛形成的阵列陈设,
中国红在灯光的晕染下,
透出收敛而包容的气质。
进入荣宴,自身气场收敛,
被环境感染,沉稳又舒适怡然。
雅韵 · 远山望
中厅大面积的陈设展示,
放置茶台增添空间韵味。
中式写意山水元素运用,
水景平添情趣,
鱼儿畅游水声潺潺,
与茶文化遥相呼应,
听觉视觉融着观感,
静美又致远。
光晕 · 悠悠然
大厅半私密茶包,
以灯光打造轮廓感,
不见主灯、漫光源营造氛围感,
陈设展品因光加持独具魅力。
人为空间主角,
静坐亦能成画,品茗别有风趣。
空间为人使用,
随光而变,释放且又包容。
剪影 · 能生画
过道空间以光为指引,
写意中式剪影效果彰显。
瓦当元素的运用,
遮挡裸露不可移柱体,
映现古风美学气质。
线条勾勒层次感,
诗意化的意象铺叙,
令空间在光影的映照下,
呈现隽永柔美的幽然感。
穹顶 · 匠心造
最大的包间,
恰逢顶面无功能管道,
打造豪气穹顶,
内嵌木结构屋檐造型,
金箔与原木的碰撞,
恢弘之气自然散发。
每个包间均有独立卫生间,
功能动线十分考验设计功底。
本黑与明黄,
无形中的尊贵与奢华。
远影 · 清灵境
从自然山水中提取意向,
贯穿于空间的情致中,
包间皆具孤帆远影之境。
可拉开的隔断门融汇两包间,
换上长条桌面契合
原本的圆桌底垫,
便形成一个新的功能分区,
大型聚会或商务洽谈都可轻松实现。
孤赏老板魄力,
私人国宴标准
做极品
,
懂取舍之道,
空间极致尽享尊荣与雅致。
△原始平面图
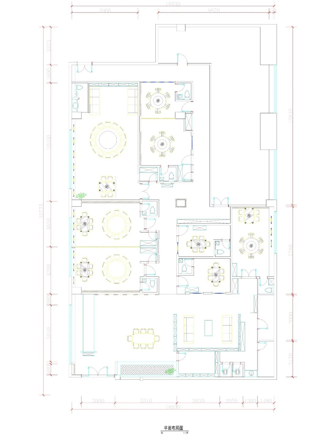
△
平面布局图
项目名称:
荣 宴
项目面积:640平米
项目类型:商业餐饮
项目地点:西安市科技二路丹轩梓园底商
完工时间:2019年10月
主案设计:谢龙
设计公司:
西安零点维度装饰有限公司
摄影师:王展甯
关于设计师
谢龙
陕西柏城建筑设计有限责任公司 设计总监
西安零点维度装饰有限公司 创始人/首席设计师
DL空间美学 总顾问
设计理念:
化繁为简
做实用美学设计
关注筑客西安
合作联系
投稿
对话框回复“
投稿
”
咨询&找设计师
对话框回复“
咨询”
客服
消息
收藏
下载
最近
























