查看完整案例


收藏

下载
家的宁静与欢愉
家,
浮华世界中,
一处属于自己的自由天地。
而我们与这个「自由天地」的关系,
不应该是占有,更多的是共处。
▼入室/Home invasion
以素白为基调的挑空设计,尽显室内空间的优雅大气。
玻璃门上的黑色框线巧妙的将楼梯分为三阶段,增加空间层次感的同时,勾勒出一个现代感十足的时尚空间。
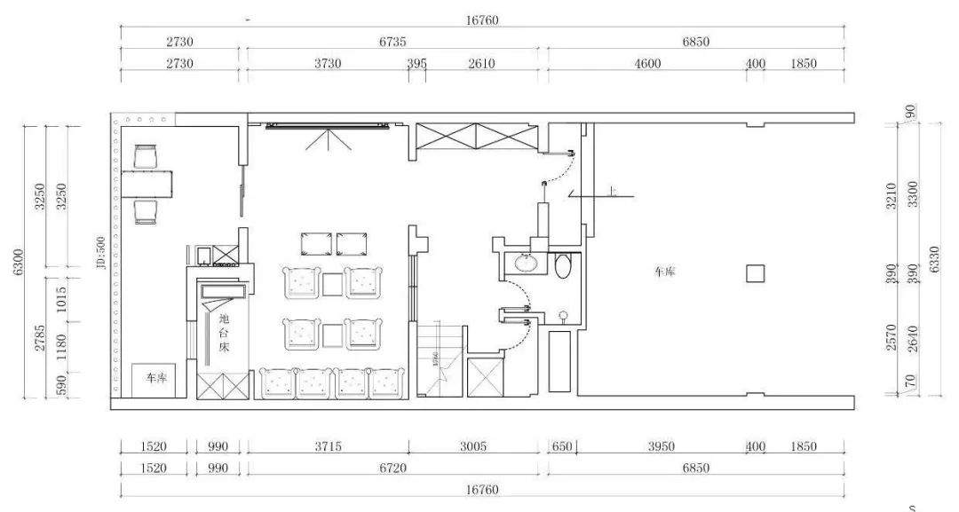
▼负一层/The negative a layer
▼影音室/Av room
影音室一改
传统认知中的封
闭
,增加
落地窗、绿植
等装饰
,并以明媚的姜黄色为点缀
,营造一种自然温馨的氛围,令人倍感舒适。
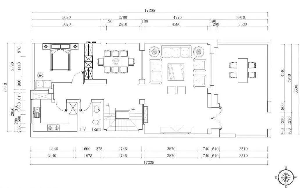
▼一层/A layer of
▼客厅/The sitting room
映于自然的舒适空间,
从来都是远离刻意构筑的审美。
空间在承载生活品质的同时,也安放着参与者对艺术人文的小确幸,生活、自然、人文、品味、气质,这些即是空间的直观表现,也是参与者自身的写照。
客厅与餐厅相连形成大横厅,确保在每个角度都能看到最好的景色。
金属元素与整体素白的格调,搭配皮质沙发显得十分和谐,造型简单的艺术灯成为点缀,尽显优雅雍容的国际大都会风格。
▼餐厅/The restaurant
爱与食物、都是能量的来源,
餐厨空间便是家的温暖所在,
人生百味皆汇聚于此
,
试想,结束繁忙的工作
后,卸下疲惫,与家人围桌而坐,吃饭聊天,轻快欢笑,好像所有的
事情都变得简单且温柔。
▼过道/The corridor
越是简单的东西,
其实越难把控,
需要经过千百次的锤炼,
才
能将简洁的设计拿捏到位,而这些细节处的温柔,恰好最能证明主人对精致生活的追求。
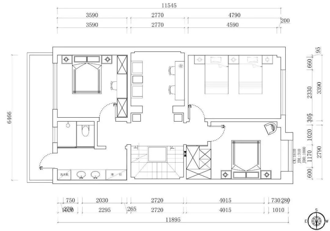
▼二层/On the second floor
▼卧室/toilet
壁画、台灯、床品三者相互呼应,不动声色的让卧室空间形成统一的素雅格调,淡淡水墨在灯光的照射下若隐若现,显得十分静谧、和谐。
▼卫生间/toilet
洗漱区外移,清晨与亲人一同梳妆,阳光透过窗户洒进,或有微风吹动树叶的沙沙声,或许还伴随着小鸟的叽叽喳喳,一切静谧而美好。
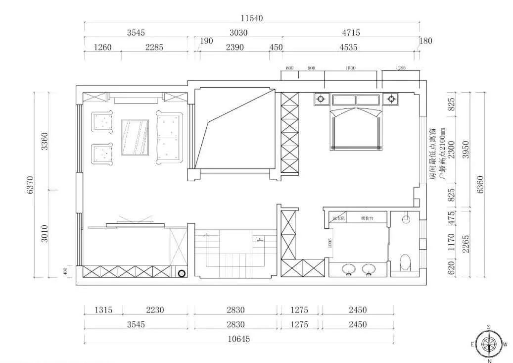
▼三层/Three layers
▼起居室/The living room
简洁明快的色彩,精致的金属元素,与窗外自然景色融于一体,时尚而不浮躁。
沉浸于此,工作、阅读、或一杯咖啡,慢慢享受都市生活的平和与舒适。
▼卫生间/toilet
生活原是一个又一个的细节,
设计师便是利用每个细节,
创造属于业主的温馨与感动。
一个舒适的家,
可以让人享受城市之外,
只属于家的宁静与欢愉。
项目坐标:大华曲江公园世家
项目户型:别墅
项目面积:350m²
主案设计:段峰
设计主材:雅士白石材,金镶玉石材,白橡实木木作,大理石瓷砖,乳胶漆,木地板
关于设计师
段峰
从业16年
旗盛装饰 · 首席设计师
求学经历:
西安美术学院
清华大学室内设计研修班
意大利米兰理工大学设计学院
设计理念:
在室内设计过程中通过对空间的局部改造,以希让布局更具合理性,令空间更加舒适、美观、方便、实用,在不断的创新过程中将个性与艺术性完美结合,赋予空间新的生命。
擅长风格:
现代简约,新中式,简欧等
擅长领域:
家装:复式别墅、大平层等;
工装:会所及办公场所等。
获得荣誉:
中国室内装饰协会注册设计师
中国建筑学会室内设计分会会员
2002年毕业于西安美术学院室内设计专业
2005年中国西安“阿姆瑞特家具”设计大赛三等奖
2010年陕西省风尚设计大赛二等奖
2013年中国第三届“筑巢奖”金奖
2014年中国第四届“筑巢奖”优秀奖
2015年客莱德最佳空间设计奖
2015年客莱德最佳空间设计奖
2016年“京瓷杯”新中式设计大赛优秀奖
2017年中国国际空间环境艺术设计大赛优秀奖
2018年荣获陕西“百名优秀设计师”称号
代表作品:
金地·芙蓉世家、金地·曲江尚林苑、曲江公馆、锦绣唐朝、中海·铂宫、紫薇·永和坊、高山流水、紫薇山庄、湖城大境、逸翠园等
关注筑客西安
合作联系
投稿
对话框回复“投稿”
咨询&找设计师
对话框回复“咨询”
客服
消息
收藏
下载
最近


























