查看完整案例


收藏

下载
房子是物质的,而生活必须是诗意的。
以自由谐和的形式,探索生活中的意趣。
利用设计将物象变为一种自成境界,形成一种距离,
从而让空间丰实而空灵,精神自得而自由。
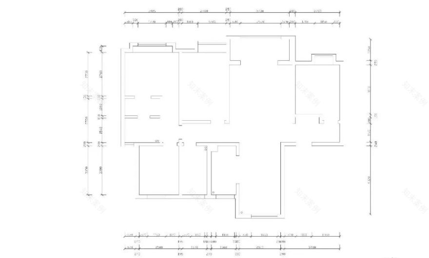
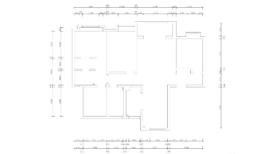
▼原始平面图
业主需求:
1、三口之家,女主人想拥有大的餐桌及一排高柜。
2、男孩上初中,一米八的大个子,卧室需要完备的学习空间。
3、需要大量收纳储物空间,以及休闲娱乐空间。
4、女主人养了很多多肉,需要合理摆放。
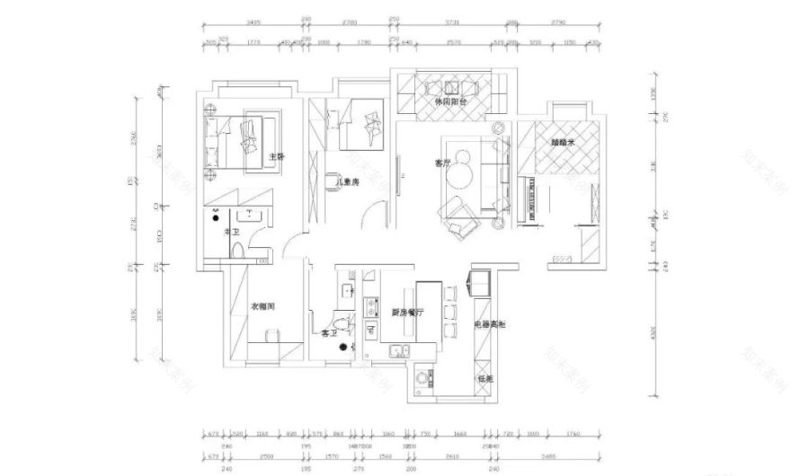
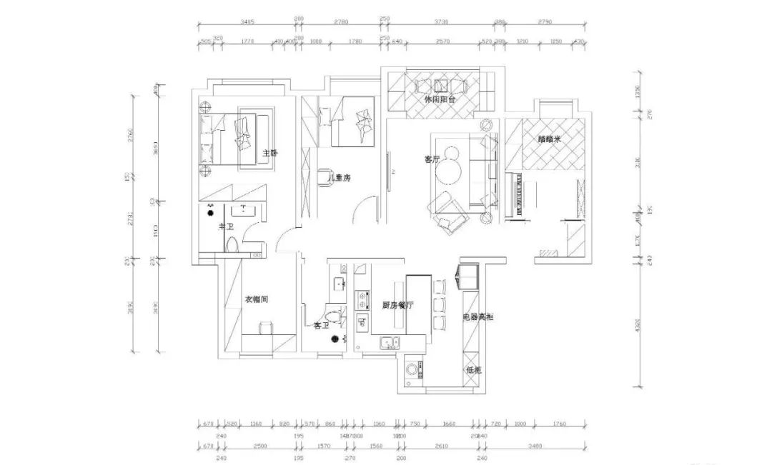
▼平面布置图
改造点:
1、扩大主卧室空间,保留衣柜,满足女主人日常需求。
2、主卫生间功能位置进行调整,大洗手台,便于两人同时使用。
3、餐厅和厨房打通,满足大餐桌及整排高柜需求,同时隐藏洗衣机与热水器的摆放位置。
▼客厅
空间并未掺杂任何杂质,简单的黑白灰色调,在自然光线的映射下,放大了空间感。
只需陈放喜欢的绿植,或所热爱的事物,任它们在纯粹的空间中随时光缓缓流淌,让空间中的人也不禁开始品味艺术,享受片刻自由。
▼阳台
时光静美、安暖自得、简单精致。
家应该是这样,生活也应该是这样。
有限的空间,开辟无限可能,品茶、下棋、阅书、静心。
在这方天地,只需享受生活,静静的做自己便好。
▼过道
利用原始布局,令空间节奏轻快昂扬。
客、餐厅串联,走廊直入,射灯与立面灯光结合,通透明亮,让空间视野最大化呈现。
▼厨房/餐厅
少即是多是对生活方式的逆向推理,以简单的材料凸显细节,简单的造型完成需求。
功能的收纳,视觉上的色彩,空间上的开放度,精神上的亲密感,都达到一种极致。
迎着日光,与爱人一同烹饪出一道道暖心料理,让烟火味溢满整个空间。
以低调细腻木色,中和空间的温度,干净的白色纱帘,明亮的日光。
通通将平凡的美感投射于简朴干净的环境中,让人倍感清爽自由。
▼榻榻米
空间的铺叙看似平淡素雅,却切实将思考的切面还原到了居住。
将生活的所有降回本质,由此映射出居住者日常的充实和情感的丰富。
▼卧室
主卧选用了大面积的木饰作为壁柜,温暖的色调与柔和的灰调相得益彰,无需任何装饰,自然光,一双人,便是空间的魂。
▼卫生间
通透、干净的空间,令人向往,但过于清冷会产生一种压抑感,故而设计师巧妙添加温暖的木质元素,提升整个空间的温度。
项目面积:
137m²
项目类型:
住宅空间
主案设计:
刘红旺
项目地点:
自然界,云栖
完工时间:
2019.12
公司名称:
大明宫设计中心
摄影制作:
任东
主材配合:
品牌瓷砖、企一照明、新艺美固全屋定制、德国朵纳卫浴。
关于设计师
刘红旺
从业15年
陕西名韵世家家居有限公司
擅长风格:
中式/现代/轻奢/欧式/后现代/港式
求学经历:
2000年—2004年就读于吉林艺术学院现代传媒学院
2013毕业于广州美术学院高级进修班暑期班
2016—2019三年间游学香港、新加坡、日本等多地
职位职称:
中级住宅室内设计师;
2005至2007北京元洲装饰有限责任公司 高级设计师;
2008到2012城市人家装饰公司 设计总监;
2013到2015陕西艺时流装饰设计工程有限公司 设计总监;
代表作品:
样板间:
融尚第九区售楼部、样板间。
腾业国王镇样板间。
住宅空间(别墅类):
金地湖城大境、绿地城、高新紫园、紫薇永和坊等
住宅空间(大宅类):
曲江紫汀苑、金辉悦府、丹轩梓园、中国铁建梧桐苑等
商业空间:
中建集团西北办公室、田子品牌服装店、天宇医学整形医院,天安财险陕西分公司办公室,等各风格作品100余套作品
关注筑客西安
合作联系
投稿
对话框回复“
投稿
”
咨询&找设计师
对话框回复“
咨询”
客服
消息
收藏
下载
最近























