查看完整案例


收藏

下载
十年间,
《筑巢奖》有近6万人次
7万件作品参与了大赛。
第九届筑巢奖全球万余件作品参赛,
全球的万余件作品中,
西安500余件作品参赛,
其中ANG设计师李强《怀真抱素》斩获——大户型类·金奖。
对于住宅的评审来说
是最具挑战的
因为不仅仅要从中看到设计的立意和落地
更要考虑到空间使用者的境况和需求
才能综合的考评空间的设计落地是否再多方位的独立。
俗语说:
少年有树上的家,
少女有娃娃的家,
而热爱运动的业主,
设计师给予有“兴趣”的家。
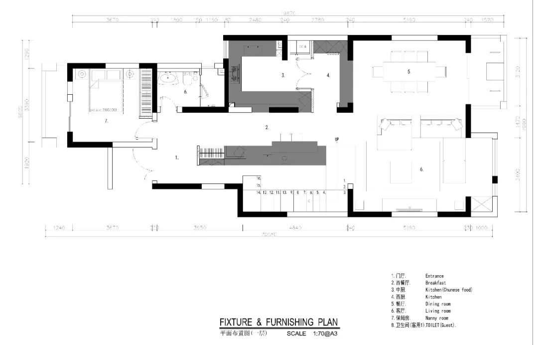
▲
一层原始图
▲
一层平面布局图
好的空间设计,
可以预言空间里人物的相处情境,
比如:
本案是一家四口
爸爸在客厅休憩或者随意阅读,
孩子们在餐厅等着妈妈的美食出锅,
和爸爸聊着学校的趣事,
通过餐台看着正在烹饪的妈妈,
妈妈完成一个菜,
从导台递给孩子们时,
顺便加入父女俩的话题俏皮两句。
本案的业主热衷于运动,
马拉松、自行车、摩托车、登山、户外,
本案的设计师亦热衷于这些,
所以空间的立意就更加感同身受,
可以站在空间的许多角度去适应,
让空间的生活功能和趣味相融。
就算空间足够大,
也还是要安置合适的“角色”给予,
追根到底,
所谓住宅,
或许不应该太过洗练,
不应太纯净,
适当的保留“暧昧空间”,
兴趣墙还有许多留白,
是享有的自由。
一层的厨房导台,
使用不锈钢管作为楼梯扶手的运用,
连接每一层的中央空间,
将楼梯的侧面都延展成为置物架,
因为兴趣墙和楼梯间的宽度,
因此扶手选用功能满足下,
通透的设计呈现,
让宽度问题解决,
功能问题增强,
设计感也凸显。
▲
一层客用卫生间细部设计
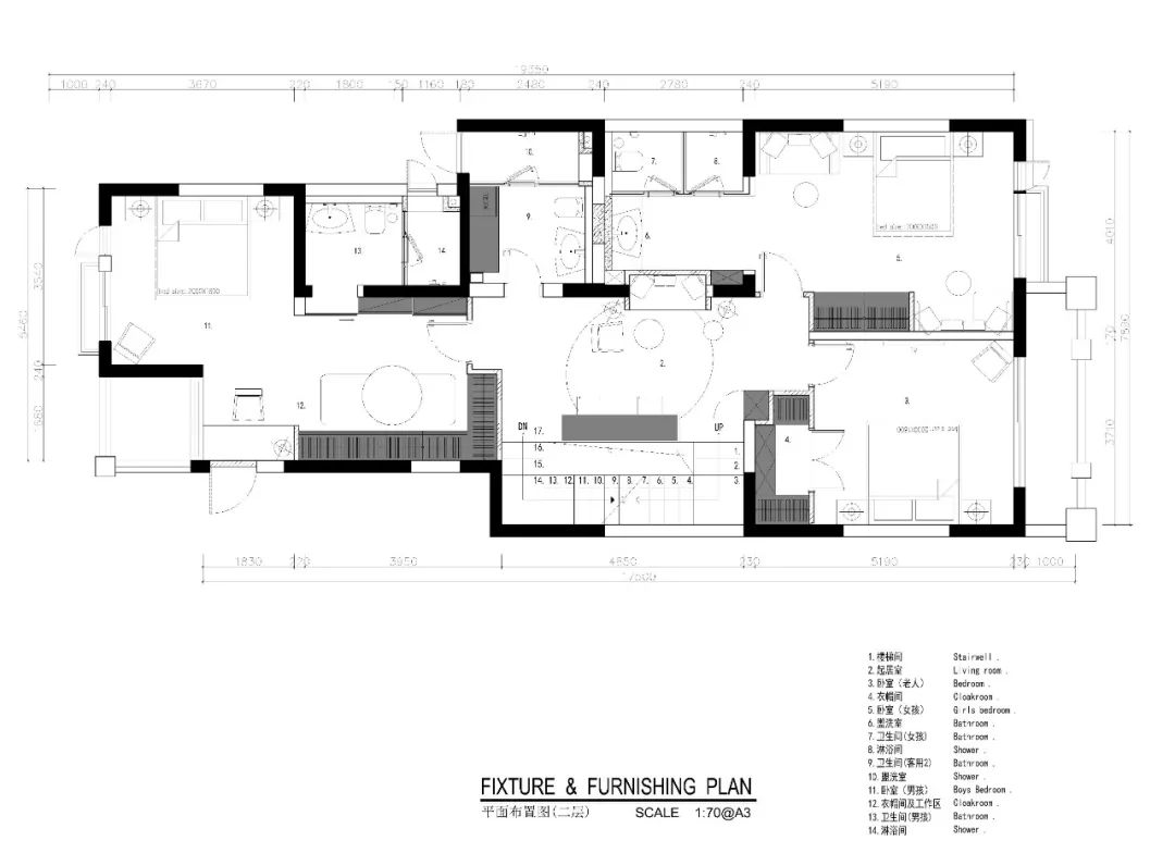
▲
二层原始图
▲
二层平面布局图
悠闲的读书时,
思绪飞转的学习时,
独立的学习空间是必须的,
设计师将孩子们的学习空间安排在这里,
用楼梯链接,
独立又关联其它空间。
二层客用卫生间
客用卫生间里兼容了洗衣房功能,
多数而言,
客人使用一层客卫的几率更高,
二层的客卫就更多的是用作洗衣房功能间。
▲
二层卫浴间
细部设计
▲
三层原始平面
▲
三层平面布局图
让阳光再温暖一些,
让生活再灿烂一些,
让大自然再近一些,
吊顶的对角叠加,
再重新问一次“居住”这个行为的意义,
设计师李强将更多的阳光、风景、斑驳倒映,
都给予了这个空间,
赋予了美好、健康、生长。
▲
三层主卧细部设计图
三楼茶室空间设计,
沉稳的空间立意是符合主人气质的,
浮躁的心绪都在这个空间被俘虏,
灰色成为整个空间的主色调,
尘心洗尽兴难尽,
世事之浊我可清。
三楼的阳台,
被设计师李强充分的发挥了一下,
木格栅画出了一个独立的空间,
对于热衷运动的业主来说,
放松必不可少,
游泳、按摩、享受和风暖阳。
楼梯间是本案设计的亮点之一,
从一楼到三楼,
楼梯的设计和灯光设计,
设计师都是费了心思,
让原本只是“工具”的空间,
成了家里的一道“装饰”。
▲李强
项目状况:完成
项目年份:2019年
项目面积:400㎡
项目地点:中国·西安
项目类型:住宅
设计公司:ANG Q&X STUDIO
主案设计:
李强
设计团队:徐童
深化设计:ANG深化设计部
照明设计:ANG照明设计部
软装设计:ANG软装设计部
主材设计:德国汉诺
HARO木地板、圣桦林木地板、MODALOFT家具、U+家具、
Vondon户外
、意大利Foscarini、Estiluz、美国Jacuzzi按摩浴缸、瑞士恩仕AXENT卫浴
空间摄影:carrey
关注筑客西安
合作联系
投稿
对话框回复“投稿”
咨询&找设计师
对话框回复“咨询
”
客服
消息
收藏
下载
最近








































