查看完整案例


收藏

下载
我总认为他的世界里有一处“
世外桃源
”,我可以看的到,却拥有不了。
那是独属于他的,一个关于设计的世界。
他喜欢在空间中留一些“空白”,让居住者在日常的生活中慢慢填充,自己去赋予空间自己的印记与特质。
都说门外汉看热闹,对于室内设计而言,亦如此。可能更多的人是凭着自己的审美去“评判”一个空间的色彩或者陈列,亦或稍有写阅历经验的人去“审视”它的结构整体。
但,这一切,都抵不上居住者的切身感受。每一个住宅都是私人订制,它们有独属于一户人的特质。
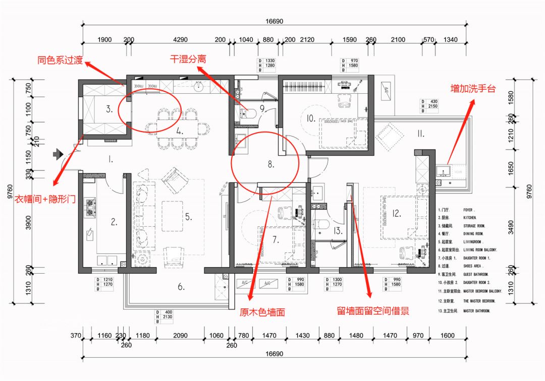
入户同色材质,让空间的每一区域都有相互关联之点。右侧深咖色空间作为衣帽间独立存在,也是设计师根据实际情况“专属定制”。
大多数人在家中的状态都是相对“懒散”的,而设计师为了让居住者在家中也“动起来”,结合实际,为他们“制定”了一点“动态”空间。
一个廊道,三面为门,导致空间在这处异常“窘迫”,而选用原木色系围绕到电视墙,除了让空间在视觉上规整干净,也是弱化了门的存在,让空间看起来更宽阔。
嵌入式洗手台,即增加了对空间的利用率,又减轻卫生间压力。
“小而精”
,以相对较小较精致的冰箱等用于家中,不要让其成为一个“储物”空间,让居住者多“出去”,蔬菜水果,以鲜为上,而不是以“囤”为目的。
空间的成长性,是儿童房应有的“特质”,成长过程中所需面临的都应有所预留。
衣物、玩具、书本等的收纳搭建是最需解决的问题,衣柜+书桌+床头柜,一套完美的方案,是让每一个“节点”都恰到好处。
主卧衣柜仅满足日常,这也便是前文所述的“障碍”所在,业主需要不定期将衣柜衣物与衣帽间衣物进行更换,让他们在家中也会动起来。
卧室与卫生间互相连通,转角便是梳妆台,且为方便使用,淋浴马桶洗手台全都分开,可以在同一时间段满足居住者的需求。
而电视墙右下方这一处,便是意外的“借景”了。通过这样一点“留”,让空间可以彼此“窥得一角”,既有关联又保持各自的独立。
原始平面图
平面布置图
项目名称
丨
舒暖各煦
项目状况丨完成
项目年份丨2019年
项目面积丨150㎡
项目地点丨中国·西安
项目类型丨住宅
设计公司丨ANG Q&X STUDIO
主案设计丨姜理
设计团队丨周静
空间摄影丨carrey
关于设计师
姜理
ANG Q&X STUDIO
主创设计师
设计理念:建筑室内空间设计是建筑的延续,空间是为使用者服务,通过功能整合,艺术化处理,人性人文关怀的提炼,最终建造出功能全、舒适、悦目的空间环境!
关注筑客西安
合作联系
投稿
对话框回复“
投稿
”
咨询&找设计师
对话框回复“
咨询”
客服
消息
收藏
下载
最近



















