查看完整案例


收藏

下载
■
业主家的“大佬”
一个222㎡的家装项目。
主人是一对年轻的夫妻以及他们的小儿子。
还有两只喵皇和一只“大佬”狗。
家中“藏”有手办上万件,
堆满了整整两个房间!
男女主人,都是极热爱生活、
极崇尚自由与自然的人。
因而,这是一个充满了生活气息的家~
▽
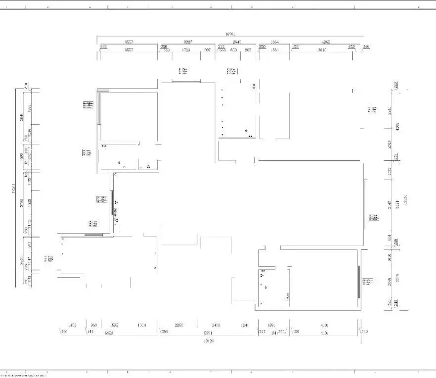
原始结构图
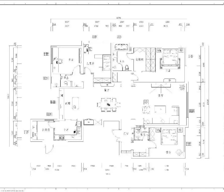
▽ 平面布置图
入户
■ 装饰画为设计师和业主共同挑选的西安地图
原始户型方正通透,无明显硬伤。唯一的硬伤是:入户伊始,便是一个窄长逼仄的过道。而开门就“怼”上的这面墙,正好是总电阀、总水阀所在地。
考虑水电造价,一般情况下,业主选择保留原貌。但比起之后“日久天长”的不适。
在设计师戴飞的建议下,对生活极有追求的本案业主,还是选择了将整面墙后推。因而有了目前开阔明朗的过厅。
礼仪镜的拱形造型以及凹陷感,使人产生了这是一个拱形门洞的错觉。扩展了视觉上的丰富性和层次感。
客厅
■ 《向往的生活》王珞丹同款猪猪沙发
住宅位于26楼,周围无高层建筑遮挡。拆掉客厅到餐厅之间的一扇门后,南北通透,纵深达到了20米,空间感非常舒适。
不想让空间过于“无聊”。设计师拿着一张纸,打了几个线。现场订做的KD板,就按照纸张上的线条进行分割。以彰显材质的肌理,打造视觉上的立体感。
电视墙背景墙长达7米,为防过于“空旷”,设计师“故意”跳色,以实现对空间的重新分割。
设计师分享了一件施工中发生的“趣事”:
本项目所用的地砖、橱柜岩板、墙面,全部为灰色。临近的住户过来观看时,忍不住吐糟:“这家人肯定心里很阴暗。”
设计师戴飞:“这反映的问题是什么。很多人喜欢‘极简’,黑白灰、他不是真的喜欢。他只是喜欢他心目中的这样一个概念。当你实际做出来的时候,很多人会说‘没有家的感觉’。”
该户业主的态度是,既然这是我喜欢的感觉,为什么不按照设计师的想法去做?
设计师戴飞说:“好的‘作品’,也是需要好的客户去成就的。”
在实际的设计中,其实设计师戴飞有提前考虑到这一点,通过窗帘、灯光等等小细节,来平衡整体空间的“质感”,从而营造整个家的“温暖”氛围。
餐厅
业主拥有全套的咖啡设备。原本的厨房因狭小而被放弃,改为西厨。原有的阳台被改为厨房。
有纵深感的壁纸的选用,成为空间的亮点。
除了大件的家具经过设计师挑选。
家中的很多软装,都是业主自己搭配的。
如一束花、一张挂画,一个小摆件,一些手工艺品......
只有爱生活的人,才能将家布置的充满生活的意趣。
设计师戴飞:“照片是业主入住了一段时间后才去拍的。业主特意换了新的床单、被罩。”
在每一处空间,设计师戴飞同样愿意多花一些小心思。来赋予这个家更多的乐趣。
设计师戴飞:“他们,真的给了我很多启发。”
卧室
■ 经过设计师整理的书架
设计师戴飞说:“卧室的地板,一定要有人字拼的效果。”
卫生间
■ 裁了两个老树根做成的台面
■ 竖铺的瓷砖
设计师戴飞:
“
把每个‘家’当成作品去做。
这是居室主人对‘家’的尊重,也是我对‘家’的尊重。
”
因为愿意用心生活,也才有了“家”。
项目信息
项目坐标:西安 · 中建 · 国熙台
项目类型:住宅项目
项目面积:222㎡
设计风格:现代风格
设计范围:室内设计/软装陈设
主案设计:业之峰装饰·戴飞
主要材料:KD高级定制(木作)、中央空调(三菱电机)、木门(日本骊住)、汉斯格雅(洁具)、欧派橱柜(橱柜)等
关于设计师
戴飞
从事装饰行业:9年
毕业院校:西安美术学院
设计理念:设计是一种追求完美的生活态度,设计是一种追求品味的生活理念。一切以人为本,一切围绕为人的生活、生产活动创造美好的室内环境
代表作品:林隐天下洋房别墅. 中海铂宫别墅. 逸翠尚府.金地芙蓉世家. 天地源丹轩坊. 亮丽家园. 金水湾. 梧桐苑. 海德堡.海伦国际. 望城国际公馆. 金地湖城大境. 金辉世界城. 绿地国际生态城. 绿地城. 泉上花间. 恒基碧翠锦华 .华侨城天鹅堡.紫汀苑
关注筑客西安
合作联系
投稿
对话框回复“
投稿
”
咨询&找设计师
对话框回复“
咨询
"
客服
消息
收藏
下载
最近























