查看完整案例


收藏

下载
你理想中的家,是什么样子的?
浪漫?矜贵?还是自由洒脱?
家里面,藏着一个真正的“我”。
男主女人,泊居美国12年。
有一个名叫“张大圣”的调皮儿子。
落脚西安后,
他们想要一个可以长住的温馨场所。
故而,有了这个可以撒着脚丫子、嬉笑欢闹的家~
业主超喜欢“宜家”家具,怎么破?
因“泊居”,故“搬迁”是常态。
故,夫妻二人超级喜欢“宜家”的家具。
对于设计师李锦萱来说,
当然要——满足TA~
为此,跑遍西安的宜家市场,
调研
宜家
的各系列家具,
再根据选定的家具,
综合考虑硬装改造部分预留的尺寸,
如:根据一个组合橱柜的宽度、深度,
确定隔墙的......
知道了自己想要什么样的生活,
便只管撒着脚丫子向它奔去~
有人,偏爱曲高和寡的至臻之境。
自然有人,心悦朴质自然的人间喜乐。
客厅,可以有一个小书桌~
相框里,可以裱上小朋友的
“佩奇”画作。
谁让快乐会传染呢?
从沙发颜色的选择,
到一件件小饰物的归置。
随和舒朗的业主和同样随和舒朗的设计师,
在愉悦的心境中,一点点将这个家完成~
小孩要在家“欢脱”,怎么破?
作为非常重要的家庭成员,
“张大圣”同学成长的重要场所,
他的感受,是一定要重点考虑的!
其实,男女业主,
也是有壁粝灯清、闲心素净的追求哒~
但,还没有在喧闹繁华、五彩斑斓里走上一遭,
没有过“撒泼打滚”、“雄霸四方”的潇洒日子,
怎么能叫“完美”童年呢?
所以,家的颜色,便随之丰富鲜活了起来,
于是,空间与空间之间,便随之串通开放了起来。
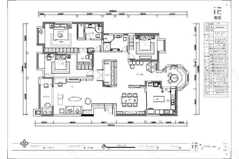
⊽ 平面布局图 ⊽
可以让
“张大圣”
同学,
从客厅一路“野”到“餐厅”...“茶室”,
业主夫妻二人,又可以一探头就找到他,
保障安全的前提下,给予最大的自由。
△“张大圣”
同学
的儿童椅
喜欢西方的节日氛围,
因而有了
水泥质感的嵌入式壁炉,
简洁爽朗,又有着生活的意趣。
珐琅彩的茶壶,侬丽雅致,
在一干清新的“北欧风”器物中更显别致。
这些不同“维度”的物品因着个体的品味聚集一处,
共同构成了这个“杂”而不乱,
充满生活气息,
充满“人格”魅力的
“独一无二”的空间。
器物,更多的是服务于生活,
因而,不会过于“刻意”,
从而产生疲累之感
。
△
全套的净水、软水、新风系统以及用来放“娃”的台面
设计师说:“硬装上,并没有太多装饰性的表达。这个家更多的是强调‘
功能性’。这两年的客户,都特别知道自己想要什么......”
△ 静享清风、清茗、清音~
△ 黑板材质的谷仓门
上面的大喵出自“大朋友”——本案设计师“李锦萱”之手。
“张大圣”的私有地:
和麋鹿、小猪毗邻而居,
和猩猩一起荡秋千。
联排组合橱柜,多少儿童画册都装得下。
△ 卧室,简单惬意就好
卫生间太小怎么破?
原本的卫生间过于狭小、
过于阴暗逼仄怎么办?
当舍则舍,当断则断。
闲置的保姆间被改为洗衣房,
原本的两个卫生间合而为一,
轻松解决~
总之,好玩、快乐,无拘无束,就对了~
关注筑客西安
合作联系
投稿
对话框回复“
投稿
”
咨询&找设计师
对话框回复“
咨询
客服
消息
收藏
下载
最近
























