查看完整案例


收藏

下载
项目面积
∣248
㎡
项目成本
∣148万
项目风格∣现代简约
主案设计师∣冯刚
项目地址∣
西安市曲江新区曲池东岸
每个人对家的定义都不尽相同
但无论怎样
我们不可否认也无法否认的是
【家】是心底最温暖的所在
在外遇到的所有令人负面的
或正面的人和事
都会在归家后得到平息与释怀
我想
每个人都会希望
于一整天的忙碌过后
回家推开门的瞬间
是舒适,是放松
是卸掉一切伪装
可以肆意的做自己想做的
与爱人合作亲手烹饪的美食
一本书一杯温热白开水
一个让你共鸣的电影
一只粘人的或高冷的小喵
和让人脑壳都疼的二哈
家的感觉,当是如此罢
0
原始结构图
毫无“亮点”的四室两厅毛坯房
虽整体户型结构相对较好
但厨房为封闭式
其对应的墙体占用面积
可以说是造成了空间浪费
局部空间显得狭窄
并且在采光与与通风上也不够流畅
1
门 厅
以高级灰装饰
仿真青砖纹路带着流光印迹
有着低调的简约“怀旧”质感
玄关画作为视觉中心
让人的视线不自觉的聚焦于此
温柔的配色
让人在归家后得到身心上的放松
2
客 厅
业主在与设计师冯刚交谈时
只给了两个词:简单、质感
看起来似乎的确是很“简单”
但众所周知,大繁至简
越简单实则对应着越困难
可旋转电视极大程度的利用了空间
同时兼顾了功能性与美观性
而皮质沙发的低调内敛
也在白色墙体柜体中柔和了几分
3
餐 厅
如果说客厅
是整个空间的外在形象展示区
那餐厅必然属于最为内涵的所在
中国人对吃食的研究
自古而精
一个精致的生活
自然不能缺乏制作美食
与享受美食的舒适所在
天然木色带着自然的清新之感
让厨房都蔓延着新鲜气息
开放式的改造设
更大程度的将空间的采光与通风提升
咫尺之间
只差一个你与家人的眼神与笑意
4
主 卧
都说“睡眠是一门艺术”
好的卧室环境
有助
于
提高居住者的睡眠质量
简约的灰色成了它的主调
带着偏冷的质感
以灯光来让空间柔和温暖
诗意的生活
从一捧花开始
5
卫生间
以墙体色块来划分
卧室与卫生间区域
巧妙的利用灯光
将镜体投射出水滴的形状
透彻感与流动感
仿似瞬间就扑面而来
带着让人沉静的力量
在空间中静静地感受
【家】的宁静与安然
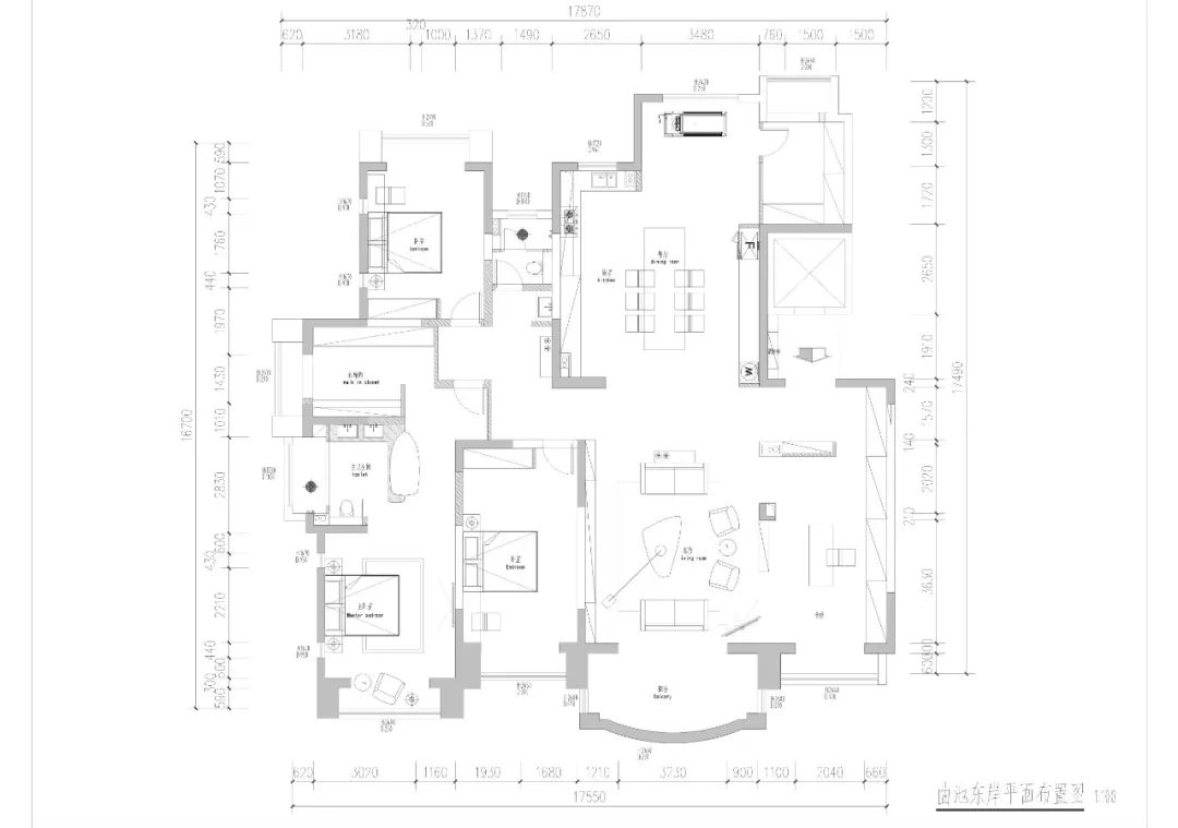
6
平面布置图
关于设计师
冯刚
从业25年
观想室内设计创始人
设计理念:
以人为本,并坚持做纯粹的设计,在设计上达成一种和谐,更为人性、也更贴近人们的生活。
从业经历:
1970年12月出生
高级建筑室内设计师
1995年毕业于西安建筑科技大学建筑系
2002年担任西安蓝码克设计总监
2006年创办观想室内设计有限公司
2010年开始游学欧美及东南亚国家,并于
2014年携手欧美顶级高端家具品牌成立
Vision casa 家居馆
获得奖项:
2007年获得中国十大室内设计师金羊奖
2008年获得中国家居住宅类十大设计师奖
2012年至今连续获得中国室内设计筑巢奖
主要案例:
家装空间:曲江皇家花园独栋别墅、浐灞金域湾畔独栋别墅、金地芙蓉世家联排别墅、曲江百贤府联排别墅、曲江大华公园世家联排别墅、曲江和园联排别墅、紫汀苑复试、龙湖花千树复试、曲江曲池东岸项目、省水上运动中心宿舍楼等。
商业空间:旭泰商业街区商场、HAY丹麦家具专卖店、振驰家居第六空间专卖店、A-cup 咖啡厅、白桦林间售楼处、宝鸡盗汗王火锅旗舰店、中建-群星汇售楼处及样板间、济南-中建样板间等。
关注筑客西安
合作联系
投稿
对话框回复“
投稿
”
咨询&找设计师
对话框回复“
咨询
客服
消息
收藏
下载
最近

















