查看完整案例


收藏

下载
|日子|
也许每个人都想过上“跃层式”的日子,也祝每个人都能拥有别人羡慕不来的日子。日日是好日,时时是好时。
|日子|
|180 平米|
|江苏·泰州|
创作关键词
精致感·生活感
一直认为家是人类生活舞台的中心。在 24 小时中只有在这个空间里的时间,才是舒适、放松、温暖的。本案是一个家庭生活的居所,180 平米的复式洋房。空间结构越复杂,就越要考虑这其中的关系,在这个多样化空间中,如何满足一个家庭的生活空间需求?又如何让家的设计更精致更细化?设计师将两层房屋首先进行了关系处理,通过功能所需进行了分类,再创造一些多样可能性的空间,就像我们看到一层的客房和二层的书房,都是可以进行多功能利用的空间。另外,在生活习惯上,设计师也给予了特别的关注,将洗衣房设置在了二层生活区卫生间门口,便于洗澡时脱换的衣服直接进行清洗、烘干,尊重动线的合理性,便于日常生活起居。洗衣房还配备了水吧,晚上起夜口渴也不需要再跑到楼下区域进行饮水。
门厅处非常贴心的准备了洗手池、挂衣处、鞋柜等,提高了迎客入户的仪式感。
整个空间使用了冷灰色系的地砖搭配白色柜体,静谧又精致,再通过灯光、软装的调配,素雅之中又不乏生活的艺术感。
男孩房则比较特殊,利用偏硬朗的蓝色和橘色软皮椅的加入,使空间个性更加鲜明。
走廊楼梯处散发着浓浓的文艺气息,更像是整个空间的连接纽带,回转、延伸......
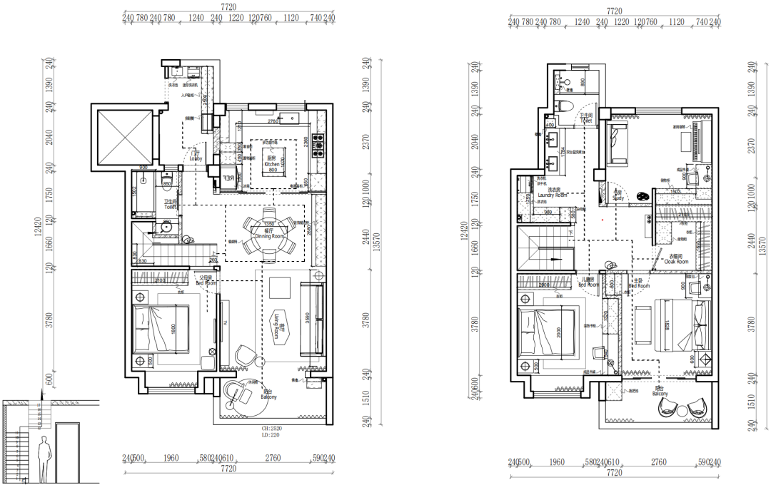
平面图
鸟瞰图
Hallway 门厅 -
Living Room
客厅
Dining room 餐厅 -
Masterbedroom 主卧 -
Boy’s bedroom 男孩房 -
Guest bedroom 客卧 -
Studyroom 书房 -
Toilet 卫生间 -
Gangway 过道 -
MIMO 设计|联系|18115938666 孙莉|地址|江苏省泰州市海陵区兴业路 100 号太平洋装饰城 3 楼|创始人/设计总监 孙莉
进修经历:
- 中国美术学院高级软装设计师课程结业
- 法国巴黎国立高等装饰艺术学院国际设计总监课程结业
- 同济大学建筑与城市规划学院|同济大学室内照明设计(高级)研修班结业
所获荣誉:
- 2016 年度泰州十大设计总监
- 2017 泰州首届家装设计大赛荣获“十佳设计师”称号
- 2017 年 3 月 8 日泰州晚报新 360 行人物采访专刊
- 2017-2018 年度泰州室内设计师“资深专家设计师”称号
- 2018 第五届中国设计年度大会暨金鹰设计大赛“年度精英设计”称号
- TZIID 泰州室内设计师学会理事
- ICDA 国际建筑装饰室内设计协会-陈设艺术设计师
- ICCED 中国精英设计师国际俱乐部城市合伙人
客服
消息
收藏
下载
最近






















