查看完整案例

收藏

下载
本案的业主为自营业主,从事教育培训与咖啡连锁店经营,多年的从商生涯后,择了一处毗邻古镇的宅子,在这座集度假与居住为一体的别墅内生活。夫妻二人非常心仪2018年春亭设计的上海七大知名豪宅之一“月湖山庄”的设计风格,故此将此案例的风格一并延展用于本套案例,成了最终的合作契机。充满喜悦与惊喜的装修之旅就此开启。
01/
专案组介绍
项目名称:海上湾华庭紫园
项目面积:500㎡
项目团队:春亭别墅全案设计组
全案设计师:刘慧珺
建筑结构师:杨朝雷
材料管理:花丽娟
项目经理:陈进
监理:黄飞龙
设备工程师:永乐楼宇
点我了解她↑↑↑
项 目 实 施 专 员 们
02/
客户需求
1.居住人口:夫妻二人、儿子 20 岁、父母(偶住)。
2.风格取向:现代法式轻奢。
3.空间功能特殊要求:
(
1
)一楼空间功能分配为:车库(两部车)、门厅、父母房套间、客厅、餐厅、厨房、客卫;
(
2
)二楼共三个套间,主卧套间,儿子套间,客房套间;
(
3
)三楼的空间需把顶做平后,作为儿子的画室和父亲的摄影器材或摄影作品收藏展示区;
(
4
)地下室的空间功能分配为:影音休闲区、酒窖(收藏白酒)、一楼门厅和套间下方可以下挖一个房间;
(
5
)合理布置电梯和游泳池位置,合理设计并搭建亲水平台、阳光房、露台。
03/
原始户型分析
优点:各空间区域布局较为合理、工整。
缺点:
整个别墅空间楼梯位置不合理,太靠边了,整体行走动线过长。
1F餐厅与中、西厨的比例空间分配不协调、不规则。
2F主卧空间小,进行了外扩将露台包括入内,做成了阳光房。
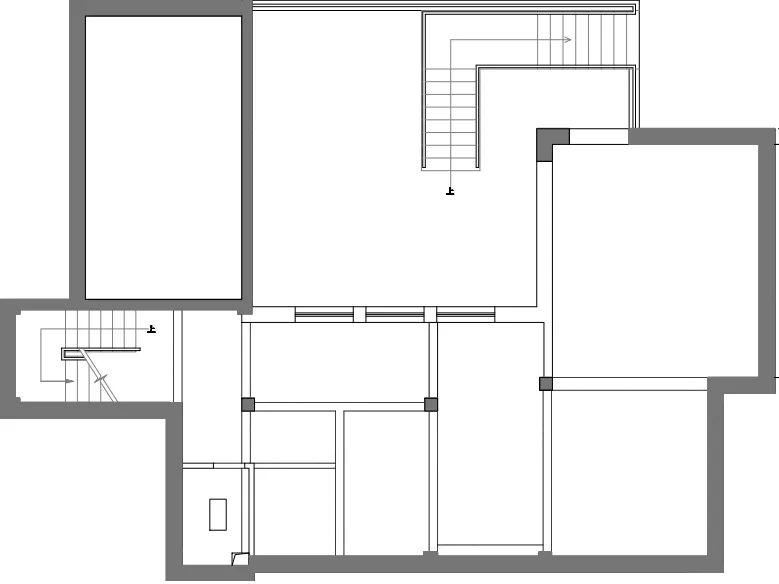
原始平面图-
1F
原始平面图
1F
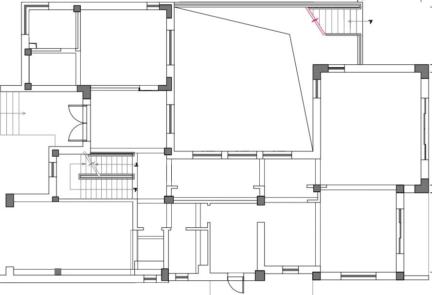
原始平面图
2F
原始平面图
3F
设计沙盘
设计沙盘是春亭坚持有的环节之一,在设计预案出来后会在公司多次举行,项目组针对本案进行了方案梳理,听取众多设计老师的建议,将设计品控。
04/
旧宅一撇
原始外立面
原始-1F
原始1F
原始2F
原始3F
05/焕新鉴赏
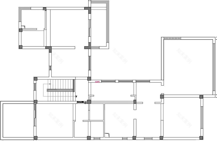
平面布局图-1F
1.休闲区及品茶区 2.影音室 3.楼梯 4.电梯 5.卫生间 6.走廊 7.酒窖
8.工作间 9.保姆间、衣帽间、卫生间 10.室外休闲区
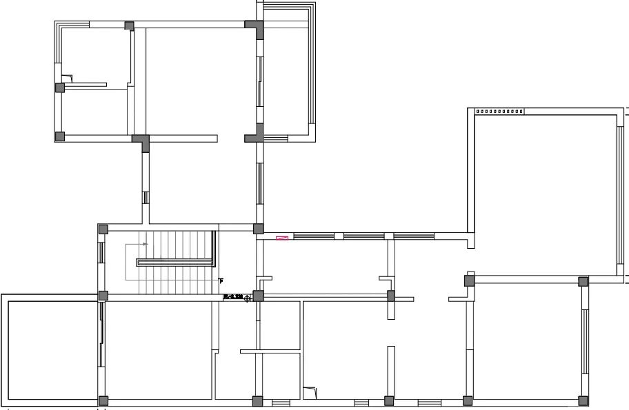
平面布局图1F
1.门厅、衣帽间 2.客厅 3.餐厅 4.厨房 5.楼梯 6.走廊 7.电梯 8.卫生间 9.老人房、衣帽间、卫生间 10.南花园 11.北花园 12.东西两侧花园
平面布局图2F
1.主卧室、 门厅 2.主卧室衣帽间 3.主卧室卫生间 4.客房 5.楼梯 6.走廊 7.电梯 8.卫生间 9.男孩房、 衣帽间、卫生间 10.家庭厅 11.休闲阳台 12.休闲阳台 13.休闲阳台 14.玻璃栈道
平面布局图3F
1.楼梯 2.摄影展示区 3.画室
06/
空间效果
法式轻奢摒弃了传统意义上法式空间的高调、奢华、繁复,简化装饰,返璞归真,保留了法式的优雅和轻奢的调性同时结合现代家居生活的场景进行设计又给人时尚前卫、气质优雅且不失温馨舒适的感觉。
07/设备系统
08/中央空调系统
09/地暖系统
10/新风系统
11/中央水处理系统
12/温暖干燥系统
13/智能化系统
14/门禁系统
15/强弱电系统
16/垃圾粉碎系统
17/
环保精工
绿色、环保、健康
春亭不仅为您设计、施工一套房子,更是创造了一种更环保更舒适的生活方式。
环保建材与在施现场
在施现场照片
施工过程是将设计还原的一个重要阶段,在这里我们坚守品质筑家的理念,绝不在服务的最后一公里处掉链子。
HOT/推荐阅读 |
您可能还喜欢
点图阅读↓
↓
↓
最新作品 | 用黑、白、灰演绎传世名邸的今世风华
【春亭新作 ▪ 归来】海外旅居夫妇的325平精致生活家
【春亭新作 • 白色印象】150㎡国际化社区的品质生活家
专为高端精英人士提供优质家装服务
免费量房与二套装修设计解决方案、装修预算一份
客服
消息
收藏
下载
最近













































