查看完整案例

收藏

下载
户型档案:
项目面积|140㎡
装修风格|现代简约
清丽柔和的色彩和温馨布艺沙发的碰撞,让家中每一处的细节都带着温度。
只要
一推开家门,你仿佛就打开了任意门,来到了一个清爽恬静的世外桃源中。
家是温馨惬意的静谧小屋,收下你所有的疲惫和伪装。
1
客厅
棉布和亚麻的沙发,亲肤、柔软,给人轻薄凉爽的感觉。让人觉得每一寸肌肤都呼吸到了新鲜的空气,得到了丝丝放松。
黄色小凳为整个客厅空间增添了一抹亮色,让客厅显得更为活泼。
2
餐
厅
餐厅与客厅联通,整体以灰色和白色为基调。大理石纹的桌面、简约的家居设计,再配上一个特别的黄色靠背椅,与客厅形成了很好的呼应,从搭配和色调上就让人感受到温暖。
3
厨房
L型厨房设计,让狭长的厨房最大程度地发挥空间价值。将洗菜和烹饪区分开,不仅使用便捷,整体也显得整洁大方。
4
卧室
卧室采用木质地板,床边小书柜方便了主人对于书籍的收纳,可以更方便地做到在睡前看一会儿书。外层白色纱窗帘,让采光变得更优,而内层的遮光厚窗帘也能让我们拥有不被打扰的自在睡眠。
5
浴室
浴室色调和谐大方,配备有浴缸和淋浴设备,无论是想放松身心泡一个暖暖的热水澡还是简单地冲一下澡,你的要求都能被满足。
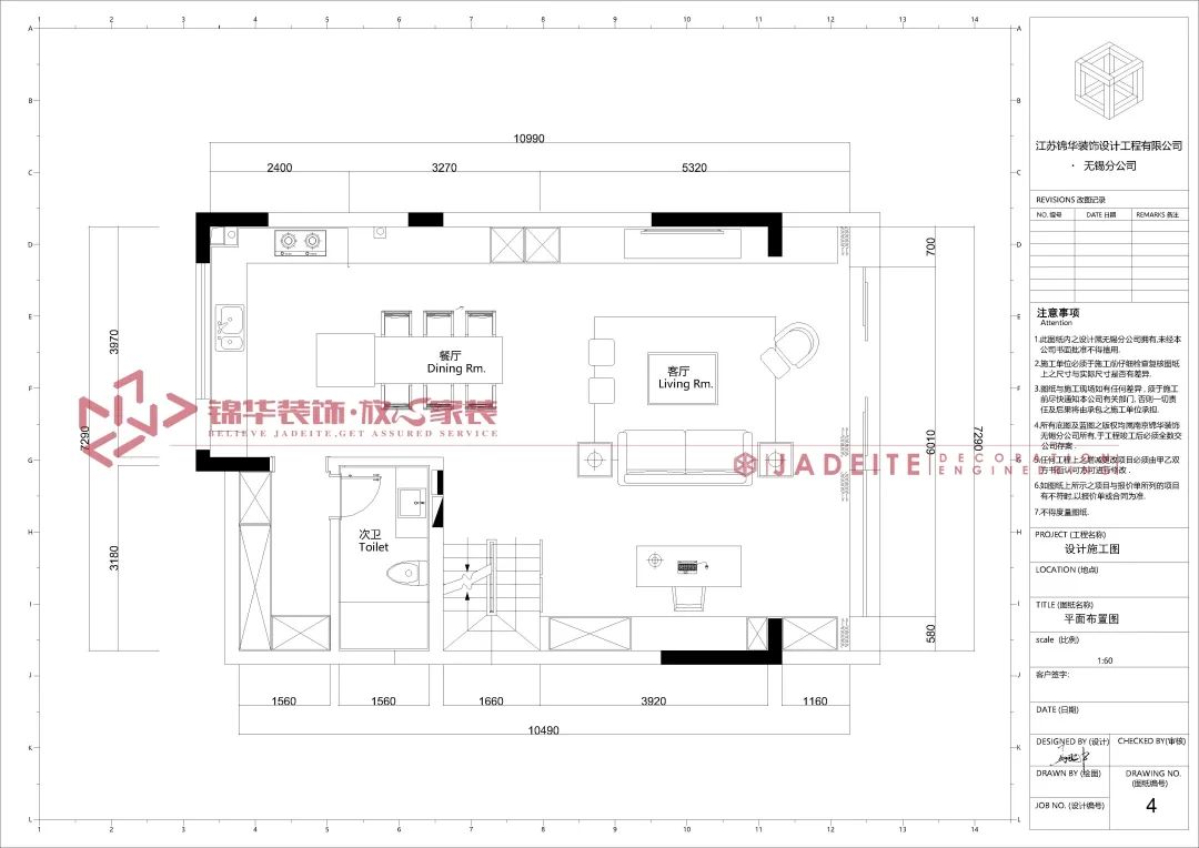
本案平面设计图
○
平面布置图
设计亮点:本案案例设计看似简洁,运用温润大理石配色,点缀一些亮色家具,温润、和谐不突兀,但实际上设计师对于整体的设计倾注了许多用心。房屋设计不仅满足了业主多方面的功能需求,还为业主提供了一个温暖放松的精神家园。在复杂浮躁的社会环境下,回到家能让累了一天的身心得到休整,正是我们所有人需要的。
☟ ☟ ☟
如果您对自家户型不满意
可以咨询我们
给您送上解决方案
18206184806
客服
消息
收藏
下载
最近












