查看完整案例

收藏

下载
五月,春去夏来,炙热浓郁,充满生机与热闹。为了让广大苏城业主更便捷、更直观了解自己的未来家,预见美好家,锦华装饰推出苏城重点楼盘整装节,活动时间为 2021 年 5 月 6 日-5 月 30 日。从楼盘深度研发到户型设计方案到户型个性化改良,这个五月,和锦华装饰一起将您心中憧憬的家,从蓝图变为现实。
01 楼盘信息
△图片来自网络,侵删
名称:中海.上贤府
项目位置:[新区–狮山]黄埔街东,竹园路南
建筑类别:高层
装修状态:精装
产权年限:70 年
开发商:苏州茂龙地产发展有限公司
总户数:510 户
楼层状况:11-19
交付楼栋:1#2#3#4#5#7#
物业费:3.95 元/m².月
物业公司:中海物业
02 周边配套
娱乐:宝龙广场、龙湖天街、淮海街、赛格电子市场
教育:苏州高新区星韵幼儿园、苏州高新区国际公馆幼儿园、蒙台幼儿园
医疗:苏大附属第二医院、苏州市中医院、明基医院
交通:地铁 3 号线-索山桥西、93 路公交车直达吴江
03 现场直击
中海上贤府
小区环境优美整洁,内部配套和绿化以及服务都做得不错,每一个进入小区的人都能够感受到自然之美。
俯视小区,整个小区外景勾勒出简洁清晰的轮廓,平添一番生活意趣,外墙以时尚庄重的黑黄色为主,增强了立面视觉的丰富性,让人倍感自在和放松。
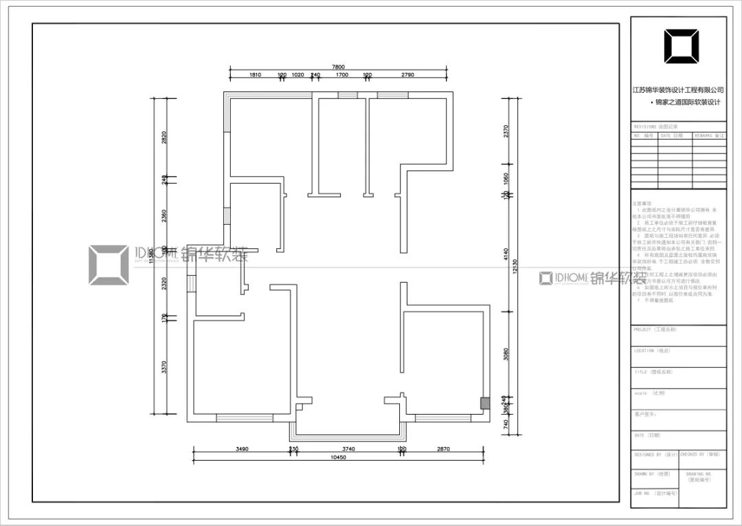
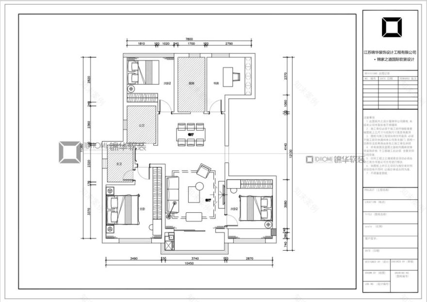
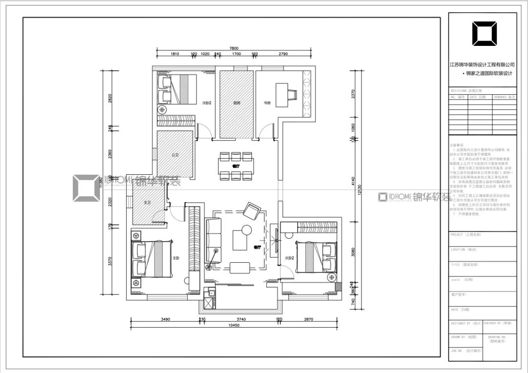
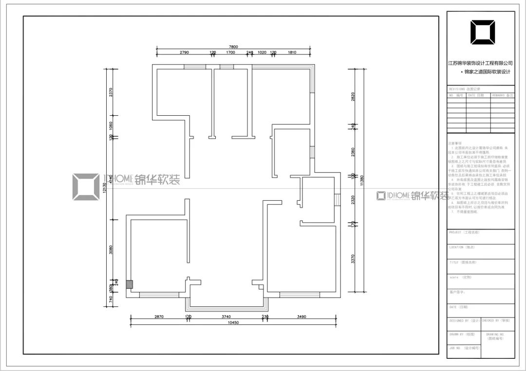
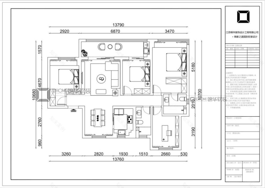
04户型图&户型解析
锦华装饰
根据
『中海上贤府』
120㎡、120㎡边套、143㎡
户型
分别做了详细的设计方案
直观、具体的展现
每位业主对心目中美好家居的想象
120㎡
户型解析
效果图
120㎡边套
户型解析
效果图
143㎡
户型解析
效果图
锦华装饰目前各户型均有研发方案及效果图。▼18206184806
客服
消息
收藏
下载
最近
































