查看完整案例

收藏

下载
【项目·信息】
地址 / 京港国际
户型 / 三室两厅
面积 / 192㎡
风格 / 现代风格
设计施工 / 浙江南鸿装饰
1
关于作品
业主是一对年龄 45 岁左右的夫妻,事业稳定,家庭幸福。夫妻二人热衷各类美食料理,所以对家里厨房的设计更加重视。
总体来看,户型面积很大,三室两厅的格局留给了公区域相当宽敞的可使用空间。设计与选材上秉承现代风格的原则,强调理性而宁静的室内氛围,稳重的木料与明朗的石材相配,实现物质与精神的双重安放。
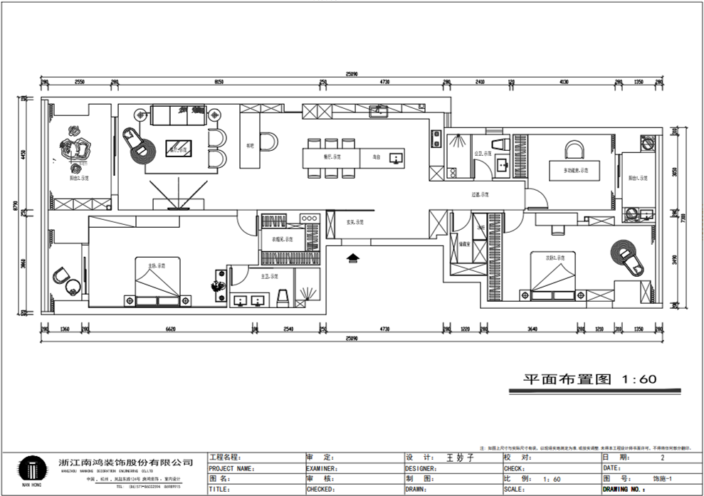
户型分析
1、正门对厨房,以竖条木格栅做隔断。
2、客餐厅两块区域中间做一个书吧用以分隔空间,增加层次性。
3、做开放式厨房,餐桌增添岛台,提升空间利用率与家人互动性。
4、北阳台和女儿房打通,扩充女儿房的使用面积。
3、设计落地
玄关
ENTRANCE
入户玄关以深色的木格栅阻隔视线,既是风水上的考虑,又很好保护了室内隐私。地面通铺白色瓷砖串联内外,关于家的第一印象便在此构建。
细木条元素自带美感,光影的变幻交错间,涌动出不凡的艺术张力。客厅 LIVING ROOM
低饱和度色彩与明朗的线条,传达着主人对简约品质生活的追求和向往。全屋顶面统一做无主灯装饰,嵌入 6 毫米黑色金属条,极细的线条感透出设计的巧思与灵动之美。
空间以简洁敞亮的硬装基础,搭配素净的颜色与舒适的软装,深色木质元素在其间跳跃点缀着,中和刚冷的石材光泽。电视机嵌入大理石背景,墙面纹理与地呼应,下开收纳格取代传统电视柜的位置,立面干净,层次更在一深一浅中凸显。
视线无论由无主灯顶面还是地面延展,均是顺畅无比,大户型的气派一览无余。
客餐之间由小书吧自然过渡,可以当作一个开放式的书房使用,读书、办公、品茶、娱乐等多重功能恣意交互,单一空间由此衍生出诸多使用情境。
餐厅
DINING ROOM
餐厅与门厅相邻,开放式餐厨设计满足主人的所有美好想象。餐桌的胡桃木色与岛台、厨房的浅色形成对比,雅致的古韵与锋利的现代感交汇,成为这个家个性的一面展示。
清晰笔直的黑白线条拉伸空间纵深感的同时,也让客厅和餐厨的视野更显朗阔。
温润的胡桃木纹理典雅大方,空间的诗意氛围在简约的线条层次中被有力烘托出来。
厨房
KITCHEN
既可以扩充厨房操作台面,又能当吧台使用的岛台,和餐桌结合在一起,大大增加了使用频率,搭配上款式轻盈的吧台凳,毫无疑问是餐厨区的颜值与实力担当。
开放式布局将厨房和餐厅融为一体,洁白柜体把嵌入式电器隐含其中,宽大的台面足以满足日常烹饪需求,环形的动线则可以让人穿梭其中行走自如。
卧室
BEDROOM
主卧背景墙以灰色墙布和木饰面结合,细腻纹理展现有机的温暖、纯净,灯光被有序在墙顶面安置,让人倍感安神,又不失高雅格调。
床头壁灯的莹莹微光,带来夜的凝思。床尾放一把小羊羔绒椅,圆润线条惹人喜爱。光影之间,居室气质自显。
宁静灰是次卧的主导色,纳入的阳台让室内采光更加充足,满满当当的柜体则将空间的收纳力放大到极致。
阳台被细心布置为休闲一角,为主人谱写出惬意的生活桥段。
卫生间
BATHROOM
卫生间整体保持极简的格调,黑白配色更显洁净,台盆柜纤巧落地,视觉上倍感轻盈。
- END -
客服
消息
收藏
下载
最近


































