查看完整案例

收藏

下载
【项目·信息】
地址 / 世贸西西湖
户型 / 三室两厅
面积 / 91㎡
风格 / 现代法式
设计施工 / 浙江南鸿装饰
本案为91㎡现代法式风格作品。现代法式摒弃传统法式繁复、冗杂的装饰造型与甜腻的色泽,通过淡雅的色调,简洁的几何线条和典雅时尚的陈设软装,来打造更符合现代人喜好的生活空间。
The Elegant Style
业主夫妻俩,一位是性格沉闷的工程男,一位是热情开朗的设计女,彼此志趣相投,性格互补,优雅的法式,给这个甜蜜小家庭增添了更多美妙情趣~
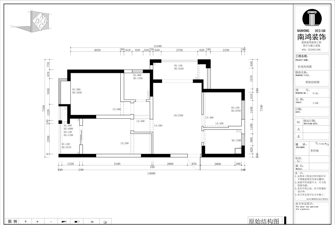
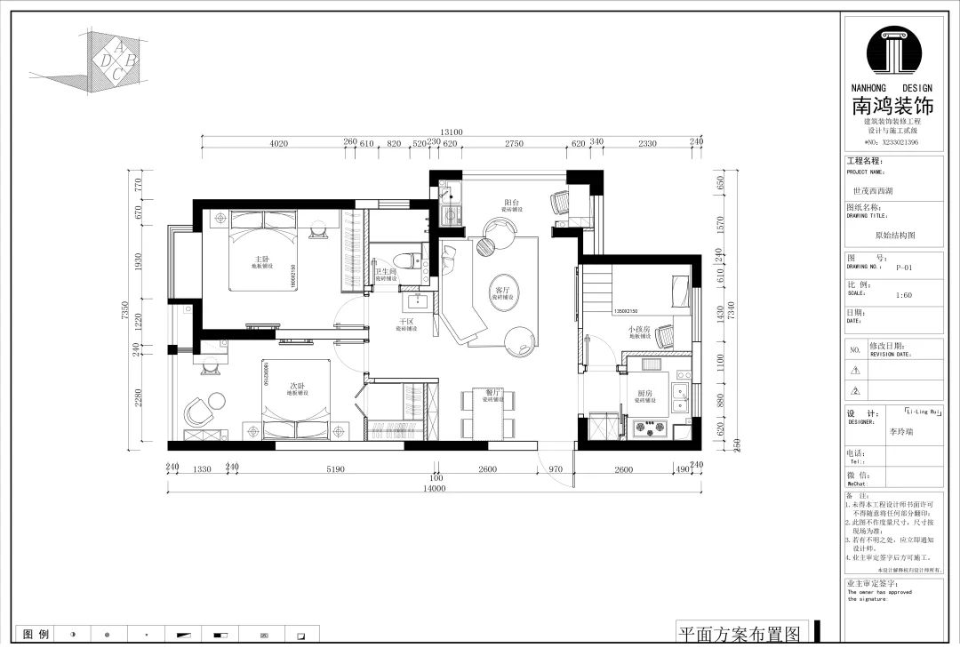
户型分析
▲原始结构图
▲平面设计图
①卫生间做干湿分离。
②儿童房的门洞方向更改,完整电视背景墙效果。
③主卧和次卧交换位置,次卧阳台打通。
④缩小主卫面积,墙体后退得以嵌入一个大衣柜。
餐 厅
入户门进来即见餐厅。户型面积不大,公区域都尽量打开让视野更开阔。
硬装整体简洁,墙面可见石膏线花纹装饰,借此强化一定法式空间意象。餐桌椅、吊灯的造型选择也都偏现代,空间中奢与简的分寸把握得恰到好处。
绿色作为本案的点缀色,可以说贯穿了几乎各个分区之中,鲜活的生命力让人过目难忘。
客 厅
客餐厅一体式设计是小户型的常见选择,也更符合现代人的生活习惯。灰白主色保持整体低调,局部墙面以饱和度高的绿色乳胶漆涂刷,空间被提亮不少。
客厅采光良好,沙发背景墙连接干区的位置做一个小的半高柜,提升空间利用率。软装家具布置则用简洁的设计手法将法式的古典优雅和现代的简约时尚相结合,使得空间既有休闲感受,又不乏艺术气息。
经过设计调整,电视背景墙的效果更加完整,深浅色调做左右两块分界,以石膏线装饰则更显精致。
过 道
拱形门洞也被应用在这里,作为历史悠远的一种经典建筑元素,本身就很契合各种带古典意味的家居风格。
厨 房
厨房以长虹玻璃门隔绝油烟,保证内部的私密性,也实现了采光的通透感。冰箱被移至过道,释放内部更多空间。
厨房采用U型布局,动线流畅,烹饪区、操作台和洗涤区都有各自独立的空间,互不打扰。
卧 室
主卧,青草绿墙布做背景装饰,留白保持简约调性,一幅婚纱照诉说着夫妻二人简简单单、明明白白的甜蜜爱情故事。
光源除主灯外,床头两侧各有布置,一边长臂灯一边吊灯的不对称设计,让卧室空间显得更加有趣,金属材质呈现轻奢美感。
长辈房的背景、色彩选择需要贴合老人的喜好,选用橙色主色,带来如阳光般的灿烂、温暖感受。
夫妻二人目前还没有孩子,这个房间预备做以后的儿童房,布置相对简单,方便将来调整。
卫 生 间
卫生间将干湿区域分离,洗漱台盆柜、壁柜与旁边打造出的半高柜体可将瓶瓶罐罐都收入其中,保证视觉上的清爽。
- END -
客服
消息
收藏
下载
最近

































