查看完整案例

收藏

下载
一个崭新的空间,充满不曾使用过的时间。沾着光、伴着风,于是变成了最好的日子。
【项目·信息】
地址 / 蔚蓝领秀
户型 / 三室两厅
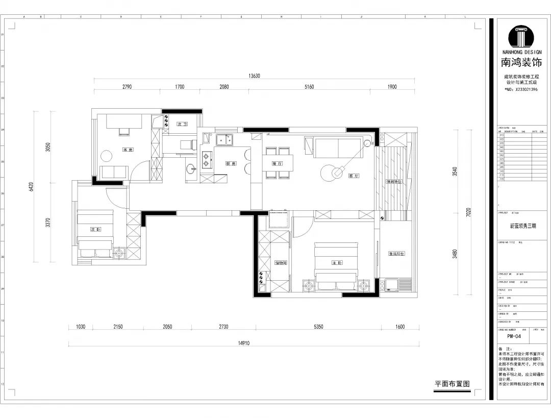
面积 / 89㎡
风格 / 混搭风格
设计施工 / 浙江南鸿装饰
客 户 需 求
本期的屋主是位性格非常温柔可人的漂亮小姐姐,95 后从事英语老师工作的她,喜爱阳光喜爱植物,喜爱生活中一切美好的事情,目前单身独居,希望自己的这个小窝能拥有丰富的仪式感和幸福感。
△放送一波小姐姐的美照!
装饰亮点
室内以木、白色为主基调,构建柔和温暖的生活场域。弧形元素的使用,让线、面的构件沿着内在结构有条不紊地铺展开,带来富有韵律的美感。
户型分析
原户型比较狭长,公共空间略显局促,进门视野不够开阔。
▼优化改动
1、进门做定制柜组合上长虹玻璃隔断,满足储物需求的同时让视野也能透过去,见光不见影。
2、厨房改为开放式,提升空间利用率,开阔视线。
3、客厅一侧的阳台设计为了休闲地台。
4、双阳台中间用弧形门洞打通,增强互动性。
5、生活阳台的洗衣机烘干机外侧以防腐木柜门包裹,美观实用。
01. 玄关 ENTRANCE
玄关定制了尺寸适中的柜子,中部搁板延长拉伸造型,并搭配长虹玻璃,避免入户直视厨房。
02.
客厅
LIVING ROOM
至简的软装布置,带来心无旁骛的宁静感受。开放的设计连通不同功能区,保证室内动线的流畅、连贯。
原木色与白色是室内设计中的一对黄金拍档,二者结合,徐徐散发温润悠长的气质。背景墙的弧线饱含着温柔,顶部无主灯设计则更显简洁。
客厅包进阳台完善采光,并改造为地台,提供一方休闲好去处。
午后的一杯清茶,正是优雅慢生活的开始。细品芳茗,唇齿间茶香萦绕,静享一段悠然的闲暇时光。
休闲阳台与生活阳台之间用弧形门洞打通,增强互动感。
03. 餐厨空间
KITCHEN | DININGROOM
具有仪式感与烟火气的开放式餐厨空间,U 型厨房布局在餐桌一侧延伸出吧台,并以不同的材质区分场域。餐厨交界处以木皮包裹墙顶面,并设计了搁板用来收纳酒品。
04.卧室 BEDROOM
主卧的气质与主人相配,温婉柔和,整体的氛围感主要依靠背景挂画、洁白的羽毛灯和吊顶的雕花细节来加以提升。
卧室内用来收纳衣物的衣帽间区域,并嵌入了主人日常化妆所需的梳妆台。
05.书房 STUDY ROOM
书房延续了全屋的温柔格调,选用黑色柜体,色彩对比鲜明,塑造层次感。
06. 卫生间
BATHROOM
卫生间做了干湿分离,白色的石纹瓷砖铺垫出整洁有序的基调。
--
☟
现场施工图
客服
消息
收藏
下载
最近



























