查看完整案例

收藏

下载
在这个家里,空间是有规则的,是简约、时尚的,具有经典和永恒的气质。
【项目·信息】
地址 / 康城一品
户型 / 三室两厅
面积 / 170㎡
风格 / 现代美式轻奢
设计施工 / 浙江南鸿装饰
01.
客户需求
本案的男业主性格开朗健谈,喜爱旅游和音乐,夫妻俩与父母和孩子住在一起,是标准的三代同堂居室,配色上要求时尚耐看。
02.
装饰亮点
本案在硬装上采用全屋护墙板,组合上不锈钢线条,呈现非常有质感有层次的轻奢细节。张弛有度的设计处理,强化了对空间框架和秩序的知觉,为屋主营造出颇具仪式感的生活氛围。
03.
户型分析
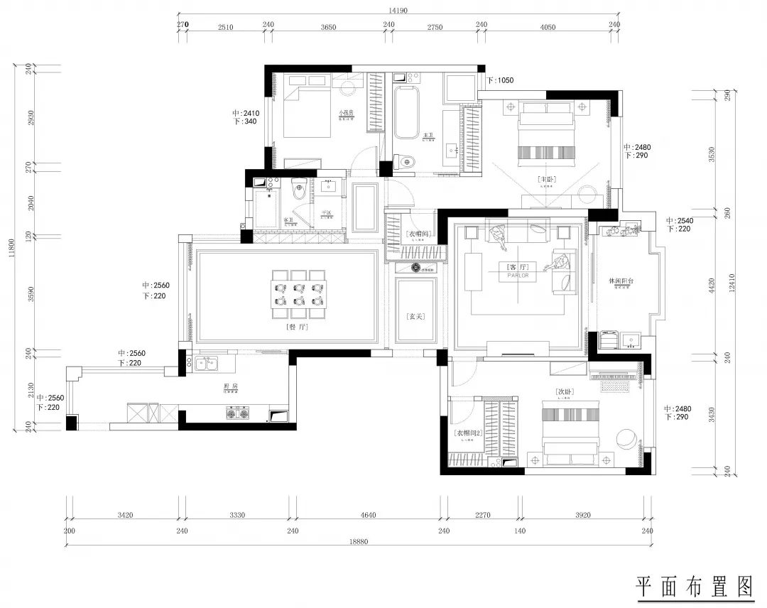
原始结构图▷
◁平面户型图
进门玄关尺寸加深;餐厅和主卧宽度加大,更显宽敞明亮;客卫做干区方便老人和孩子日常使用。
04.
设计落地
玄 关
玄关与客餐厅之间的贯连性极好,视线通畅,整体性强。为了对生活场景进行有效区分,设计师用波澜纹理的柜体、装饰画与些许摆件,营造出颇具艺术性和跳动感的玄关景致。
客 厅
客厅以明亮的银灰色为主基调,进一步放大宽阔感,并省去了所有繁复的装饰,以软装的色彩点缀和硬装的线条来勾勒空间的整体层次。同时,沙发、地毯、吊灯、电视柜的材质与颜色,也赋予空间强烈的轻奢质感。
沙发背景墙是全屋统一的木做护墙添加入金色不锈钢线条,浅棕色的主沙发平衡空间情绪,温和视线。
电视背景采用硬包,两边作对称设计并嵌入隐形门,统一性和秩序感突出。
餐 厅
餐厅打掉墙体之后,拥有了十分宽敞的就餐区域,扎实的餐桌描摹出沉稳的主旋律。公共区域整体通铺同花色地砖,用一种材质来保证大空间内的视觉整体性。
厨 房
厨房区域较为狭长,因此做并行式布局来节省空间并精简动线。白色的橱柜与台面简洁清爽,阳台一侧设置了休闲吧台,不浪费每一寸好风光。
卧 室
简单,其实就是对卧室空间最好的诠释,就像这间卧房,只保留最基础的功能,反而更合适日常的休憩。
儿童房主打男孩喜爱的蓝色系,飞机样式的吊灯与长颈鹿玩偶充满着浪漫的想象,将活泼的童趣与审美融合得恰到好处。
卫 生 间
主卫内里宽敞,灰色纹理瓷砖传递出现代感十足的空间感受。
- END -
客服
消息
收藏
下载
最近




























