查看完整案例

收藏

下载
打工苦,打工累,打工完了还要回家做家务,苦啊~
被家务支配了身体和灵魂的恐惧有那么大,优化家务动线,减轻家务压力迫在眉睫!
1
什么是家务动线
家务动线:做家务时走的路线;动线越长,路径越长,劳动越累。
而在我们家里,日常做的最多的家务就
是:洗衣、做饭、扫地;动线做不对,天天都好累。
那么“家务动线”怎么样才算设计的合理呢?做家务本身就很繁琐,所以我们在规划动线时,一定要注意顺序的合理安排,设计要尽量简洁,否则会让家务劳动的过程变得更辛苦。
2
优化家务动线
优化家务动线,我们从两个方面出发:减短动线和双动线设计。
1
减短动线
1、洗衣动线
在日常生活中,我们的洗衣路径是:拿衣服→洗衣服→晒衣服;经过的空间也就是:卫生间→洗衣机→阳台。
洗衣机和阳台的位置是固定的,所以缩短洗衣动线的关键,就在于洗衣机放在哪里。
①洗衣机位置摆放
洗衣机放厨房,动线肯定会加长。还是建议
将洗衣机放在卫生间与阳台的任意一个地方,都可以缩短洗衣路线。
放阳台:洗完衣服直接可以晾衣服,动线减短。
放卫生间:
②用烘干机
虽然卫生间阳台的位置改不了,但是选择用烘干机了,则减去晒衣服这一步,家务动线自然变短啦。
2、厨房动线
衣服一天洗一次,地可以两天扫一次,而饭,一天要做3次;厨房可以说是我们家中,家务最繁重的地方了。
所以厨房的动线,才是重中之重;减短厨房动线,我们先要了解我们的活动顺序 ↓↓↓
我们在厨房活动顺序:从冰箱拿菜→择菜洗菜→切菜→炒菜→装菜。所以我们的厨房动线布局:操作台→水槽→操作台→灶台→装盘台。
当然,厨房有大小,所以厨房的设计也会有所不同。
落实到实际中,应该是 ↓↓↓
①“一”型厨房
一字型的厨房,适合厨房不大的户型使用,操作台负责备餐、切菜、装餐等等工作;这样设计,动线最短。
②“L”型厨房
L型的厨房比一字型多了个拐角,建议以燃气灶为中心,三角展开,动线最短。
③U型厨房
U型厨房布局方面是完全可以满足:操作台→水槽→操作台→灶台→装盘台的日常操作,不仅实用还能装。
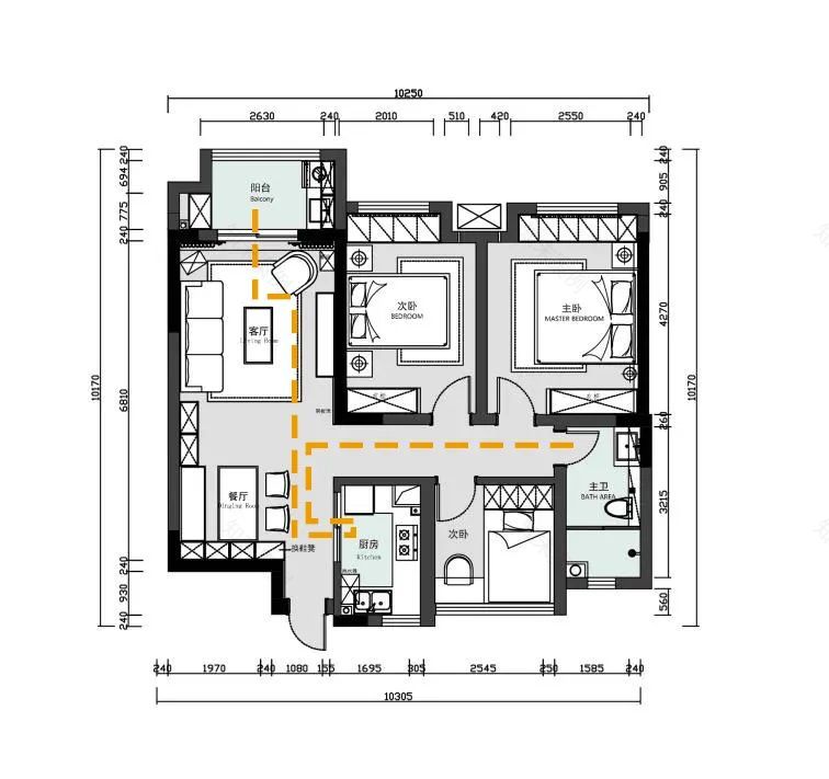
当然,考虑到上菜的路径,餐厅的位置不能离厨房太远,像下图这样就很合适,做完的菜可以摆上桌惹~
3、打扫动线
可以通过空间的整合,减少一些无用小空间,来缩短打扫卫生的动线。
2
双动线设计
除了缩短家务动线,我们也可以设计双动线,减少绕路。
通过对非承重墙的改动,增加门体,如增加厨房门、卫生间门等。
上图的卫生间,在公共区域与主卧内分别设计了一个门,双进双出,更加便捷。双动线设计可能会涉及到敲墙,所以要跟设计师好好沟通哦~
客服
消息
收藏
下载
最近





























