查看完整案例

收藏

下载
从永嘉路走到襄阳南路,大约十来分钟。后者是原上海照相机四厂所在。这座建筑就身处上海闹市区的面貌来说,十分隐秘,一不留意就走过了,它的大门朝襄阳南路开着,自动玻璃门,不大的门厅,门口有一个小小的台子是管理员的位子,再往里走就能看见电梯。
告别了朝夕相处6年的永嘉路办公室,米凹来到这里。
办公室入口处 office entrance © Liang Shan
在米凹工作室的办公室,预留了一个单独的“空的空间”,从形态上而言,它没有装载任何家具,同时,在一种不确定性之下,它也没有被赋予任何一项具体的功能。
“空的空间”顶部覆以层叠排列的钛锌板
titanium zinc plates layered ceiling of ‘empty room’
© Liang Shan
在“空的空间”里 in the ‘empty room’ © Liang Shan
“空的空间”位于整个办公室最中心的位置,无论去哪个房间——比如会议间、打印间、茶水间、模型间、绘图间等,都可以经过这里。
空间的曲线墙面 curved wall of ‘empty room’ © Liang Shan
从模型间望向绘图间 from model room to drawing room © Liang Shan
门厅向绘图间的直达路线 entrance straightforward to drawing room © Liang Shan
曲线的墙面确定了空间的外部形状,并使它具有了两面性,让人能够清晰识别“在空间内”或相反。
不同灯光下的“空的空间” ‘empty room’ under different illumination © Liang Shan
它既是这个办公场所“现在”已获得的一个空间,又预留出一个“未来”,不确定的功能增加了无限可能性。空间顶部以切割成长条形的钛锌板层叠覆盖,在灯膜灯光的作用下,呈现出透明感,并为空间造出一方“天空”,似是室内的一处“室外”。此时此刻,身处此地,人的心情因为释放而喜悦跳动。
水泥台阶和钛锌板“屋檐”构成的门厅 entrance formed by cement steps and titanium zinc eaves © Liang Shan
对于整个办公场所而言,“空的空间”影响了放置进来的所有办公室功能,是最重要的一处预留空间。此外,具有相似意义的门厅,亦是办公室为身处其中的环中商厦这座建筑“贡献”出的小空间,它虽看似不服务于室内的办公室,但从外观和功能两方面——存在高差的地面由楼梯连接,用钢筋混凝土现浇成型,地与空呼应,以手工敲打的方式用钛锌板搭建了斜面“屋檐”,配合上灯光——回应了写字楼楼面本身所具有的玄关结构。
办公楼的采光中庭 daylight-flooded atrium © Liang Shan
上海照相机四厂改建工程完成于1995年,由何弢建筑设计所建筑师孔少凯主持设计。在基地原有的南楼和北楼之间的狭长天井,利用楼栋高差,以构筑采光天棚的方式建造了采光中庭,将室外转换成室内,又用红砖墙保留了室外感觉。在每层楼面,用楼梯作为两栋楼房之间高差的过渡,形成类似玄关结构。这就是米凹办公场地门厅空间回应的由来。
楼面走廊望见办公室绘图间 from passageway to drawing room © Liang Shan
楼面走廊望见办公室 from passageway to the office © Liang Shan
走出电梯大约经过53米长的走廊——在玄关结构的一侧,已能隔着中庭望见米凹的办公室,两边都是室内,却像是混杂了室外的气氛,让人头脑中冒出“曲径通幽”这个词来——望见,却还未到达,需再转几个弯,才到了办公室的入口。这里便是整层楼面最远的一间了。
会议间 meeting room © Liang Shan
模型间 model room © Liang Shan
绘图间 drawing room © Liang Shan
米凹办公室参照被动房标准进行搭建,室内保持温湿度稳定,顶面、墙面和地面都增加了保温和气密的措施,确保空间的低能耗和室内的舒适。新、旧,工法、材料,室内、室外,时间、空间……在这里交汇,把人与环境联系在一起。
绘图间望向办公室入口 from drawing room to entrance © Liang Shan
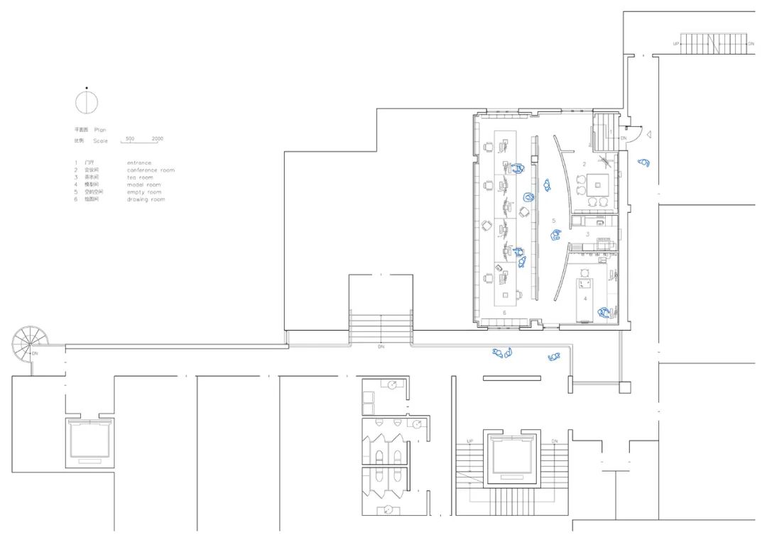
平面图 plan © atelier mearc
剖面图 section © atelier mearc
项目资料:
设计:米凹工作室
地址:上海市徐汇区
设计团队:周维 许曦文 韦天南
面积:103平方米
项目年份:2020年
摄影师:梁山
照明顾问:米绅照明设计(上海)有限公司
节能顾问:张迎春
机电顾问:上海三匠机电科技有限公司
施工:上海阔铮建筑装饰工程有限公司
厂家:RHEINZINK, Rise, KOKUYO,
DAIKEN, Armstrong, Silentgliss
客服
消息
收藏
下载
最近



















