查看完整案例


收藏

下载
多维迭代 自然雅奢
Modern natural elegant luxury
随着时代的更迭,室内设计已然与单一的工具性脱离,成为生活方式的一种载体,满足使用者的个性化需求,而设计师自然也成了它的诠释者。我们希望打造一片能安放自我情感与多元需求的栖息地。
电视背景墙由组合柜组成,美化空间的同时也承担起居室收纳的角色。
奢,不仅局限于物质的丰腴,更在于内在充盈与精神自由。多功能长型客厅、餐厅、工作区域,无界联动,与室外交相融合,在绿意与光影流转,优雅与高贵的对话中,演绎城市自然感奢宅。
脱离尘世的束缚,剥离出独有的姿态,让桎梏的灵魂自由舒展。设计师善于在潮玩中挖掘设想,将潮玩艺术家的手办ANGEL BOY引入空间,可爱治愈,让这座宅邸足以安放那些炙热的梦想和爱好。
宝格丽绿的调色思路,通过定制艺术品与餐椅共同组合,翠出生趣,追溯永恒的优雅与艺术魅力,成为把酒言歌的惬意之所。
或是家人欢聚,或是吧台小酌,或是家人欢聚,不同的生活场景铺就温润而有人情味的餐飨气息,水晶灯星星点点氤氲浪漫愉悦的氛围,在柔美雅致的空间中当光加入生活的日常,一切都显得生动起来。
浮世喧嚣,我们需要一处归心场域,卸下各种角色,做回真实的自己,享受内在的精神放松。
高级皮革软包与木饰面的搭配,细节处用金属点缀,以此呼应都市生活的仪式感及高品质生活的尊贵感。
柔软的软饰,随性的艺术照明,营造舒适精致的空间氛围。
每个孩子心里都有一个丛林探险的梦。开敞式的双孩房,热烈的丛林风格,让孩子在居家生活中感受自然神奇的魅力,在阅读和童趣的交流中收获成长。
以光为笔,共享人间烟火。设计不仅是功能的优化呈现,更是借助自然的力量最大程度释放空间的美。
大面积的生活花园,可娱乐休闲、可望天观云、可听雨赏月。一切皆可,但随心动。每一个居所,亦是居住者个性的体现,因此我们也预留出居者可自己填补的留白空间,让空间更生长。
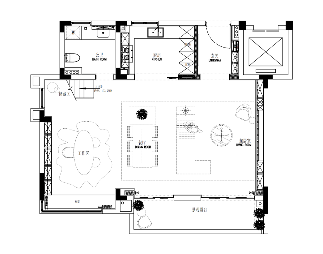
1F平面布置图
2F平面布置图
项目全名:
金科东渡玺悦府
项目地址:
浙江湖州
软装设计:
元禾大千
硬装设计:
矩阵纵横
设计时间:
2022.04
完工时间:
2022.08
空间面积:
157 ㎡
甲方单位:
金科地产浙赣区域
特别支持:
金科地产集团及浙赣区域设计管理部
摄影团队:
邹锋翰|4U STUDIO
客服
消息
收藏
下载
最近

































