查看完整案例

收藏

下载
“从血缘、地缘、业缘,到趣缘”——在未来社会中,人们将更多根据自己的兴趣爱好自由地结合、聚集,促生“趣缘群体”。传统职业形式将逐渐解体,居住社区就会成为未来人在城市中的第一属性,“只有邻居,没有同事”。——城市研究学者孙哲。
开放互联网时代下成长的 Z 世代青年,“斜杠”文化深入人心,在多元背景下“新青年”们更加灵活地选择多重身份和多重职业。而工作与生活一体化的生活方式,也令“新青年”们更加注重在生活场景中个性化艺术化地表达自我价值,多元场景成为灵感驰骋的场所和彰显自我的名片。
美+好≥美好生活
美源于艺术,好来自生活。“每个人都是一座孤岛”,个人尺度的沉浸的“孤岛之外”,生活场所拓展至社区共享空间,人与人日常交往的情感链接与互助,才是美好生活动态循环的真谛,由此进入到物质、情感、精神的完美统一。
元禾大千从青年人释放自我天性,追求多元有趣的需求出发,融汇文化、艺术、生活、时尚,跨越居住场景、重构生活场景,创造高质量、活力、持久和生活美好共享的斜杠青年多元生活图鉴。
当代人对咖啡的热爱已不止停留于氤氲的咖啡香或是微酸或苦的味觉变化上,近几年来咖啡已经从一杯解乏的日常饮品,转变为一种对生活品质的探索。在这样的文化背景下,室内设计也有了新的方向。
元禾大千与岳阳金茂未来广场有着同样的希冀,我们借咖啡之名,寻生活之意,打造集咖啡、办公、社交、阅读与文化为一体的咖啡厅。不仅在于品鉴咖啡芬芳,更多的是体味由设计承载的、对现代生活的情感关照。
设计师以贴近自然的木色与青绿色为铺陈,由金色为点缀,通过简淡、纯粹的氛围营造,刻画都市自然的痕迹。
整体空间可以被看作是一种生活方式,人们在此卸下疲惫,慢品生活;或是集中精神,高效办公。这种场景之间的切换,实现了咖啡厅真正的属性。悄然入室的日光交叠在皮肤上,强调体验感的重要性,治愈来者内心世界。
平面布置图
粉色,即甜蜜的力量。
如今的粉色,脱离了年纪与性别的桎梏,只要平衡得当,便能传递出有力且甜蜜的能量。
居住空间也需要甜蜜的力量,在赏心悦目的同时,解锁出时髦色彩带来的乐趣,让居者享受心情的愉悦。
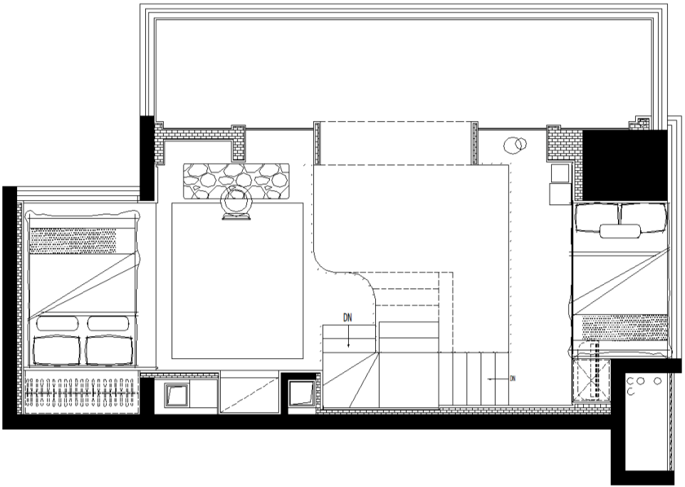
在金茂未来广场样板间中,设计师以当下流行的 POPMART 为主题,撤销不同功能空间之间的藩篱,在一楼打造直播区、咖啡吧、休闲区;二层则属于相对私密的睡眠空间与阅读区域。
设计加入些许薄荷绿与米白色组合,碰撞出新的力量感,刺激着工作灵感的迸发。随着色彩与功能的区分,呈现艺术立体的新潮居住氛围,时尚个性与真切生活皆触手可得,是乍见之欢也是久处不厌的调和。
永不褪色的少女粉甜却不腻,从一层延展至二层。步入睡眠空间,温柔的曲线和治愈的色彩并济,形成柔和的张力。软绵材质的床品平添一份意趣,凝结轻盈且富有律动的美妙触感。
1F
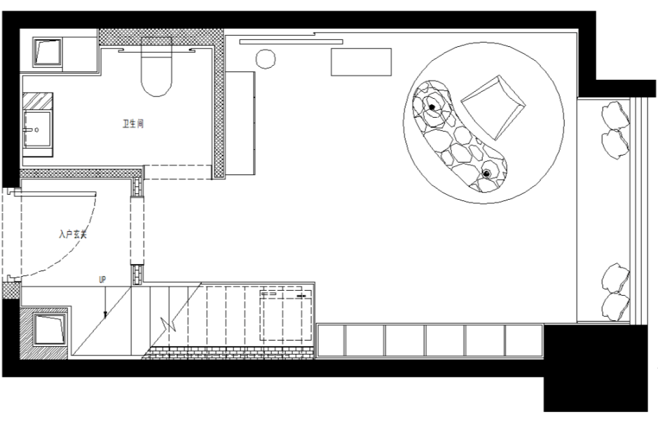
2F 平面布置图
走进这间充满潮流气息的居所,随处可见 KAWS 的经典形象,如同漫步 KAWS 的幻想世界。黑与白、蓝与灰,绚烂与平静、张扬与克制,色彩和风格强烈冲撞,炸裂开日常与艺术的边界。
不愿被拘束于一隅,居者热爱艺术,向往自由的创作环境。设计师将 KAWAS 融进日常,以视觉冲击力,实现日常生活与艺术创作的微妙平衡。黑白底色上是色块在狂欢,热情的红,忧郁的蓝,雀跃的黄,欢快的绿...多种极具饱和度的复杂色彩,浪漫又神秘地糅合,呈现出不落俗套的戏剧效果。
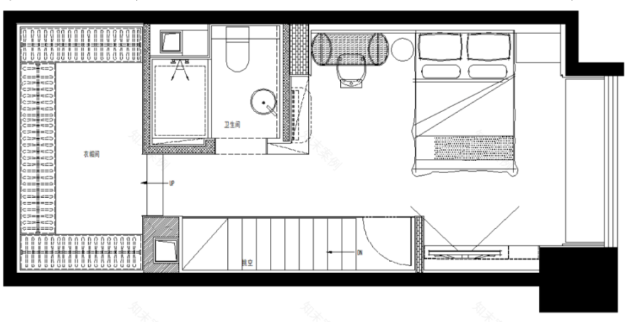
二层空间隔而不割,包含阅读、收藏、睡眠以及衣帽收纳间,设计师巧妙地以色彩横向切割,清晰划分出更为克制的一面。
沉稳的底色中,由挂画和手办上的亮眼色彩为点缀,活泼的颜色丰富起空间层次,同时打破日常与艺术的边界。正是这些不羁的搭配,将生活中的平淡不安消弭于无形,让整体设计归于统一,产生别具一格的灵动感。
1F
2F 平面布置图
MUJI 风格纯朴、简洁、环保、以人为本等理念,由此诞生的空间就如“空的容器”一样,正因为其单纯、空白,所以那里才诞生了能够容纳所有人思想的终极的自由性。
入目是我们熟悉的 MUJI 风:大面积的原木色、灰色和白色,搭配纯棉素色的床品和布艺沙发,落地窗使得明媚的阳光毫无遮挡地打进房间,干净却不冰冷,简约但很温暖。
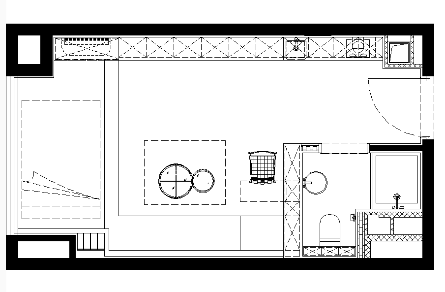
在小小 27㎡里,功能分区分明,将 MUJI 收纳做到极致,容纳屋主的小小藏品,有机地适应生活节奏,还原生活本真。
平面布置图
书吧是当下城市中流行的共享知识空间,集多功能厅、书店、茶馆或咖啡馆的特点于一身,人们可以在喝茶、喝咖啡、聊天的时候翻翻时尚杂志、流行小说,在舒缓的音乐中放松身心。作为社区共享书吧,不应只是书的储藏室、展示室,也有必要是社区记忆的保存处和休闲社交场所。
浅调的木板,镶以明亮的绿色点缀,唤起清新的森林记忆,氧气在开敞的空间里流淌,创造出一个鼓励读者逗留其中、坐下来阅读和写作的氛围。
阅读,始终是人们连接世界的方式。每一个卡座和岛台是人气汇聚之处,也是温暖治愈之核。在城市的奔波间,书吧给每天同样匆匆来此的人群提供慢下来的选择。
❝美好的生活,生活的美好不在别处,就在我们身边……
平面布置图
项目全名:金茂未来广场
项目地址:湖南岳阳
软装设计:元禾大千
硬装设计:牧笛设计
设计时间:2021.09
完工时间:2022.01
空间面积:咖啡馆 72㎡;KAWS 画室 66㎡;直播间 82㎡;MUJI 样板间 27㎡;森林氧气书吧 263㎡
甲方单位:岳阳和茂置业有限公司
特别支持:张念莎,刘威,高浪,周智敏,罗路捷,迟强,李彪
摄影团队:冷風
客服
消息
收藏
下载
最近

































































