查看完整案例


收藏

下载
心若没有栖息的地方,
到哪里都是在流浪。
居所对于我们来说不仅仅是一所之地,更是一种深入文化精神的寄托。我们以色彩寄托灵感,构筑美好的艺术生活。
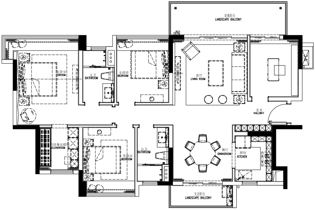
水墨画卷
145㎡
庄重典雅的色彩给予人舒适放松的感受
。空间以灰白色拉开序幕,水墨形制的地毯与挂画相互衬托,赋予空间灵动的神韵,不论是富丽堂皇还是清致雅趣,都呈现出中国传统绘画般的情境和诗意。
书房是在喧嚣世界中的一处静谧。笔墨纸砚、刻字艺术,和书架上各种收藏营造出艺术文化氛围。
米白色和咖色共同营造出雅致温和的氛围,星星点点的那一抹红串联起家中的每一个空间。丝绒床品配合高级色彩,创造出静谧宁静的空间,让居者回归家的温度。
项目平面图
蓝色梦境
95㎡
蓝精灵褪了色,将蓝色洒向人间,人间被染成了蓝色梦境。
明亮干净是对家的基本期许,蓝色总能带给人无穷的想象空间,设计师将海蓝色揉碎,氤氲与整个空间中,金属、石材与布艺的有趣对话,混搭出不一样的家。
妙趣横生的配色原则出乎意料地把各个房间串联了起来,蓝肆意蔓延至各个房间,为充满亲密氛围的睡眠空间注入感性的气息。
每个人都有自己独特的个性,孩子也不例外。设计师在儿童房加入动物元素,这个充满自然童趣的空间,让孩子对世界保持好奇。
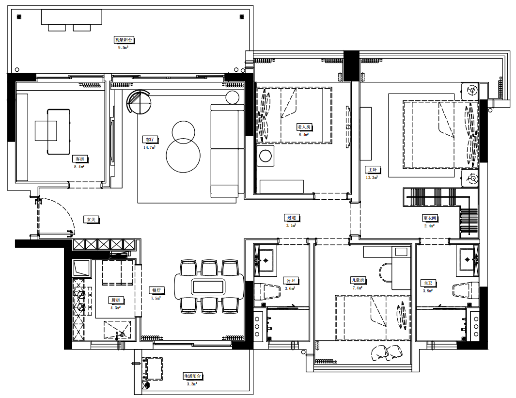
项目平面图
五十度灰
115㎡
介于黑与白之间融合的灰,恰恰以其乍暖还寒的温度,成就了一个空间的冷静。
空间与美的连接,是艺术与家的融合。阳光倾洒入室,让整个空间变得慵懒而美好。金属、棉麻材质的家具增添层次感,营造出温馨的居家环境。
舒适自由的环境是启发灵感的基础条件。木色营造出柔和的氛围,让人静思。
设计师以素雅的色彩,营造出一幅意境深远的画卷。亮白色墙壁宛如破晓黎明,搭配同样色彩的床品,如睡莲般纯洁无瑕,幸福的慢生活油然而生。
儿童房的墙壁充满童趣,克莱因蓝点缀其中,火箭、月亮、地球的形象,让这里变成一座热闹的“卡通世界”。
项目平面图
项目全名:南太 · 珑玺样板间
项目地址:东莞麻涌
软装设计:元禾大千
硬装设计:矩阵纵横设计股份有限公司
设计时间:2021.03
完工时间:2021.07
空间面积:
145㎡
/
95㎡/115㎡
甲方单位:
东莞市南太房地产开发有限公司
特别支持:
南太创新研发部
摄影团队:李云翔
客服
消息
收藏
下载
最近










































