查看完整案例

收藏

下载
阳光城溪山悦别墅样板间坐落于长沙市岳麓区。我们作为空间的叙事者,打破固有公式,跳脱出功能与美学的单一模式,将设计回归生活本源,构筑理想之家,唤起居者与空间的情绪共鸣。
法式轻奢 323m²
“房屋就是生活的珠宝盒”——勒·柯布西耶
空间以白色调为主,祖母绿穿插其中,家具如盒子里的珍宝,华丽却不张扬。
设计师以空间为载体,大理石、金属、木质的混搭,让整个客厅充满层次感,烘托出时尚个性与摩登的生活理念。
设计师在睡眠空间使用低饱和度色彩,米白色成为调剂空间的重要手段,圆弧的线条提升层次质感,营造自由舒适的居家氛围。
童年一定是五彩斑斓的。设计师在儿童房加入蓝色和粉色,整体空间明亮通透,营造出童趣而浪漫的氛围。
热爱是生活的调味剂。夹层被设计师设计成兴趣室,钢琴、大提琴、手工,各种艺术品的碰撞都是自我主义的表达,也是展示真我的舞台。
色彩与空间的对话延续至此。金属的吧台搭配上高脚吧椅,精致的线条搭配极具奢侈感,散发出空间独特的气质。
(项目平面图)
现代意式 210m²
“家是能治愈自己,展现自我的场所,是生活的能量场”。空间整体以米白色为主色调,再搭配上棕色,营造出简约舒适的居家环境。暖灰色壁纸搭配上浅褐色木饰面以及温润的大理石,让空间过渡到生活的本真,使整体氛围更加柔和。
用餐环境是具有仪式感的。设计师采用大理石与金属的搭配,丰富空间层次感,营造浓厚的家庭氛围。
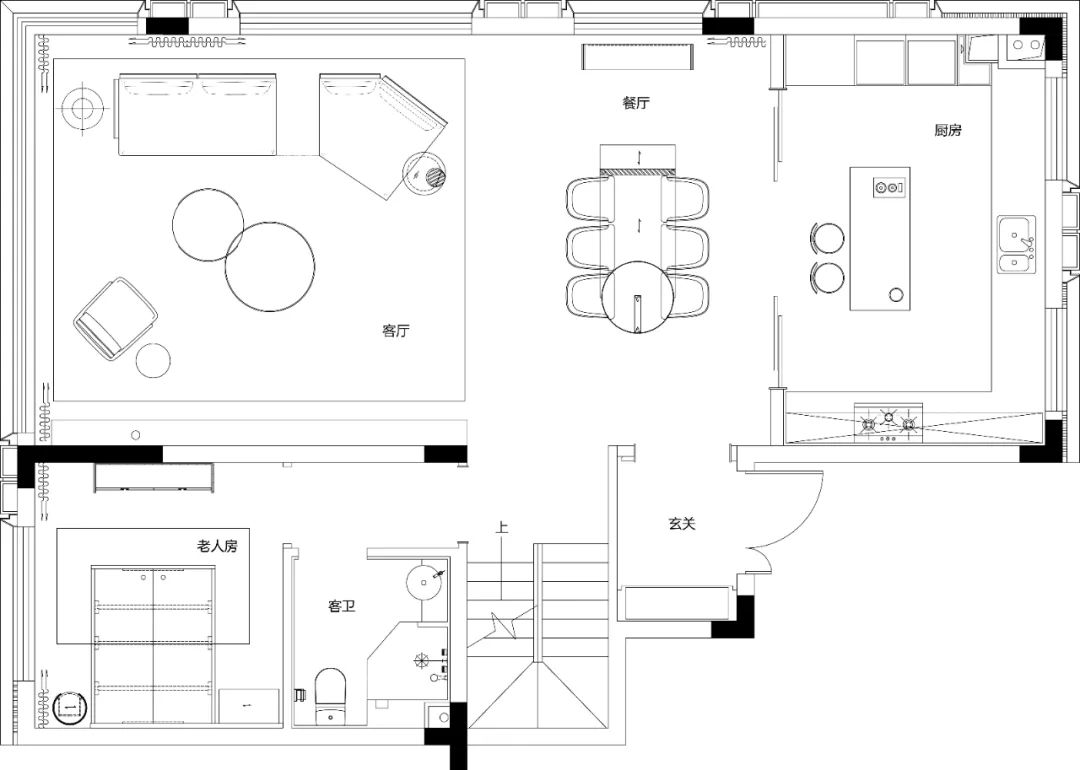
(一层平面图)
睡眠空间延续客厅的色彩,当喧嚣归于平静,这里便是生活的能量场。皮革与棉麻碰撞出不一样的感觉,金属装饰品增加空间的厚重感,米灰色地毯与墙壁融为一体,营造出舒适的睡眠环境。
设计师在女孩房加入粉色,高级的灰色调呈现出安静的感觉,小提琴式的抱枕与墙壁的线条,充满着少女的情怀。
男孩房被设计师加入马里奥,营造出趣味丰富的氛围,带孩子体验不一样的冒险世界。
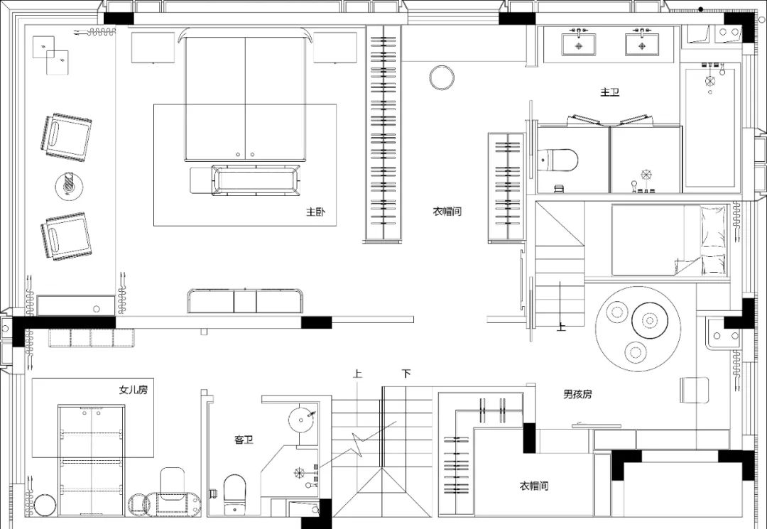
(二层平面图)
茶桌褪去过多的装饰,渲染出古色古香的东方意境。沏一壶清茶,便是一段静谧的时光。
(三层平面图)
项目全名:阳光城溪山悦别墅样板间
项目地址:长沙
软装设计:元禾大千
硬装设计:穆德设计
设计时间:2020.10
完工时间:2021.04
空间面积:323㎡/210㎡
甲方单位:长沙市湘坤房地产开发有限公司
摄影团队:斑马视觉
客服
消息
收藏
下载
最近















































